8.2
Смотреть все фото
БЕЗ КОМИССИИ ID: 1319085 Рейтинг8.1 КлассB+
Бизнес-центр «Святогор-2»

Продажа офиса 1183 м²

Москва, Летниковская улица, 10 с2

Павелецкая → 1.02 км
~ 10 мин
Стоимость 325.33 млн ₽ 275 000 ₽/м²

Презентация по предложению

Собираете информацию? Получите подробную презентацию в удобном формате!

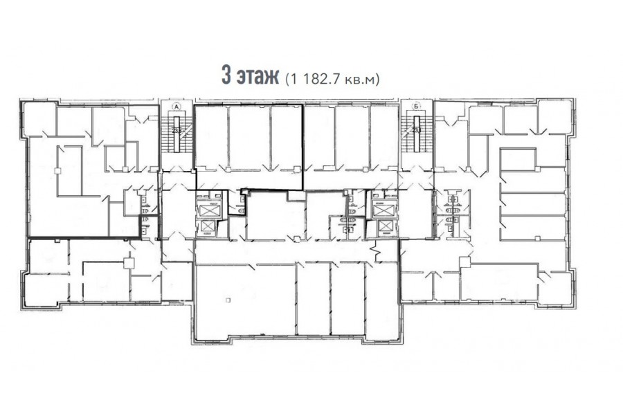
Площадь 1 183 м²
Состояние Готово к въезду
Планировка Смешанная
Этаж 3

Описание

Преимущества
  • Класс B+
  • Пешком от метро
  • Кондиционирование и вентиляция
  • Свой паркинг
  • Развитая инфраструктура
В продаже офис общей площадью 1183 кв.м в бизнес-центре "Святогор-2".

Помещение можно адаптировать под любой бизнес благодаря функциональной планировке - идеальный баланс комфорта и экономической выгоды. Оптимальное решение для стабильного бизнеса или выгодных инвестиций.

Офис класса B+:
- Помещение готово к въезду
- Вентиляция: Приточно-вытяжная вентиляция
- Кондиционирование: центральное

О офисном центре:
Москва, ЦАО, Летниковская улица, 10 с2

Удобная локация здания:
- Автомобиль: близость транспортных магистралей, таких как Садовое Кольцо и других.
- Возможность аренды парковочных мест.
- Ближайшее метро: от метро "Павелецкая" всего 10 мин пешком



Что еще можно узнать о предложении:

1. Получите презентацию в течение 10 минут в Whatsapp или на почту с фотографиями и планировкой, чтобы обсудить данный вариант с коллегами или переслать руководству. Для этого позвоните по телефону, указанному в объявлении.
2. Мы готовы ответить на любые Ваши вопросы о помещении и коммерческих условиях продажи.

Звоните нам в любое время. По будням мы сможем ответить на Ваши вопросы до 19:00. В выходные или вечернее время мы передадим Ваш контакт нашему менеджеру.

О бизнес-центре

Класс B+
Этажность 9
Лифты Есть
Общая площадь 11 514 м²
Год постройки 2004
Паркинг Наземный крытый
Вентиляция приточно-вытяжная
Кондиционирование центральное
Телекоммуникации Интернет/Телефония

Расположение

Подробная презентацию по предложению

Собираете информацию? Получите подробную презентацию в удобном формате, чтобы обсудить вариант с коллегами или переслать руководству!

Похожие предложения в других зданиях

БЕЗ КОМИССИИ ID: 993820 Рейтинг7.6 КлассB

Москва, 1-й Кожевнический переулок, 8

Павелецкая → 887 м
~ 9 мин
Стоимость 589 999 800 ₽ 226 900 ₽/м²
Характеристики 2 600 м² -1 - 4 этаж Готово к въезду
Преимущества
  • Класс B
  • Пешком от метро
  • Кондиционирование и вентиляция
  • Свой паркинг

В продаже офисный блок площадью 2600 кв. метров в недавно отреконструированном бизнес-центре. .. подробнее

Презентация по предложению

Собираете информацию? Получите подробную презентацию в удобном формате!

БЕЗ КОМИССИИ ID: 1328103 Рейтинг6.0 КлассB

Москва, Дубининская улица, 66/30 с1

Серпуховская → 839 м
~ 8 мин
Стоимость 160 000 032 ₽ 283 700 ₽/м²
Характеристики 564 м² 1 - 2 этаж Готово к въезду
Преимущества
  • Класс B
  • Пешком от метро
  • Кондиционирование и вентиляция

В продаже офисный блок общей площадью 564 кв. метров в бизнес-центре. .. подробнее

Презентация по предложению

Собираете информацию? Получите подробную презентацию в удобном формате!

БЕЗ КОМИССИИ ID: 1375592 Рейтинг5.5 КлассB

Москва, Дербеневская улица, 20

Серпуховская → 1.72 км
~ 17 мин
Стоимость 350 000 838 ₽ 196 400 ₽/м²
Характеристики 1 782 м² -1 - 5 этаж Готово к въезду
Преимущества
  • Класс B
  • Пешком от метро
  • Кондиционирование и вентиляция
  • Развитая инфраструктура

В продаже офис общей площадью 1782 кв. метров в недавно отреконструированном бизнес-центре. .. подробнее

Презентация по предложению

Собираете информацию? Получите подробную презентацию в удобном формате!

БЕЗ КОМИССИИ ID: 1323815 Рейтинг8.0 КлассА

Москва, Дербеневская набережная, 1 с8

Павелецкая → 1.14 км
~ 11 мин
Стоимость 1 477 386 800 ₽ 663 100 ₽/м²
Характеристики 2 228 м² 13 этаж Под отделку
Преимущества
  • Класс А
  • Пешком от метро
  • Новое строительство
  • Кондиционирование и вентиляция

Продается офис площадью 2228 квадратных метров в бизнес-центре "Opus". .. подробнее

Презентация по предложению

Собираете информацию? Получите подробную презентацию в удобном формате!

БЕЗ КОМИССИИ ID: 1323813 Рейтинг8.0 КлассА

Москва, Дербеневская набережная, 1 с8

Павелецкая → 1.14 км
~ 11 мин
Стоимость 233 774 800 ₽ 575 800 ₽/м²
Характеристики 406 м² 12 этаж Под отделку
Преимущества
  • Класс А
  • Пешком от метро
  • Новое строительство
  • Кондиционирование и вентиляция

Продается офисный блок площадью 406 кв.м в бизнес-центре "Opus". .. подробнее

Презентация по предложению

Собираете информацию? Получите подробную презентацию в удобном формате!

Посмотреть все похожие предложения
Отнеситесь рационально к процессу поиска нового офиса!

Просто ответьте на 3 вопроса, и наши специалисты сами предложат оптимальные варианты под ваш бюджет

.