8.2
Смотреть все фото
БЕЗ КОМИССИИ ID: 1328681 Рейтинг8.3 КлассА
Бизнес-центр «Святогор-4»

Аренда офиса 443 м²

Москва, Летниковская улица, 10 с4

Павелецкая → 1.2 км
~ 12 мин
Арендная плата в месяц 1 329 000 ₽ 36 000 ₽/м² в год С учётом НДС

Презентация по предложению

Собираете информацию? Получите подробную презентацию в удобном формате!

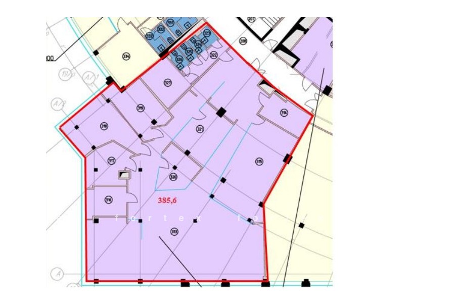
Площадь 443 м²
Состояние Готово к въезду
Планировка Кабинетная
Этаж 2

Описание

Преимущества
  • Класс А
  • Пешком от метро
  • Кондиционирование и вентиляция
  • Свой паркинг
  • Развитая инфраструктура
Предлагаем в долгосрочную аренду помещение под офис класса А площадью 443 квадратных метров в бизнес-центре "Святогор-4".

Москва, ЦАО, Летниковская улица, 10 с4

Удобная локация здания:
- Автомобиль: близость транспортных магистралей, таких как Садовое Кольцо и других.
- Возможность аренды парковочных мест.
- Ближайшее метро: от метро "Павелецкая" всего 12 мин пешком

Офис класса А:
- Помещение готово к въезду
- Вентиляция: Приточно-вытяжная вентиляция
- Кондиционирование: центральное
- Презентабельный центральный ресепшн
- Круглосуточная охрана и видеонаблюдение
- Развитая инфраструктура внутри здания

Возможность заключения контракта в соответствии с 44ФЗ по госзакупкам.

Если предложение предварительно Вам подходит:

1. Мы отправим Вам подробную презентацию с планировкой и фотографиями в течение 10 минут после звонка, чтобы Вы могли поделиться информацией с руководством или с коллегами.
2. Ответим на любые Ваши вопросы, готовы обсуждать любые предложения по коммерческим условиям аренды помещения.
3. Покажем помещение в удобное для Вас время с менеджером в здании, при необходимости подготовим виртуальный тур.

Звоните нам в любое время. По будням мы сможем ответить на Ваши вопросы до 19:00. В выходные или вечернее время мы передадим Ваш контакт нашему менеджеру по аренде.

Коммерческие условия

Арендная плата 1 329 000 ₽
Ставка арендной платы 36 000 ₽ м²/год
Эксплуатационные расходы Включены в ставку
Налоги С учётом НДС
Тип договора Прямая аренда
Срок договора от 11 месяцев
Размер платежей 1 месяц
Обеспечительный платеж 2 месяц

О бизнес-центре

Класс А
Этажность 9
Лифты Есть
Общая площадь 34 700 м²
Год постройки 2009
Паркинг Подземный
Вентиляция приточно-вытяжная
Кондиционирование центральное
Телекоммуникации Интернет/Телефония

Расположение

Подробная презентацию по предложению

Собираете информацию? Получите подробную презентацию в удобном формате, чтобы обсудить вариант с коллегами или переслать руководству!

Похожие предложения в других зданиях

БЕЗ КОМИССИИ ID: 1327404 Рейтинг8.3 КлассB+

Москва, 1-й Дербеневский переулок, 5

Павелецкая → 1.54 км
~ 15 мин
Арендная плата в месяц 1 288 000 ₽ 32 000 ₽/м² в год С учётом НДС
Характеристики 483 м² 3 этаж Готово к въезду
Преимущества
  • Класс B+
  • Кондиционирование и вентиляция
  • Свой паркинг
  • Развитая инфраструктура

Предлагается в долгосрочную прямую аренду офисное помещение класса B+ площадью 483 кв.м в бизнес-центре "Дербеневская Плаза"... подробнее

Презентация по предложению

Собираете информацию? Получите подробную презентацию в удобном формате!

БЕЗ КОМИССИИ ID: 1323438 Рейтинг8.3 КлассB+

Москва, 1-й Дербеневский переулок, 5

Павелецкая → 1.54 км
~ 15 мин
Арендная плата в месяц 1 178 667 ₽ 32 000 ₽/м² в год С учётом НДС
Характеристики 442 м² 3 этаж Готово к въезду
Преимущества
  • Класс B+
  • Кондиционирование и вентиляция
  • Свой паркинг
  • Развитая инфраструктура

Предлагается в прямую аренду помещение под офис класса B+ площадью 442 квадр. метров в бизнес-центре "Дербеневская Плаза"... подробнее

Презентация по предложению

Собираете информацию? Получите подробную презентацию в удобном формате!

БЕЗ КОМИССИИ ID: 1323443 Рейтинг8.3 КлассB+

Москва, 1-й Дербеневский переулок, 5

Павелецкая → 1.54 км
~ 15 мин
Арендная плата в месяц 1 122 667 ₽ 32 000 ₽/м² в год С учётом НДС
Характеристики 421 м² 4 этаж Готово к въезду
Преимущества
  • Класс B+
  • Кондиционирование и вентиляция
  • Свой паркинг
  • Развитая инфраструктура

Предлагается в долгосрочную аренду офисное помещение класса B+ площадью 421 квадратных метров в бизнес-центре "Дербеневская Плаза"... подробнее

Презентация по предложению

Собираете информацию? Получите подробную презентацию в удобном формате!

БЕЗ КОМИССИИ ID: 1323440 Рейтинг8.3 КлассB+

Москва, 1-й Дербеневский переулок, 5

Павелецкая → 1.54 км
~ 15 мин
Арендная плата в месяц 1 106 667 ₽ 32 000 ₽/м² в год С учётом НДС
Характеристики 415 м² 3 этаж Готово к въезду
Преимущества
  • Класс B+
  • Кондиционирование и вентиляция
  • Свой паркинг
  • Развитая инфраструктура

Предлагается в прямую аренду помещение под офис класса B+ общей площадью 415 кв. метров в бизнес-центре "Дербеневская Плаза"... подробнее

Презентация по предложению

Собираете информацию? Получите подробную презентацию в удобном формате!

БЕЗ КОМИССИИ ID: 1325767 Рейтинг7.6 КлассB

Москва, улица Щипок, 5

Серпуховская → 296 м
~ 3 мин
Арендная плата в месяц 1 257 292 ₽ 35 500 ₽/м² в год С учётом НДС
Характеристики 425 м² 6 этаж Готово к въезду
Преимущества
  • Класс B
  • Пешком от метро
  • Кондиционирование и вентиляция
  • Свой паркинг

Предлагаем в прямую аренду офисное помещение класса B площадью 425 кв.м в бизнес-центре... подробнее

Презентация по предложению

Собираете информацию? Получите подробную презентацию в удобном формате!

Посмотреть все похожие предложения
Отнеситесь рационально к процессу поиска нового офиса!

Просто ответьте на 3 вопроса, и наши специалисты сами предложат оптимальные варианты под ваш бюджет