8.2
Смотреть все фото
БЕЗ КОМИССИИ ID: 1379188 Рейтинг7.7 КлассB+

Москва, улица Кулакова, 20 с1а

Строгино → 602 м
~ 8 мин
Арендная плата в месяц 587 400 ₽ 21 700 ₽/м² в год С учётом НДС

Презентация по предложению

Собираете информацию? Получите подробную презентацию в удобном формате!

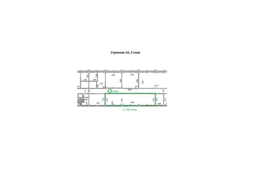
Площадь 325 м²
Состояние Готово к въезду
Планировка Смешанная
Этаж 5

Описание

Преимущества
  • Класс B+
  • Пешком от метро
  • Кондиционирование и вентиляция
  • Свой паркинг
  • Несколько провайдеров связи
Предлагаем в долгосрочную аренду офис класса B+ общей площадью 325 кв.м в бизнес-центре "Технопарк Орбита".

Москва, СЗАО, улица Кулакова, 20 с1а

Удобная локация здания:
- Автомобиль: близость транспортных магистралей, таких как МКАД, Проспект Маршала Жукова и других.
- Возможность аренды парковочных мест.
- Ближайшее метро: от метро "Строгино" всего 8 мин пешком

Офис класса B+:
- Помещение готово к въезду
- Вентиляция: Приточно-вытяжная вентиляция
- Кондиционирование: центральное
- Круглосуточная охрана и видеонаблюдение


Если данное предложение подходит Вашему запросу:

1. Мы отправим Вам подробную презентацию с планировкой и фотографиями в течение 10 минут после звонка, чтобы Вы могли поделиться информацией с руководством или с коллегами.
2. Задайте любые вопросы менеджеру по телефону, готовы обсуждать любые предложения по финансовым условиям договора аренды.
3. Покажем помещение в удобное для Вас время с менеджером в здании, при необходимости подготовим виртуальный тур.

Вы можете позвонить нам в любое время. Мы ответим на Ваши вопросы по будням до 19:00, а поздно вечером или в выходные зафиксируем Ваш контакт и перезвоним в рабочее время.

Коммерческие условия

Арендная плата 587 410 ₽
Ставка арендной платы 21 700 ₽ м²/год
Эксплуатационные расходы Включены в ставку
Налоги С учётом НДС
Тип договора Прямая аренда
Срок договора от 11 месяцев
Размер платежей 1 месяц
Обеспечительный платеж 1 месяц
Статус Свободен

О бизнес-центре

Класс B+
Этажность 11
Лифты Есть
Общая площадь 85 000 м²
Год постройки 2012
Паркинг Наземный
Вентиляция приточно-вытяжная
Кондиционирование центральное
Телекоммуникации Интернет/Телефония

Расположение

Подробная презентацию по предложению

Собираете информацию? Получите подробную презентацию в удобном формате, чтобы обсудить вариант с коллегами или переслать руководству!

Похожие предложения в других зданиях

БЕЗ КОМИССИИ ID: 1310681 Рейтинг8.0 КлассА

Москва, улица Маршала Прошлякова, 30

Строгино → 2.9 км
~ 12 мин
Арендная плата в месяц 586 000 ₽ 24 000 ₽/м² в год С учётом НДС
Характеристики 293 м² 3 этаж Готово к въезду
Преимущества
  • Класс А
  • Кондиционирование и вентиляция
  • Свой паркинг

Сдается в долгосрочную аренду помещение под офис класса А общей площадью 293 квадр. метров в бизнес-центре "Зенит Плаза"... подробнее

>

Виртуальный тур

Презентация по предложению

Собираете информацию? Получите подробную презентацию в удобном формате!

ВОЗМОЖНО ОСВОБОЖДЕНИЕ ID: 1308841 Рейтинг7.3 КлассB+

Москва, 2-я Лыковская улица, 63 с10

Строгино → 2.15 км
~ 21 мин
Арендная плата в месяц 589 050 ₽ 21 400 ₽/м² в год С учётом НДС
Характеристики 330 м² 1 этаж Готово к въезду
Преимущества
  • Класс B+
  • Пешком от метро
  • Кондиционирование и вентиляция
  • Свой паркинг

Предлагается в долгосрочную аренду офис класса B+ площадью 330 кв. метров в бизнес-центре "Новая рига"... подробнее

>

Виртуальный тур

Презентация по предложению

Собираете информацию? Получите подробную презентацию в удобном формате!

БЕЗ КОМИССИИ ID: 1318446 Рейтинг7.3 КлассB+

Москва, 2-я Лыковская улица, 63 с10

Строгино → 2.15 км
~ 21 мин
Арендная плата в месяц 516 800 ₽ 19 200 ₽/м² в год С учётом НДС
Характеристики 323 м² 2 этаж Готово к въезду
Преимущества
  • Класс B+
  • Пешком от метро
  • Кондиционирование и вентиляция
  • Свой паркинг

Сдается в долгосрочную прямую аренду офисный блок класса B+ площадью 323 квадратных метров в бизнес-центре "Новая рига"... подробнее

>

Виртуальный тур

Презентация по предложению

Собираете информацию? Получите подробную презентацию в удобном формате!

БЕЗ КОМИССИИ ID: 1372942 Рейтинг8.0 КлассB

Московская область, Красногорский район, Красногорск, Ильинское шоссе, 1а

Волоколамская → 4.74 км
~ 22 мин
Арендная плата в месяц 608 000 ₽ 22 800 ₽/м² в год С учётом НДС
Характеристики 320 м² 8 этаж Готово к въезду
Преимущества
  • Класс B
  • Кондиционирование и вентиляция
  • Свой паркинг

Предлагаем в долгосрочную прямую аренду офис класса B общей площадью 320 квадратных метров в бизнес-центре "Красногорск Плаза"... подробнее

Презентация по предложению

Собираете информацию? Получите подробную презентацию в удобном формате!

БЕЗ КОМИССИИ ID: 1379964 Рейтинг7.9 КлассB+

Москва, Волоколамское шоссе, 116 с4

Тушинская → 1.69 км
~ 17 мин
Арендная плата в месяц 724 000 ₽ 24 000 ₽/м² в год Упрощённая система налогообложения
Характеристики 362 м² 1 этаж Готово к въезду
Преимущества
  • Класс B+
  • Пешком от метро
  • Свежая реконструкция
  • Кондиционирование и вентиляция
  • Свой паркинг

Предлагается в прямую аренду офисный блок класса B+ площадью 362 квадр. метров в недавно отреконструированном бизнес-центре "Академия Лофт"... подробнее

Презентация по предложению

Собираете информацию? Получите подробную презентацию в удобном формате!

Посмотреть все похожие предложения
Отнеситесь рационально к процессу поиска нового офиса!

Просто ответьте на 3 вопроса, и наши специалисты сами предложат оптимальные варианты под ваш бюджет

.