8.2

Виртуальный тур

Виртуальный тур

Виртуальный тур

Смотреть все фото
ВОЗМОЖНО ОСВОБОЖДЕНИЕ ID: 868027 Рейтинг8.1 КлассB+

Москва, Тихвинский переулок, 11 с2

Менделеевская → 913 м
~ 9 мин
Арендная плата в месяц по запросу потенциального арендатора Срок освобождение в течение 3 месяцев

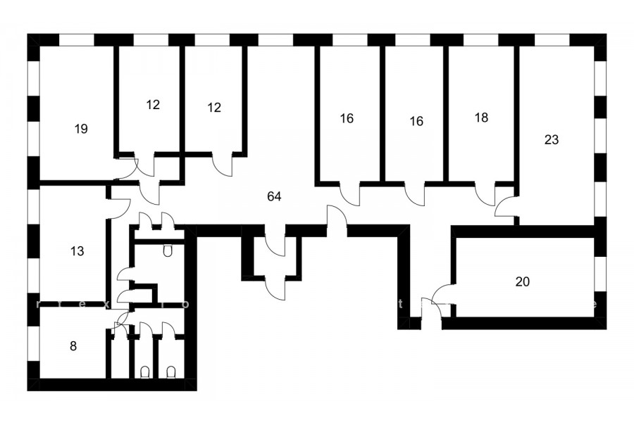
Информация по помещению

Ознакомьтесь с дополнительной информацией по помещению и коммерческим условиям!

Площадь 750 м²
Планировка Смешанная
Этаж 2

Описание

Преимущества
  • Класс B+
  • Пешком от метро
  • Кондиционирование и вентиляция

Коммерческие условия

Арендная плата по запросу
Ставка арендной платы по запросу
Эксплуатационные расходы Включены в ставку
Налоги С учётом НДС
Тип договора Прямая аренда
Срок договора от 11 месяцев
Размер платежей 1 месяц
Обеспечительный платеж - месяц
Статус Сдан

О бизнес-центре

Класс B+
Этажность 6
Лифты Есть
Общая площадь 3 200 м²
Год постройки 1907
Паркинг Наземный и подземный
Вентиляция приточно-вытяжная
Кондиционирование центральное
Телекоммуникации Интернет/Телефония

Расположение

Информация по помещению

Получите дополнительную информацию по помещению и коммерческом условиям!

Похожие предложения в других зданиях

БЕЗ КОМИССИИ ID: 1284946 Рейтинг8.1 КлассB

Москва, улица Палиха, 10 с5

Менделеевская → 313 м
~ 3 мин
Арендная плата в месяц 2 178 458 ₽ 38 500 ₽/м² в год С учётом НДС
Характеристики 679 м² 1 этаж Готово к въезду
Преимущества
  • Класс B
  • Пешком от метро
  • Кондиционирование и вентиляция

Сдается в долгосрочную аренду офис класса B общей площадью 679 квадратных метров в бизнес-центре... подробнее

Презентация по предложению

Собираете информацию? Получите подробную презентацию в удобном формате!

БЕЗ КОМИССИИ ID: 1305625 Рейтинг7.5 КлассB

Москва, улица Образцова, 31 с1

Марьина Роща → 524 м
~ 5 мин
Арендная плата в месяц 2 563 890 ₽ 36 500 ₽/м² в год С учётом НДС
Характеристики 842 м² 3 этаж Готово к въезду
Преимущества
  • Класс B
  • Пешком от метро
  • Кондиционирование и вентиляция
  • Свой паркинг

Сдается в долгосрочную прямую аренду помещение под офис класса B площадью 842 квадратных метров в бизнес-центре... подробнее

Презентация по предложению

Собираете информацию? Получите подробную презентацию в удобном формате!

БЕЗ КОМИССИИ ID: 1310808 Рейтинг7.2 КлассB

Москва, 5-я улица Ямского Поля, 7 к2

Белорусская → 1.26 км
~ 13 мин
Арендная плата в месяц 2 499 980 ₽ 35 800 ₽/м² в год С учётом НДС
Характеристики 837 м² 3 этаж Готово к въезду
Преимущества
  • Класс B
  • Пешком от метро
  • Кондиционирование и вентиляция
  • Свой паркинг
  • Несколько провайдеров связи
  • Развитая инфраструктура

Предлагаем в прямую аренду офисный блок класса B площадью 837 кв. метров в историческом недавно отреконструированном бизнес-центре... подробнее

>

Виртуальный тур

Презентация по предложению

Собираете информацию? Получите подробную презентацию в удобном формате!

БЕЗ КОМИССИИ ID: 1378472 Рейтинг8.8 КлассА

Москва, Краснопролетарская улица, 36

Новослободская → 412 м
~ 4 мин
Арендная плата в месяц 3 700 667 ₽ 61 000 ₽/м² в год С учётом НДС
Характеристики 728 м² 3 этаж Готово к въезду
Преимущества
  • Класс А
  • Пешком от метро
  • Кондиционирование и вентиляция
  • Свой паркинг
  • Развитая инфраструктура

Предлагается в прямую аренду помещение под офис класса А площадью 728 кв. метров в бизнес-центре "Амбер Плаза"... подробнее

Презентация по предложению

Собираете информацию? Получите подробную презентацию в удобном формате!

БЕЗ КОМИССИИ ID: 217151 Рейтинг7.4 КлассB

Москва, Долгоруковская улица, 32

Новослободская → 328 м
~ 3 мин
Арендная плата в месяц 1 921 333 ₽ 35 200 ₽/м² в год С учётом НДС
Характеристики 655 м² 2 - 3 этаж Под отделку
Преимущества
  • Класс B
  • Пешком от метро
  • Кондиционирование и вентиляция
  • Свой паркинг

Собственник сдает в долгосрочную аренду офисный блок класса B общей площадью 655 квадр. метров в историческом недавно отреконструированном бизнес-центре... подробнее

Презентация по предложению

Собираете информацию? Получите подробную презентацию в удобном формате!

Посмотреть все похожие предложения
Отнеситесь рационально к процессу поиска нового офиса!

Просто ответьте на 3 вопроса, и наши специалисты сами предложат оптимальные варианты под ваш бюджет

.