8.2
Смотреть все фото
БЕЗ КОМИССИИ ID: 111483 Рейтинг8.5 КлассА

Москва, улица Тимура Фрунзе, 11 с16

Парк культуры → 382 м
~ 5 мин
Арендная плата в месяц 3 087 500 ₽ 39 000 ₽/м² в год С учётом НДС

Презентация по предложению

Собираете информацию? Получите подробную презентацию в удобном формате!

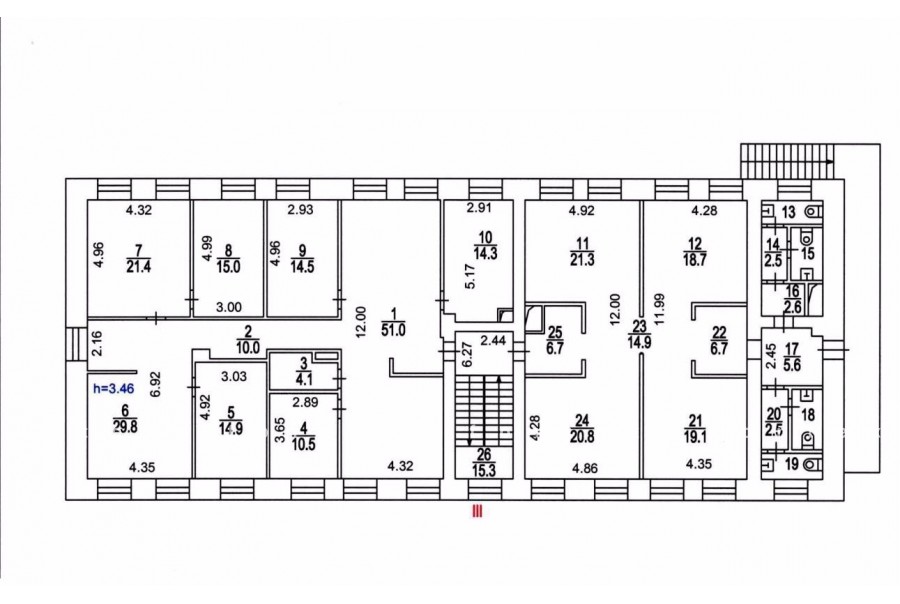
Площадь 950 м²
Состояние Готово к въезду
Планировка Кабинетная
Этаж 1 - 3

Описание

Преимущества
  • Класс А
  • Пешком от метро
  • Кондиционирование и вентиляция
Сдаем в прямую аренду офисное помещение класса А общей площадью 950 кв.м в историческом недавно отреконструированном бизнес-центре.

Москва, ЦАО, улица Тимура Фрунзе, 11 с16

Удобное расположение здания для всех видов транспорта:
- Автомобиль: близость транспортных магистралей, таких как Садовое Кольцо, Комсомольский проспект и других.
- Ближайшее метро: от метро "Парк культуры" всего 5 мин пешком

Офис класса А:
- Офис с отделкой, полностью готов к аренде
- Вентиляция: Приточно-вытяжная вентиляция
- Кондиционирование: центральное

Возможность заключения контракта в соответствии с 44ФЗ по госзакупкам.

Если предложение предварительно Вам подходит:

1. Получите презентацию в течение 10 минут в Whatsapp или на почту с фотографиями и планировкой, чтобы обсудить данный вариант с коллегами или переслать руководству. Для этого позвоните по телефону, указанному в объявлении.
2. Мы готовы ответить на любые Ваши вопросы о помещении и коммерческих условиях аренды.
3. Оперативно организуем просмотр помещения с менеджерами на объекте или подготовим виртуальный тур.

Звоните нам в любое время. По будням мы сможем ответить на Ваши вопросы до 19:00. В выходные или вечернее время мы передадим Ваш контакт нашему менеджеру по аренде.

Коммерческие условия

Арендная плата 3 087 500 ₽
Ставка арендной платы 39 000 ₽ м²/год
Эксплуатационные расходы Включены в ставку
Налоги С учётом НДС
Тип договора Прямая аренда
Срок договора от 11 месяцев
Размер платежей 1 месяц
Обеспечительный платеж 1 месяц
Статус Сдан

О бизнес-центре

Класс А
Этажность 3
Лифты Есть
Общая площадь 1 000 м²
Год постройки 1917
Паркинг Стихийный
Вентиляция приточно-вытяжная
Кондиционирование центральное
Телекоммуникации Интернет/Телефония

Расположение

Подробная презентацию по предложению

Собираете информацию? Получите подробную презентацию в удобном формате, чтобы обсудить вариант с коллегами или переслать руководству!

Похожие предложения в других зданиях

БЕЗ КОМИССИИ ID: 21474 Рейтинг4.9 КлассB

Москва, улица Тимура Фрунзе, 11 к8

Парк культуры → 425 м
~ 4 мин
Арендная плата в месяц 3 208 333 ₽ 38 500 ₽/м² в год С учётом НДС
Характеристики 1 000 м² 2 этаж Под отделку
Преимущества
  • Класс B
  • Пешком от метро
  • Кондиционирование и вентиляция

Сдается в долгосрочную аренду офисное помещение класса B площадью 1000 кв. метров в бизнес-центре "Морозов"... подробнее

Презентация по предложению

Собираете информацию? Получите подробную презентацию в удобном формате!

БЕЗ КОМИССИИ ID: 54489 Рейтинг9.3 КлассB+

Москва, улица Льва Толстого, 16

Парк культуры → 506 м
~ 5 мин
Арендная плата в месяц 2 904 133 ₽ 36 800 ₽/м² в год С учётом НДС
Характеристики 947 м² 1 - 3 этаж Под отделку
Преимущества
  • Класс B+
  • Пешком от метро
  • Кондиционирование и вентиляция
  • Свой паркинг
  • Развитая инфраструктура

Предлагаем в прямую аренду помещение под офис класса B+ площадью 947 квадр. метров в новом бизнес-центре "Морозов"... подробнее

Презентация по предложению

Собираете информацию? Получите подробную презентацию в удобном формате!

БЕЗ КОМИССИИ ID: 304911 Рейтинг8.6 КлассА

Москва, улица Усачева, 2 с1

Фрунзенская → 575 м
~ 6 мин
Арендная плата в месяц 3 354 925 ₽ 39 900 ₽/м² в год С учётом НДС
Характеристики 1 009 м² 3 этаж Готово к въезду
Преимущества
  • Класс А
  • Пешком от метро
  • Кондиционирование и вентиляция
  • Свой паркинг
  • Несколько провайдеров связи
  • Развитая инфраструктура

Предлагается в долгосрочную прямую аренду офисное помещение класса А площадью 1009 квадратных метров в бизнес-центре "Фьюжн Парк"... подробнее

Презентация по предложению

Собираете информацию? Получите подробную презентацию в удобном формате!

БЕЗ КОМИССИИ ID: 260830 Рейтинг8.2 КлассB+

Москва, Бутиковский переулок, 14 с1

Парк культуры → 758 м
~ 8 мин
Арендная плата в месяц 2 721 667 ₽ 35 500 ₽/м² в год С учётом НДС
Характеристики 920 м² 3 - 4 этаж Готово к въезду
Преимущества
  • Класс B+
  • Пешком от метро
  • Кондиционирование и вентиляция
  • Свой паркинг
  • Несколько провайдеров связи

Предлагается в прямую аренду офис класса B+ площадью 920 кв. метров в историческом недавно отреконструированном бизнес-центре "Бутиковский"... подробнее

Презентация по предложению

Собираете информацию? Получите подробную презентацию в удобном формате!

БЕЗ КОМИССИИ ID: 420467 Рейтинг8.5 КлассB

Москва, Большой Левшинский переулок, 6/2 с1

Смоленская → 821 м
~ 8 мин
Арендная плата в месяц 3 798 140 ₽ 43 600 ₽/м² в год С учётом НДС
Характеристики 1 045 м² -1 - 2 этаж Готово к въезду
Преимущества
  • Класс B
  • Пешком от метро
  • Кондиционирование и вентиляция
  • Свой паркинг

Собственник сдает в прямую аренду офисное помещение класса B площадью 1045 квадр. метров в бизнес-центре... подробнее

>

Виртуальный тур

Презентация по предложению

Собираете информацию? Получите подробную презентацию в удобном формате!

Посмотреть все похожие предложения
Отнеситесь рационально к процессу поиска нового офиса!

Просто ответьте на 3 вопроса, и наши специалисты сами предложат оптимальные варианты под ваш бюджет

.