8.2

Виртуальный тур

Смотреть все фото
БЕЗ КОМИССИИ ID: 274597 Рейтинг9.0 КлассА

Москва, Волочаевская улица, 40Г с4

Римская → 966 м
~ 10 мин
Арендная плата в месяц 3 062 800 ₽ 49 400 ₽/м² в год С учётом НДС

Презентация по предложению

Собираете информацию? Получите подробную презентацию в удобном формате!

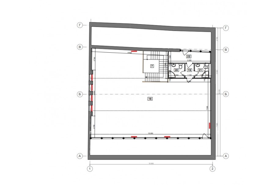
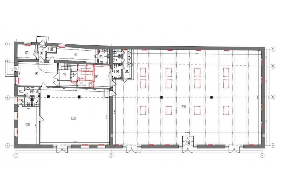
Площадь 744 м²
Состояние Готово к въезду
Планировка Открытая
Этаж 1

Описание

Преимущества
  • Класс А
  • Пешком от метро
  • Кондиционирование и вентиляция
  • Свой паркинг
Сдаем в долгосрочную аренду офисный блок класса А площадью 744 кв.м в бизнес-центре "Типография №9".

Москва, ЮВАО, Волочаевская улица, 40Г с4

Удобная локация здания:
- Автомобиль: близость транспортных магистралей, таких как Шоссе Энтузиастов и других.
- Возможность аренды парковочных мест.
- Ближайшее метро: от метро "Римская" всего 15 мин пешком

Офис класса А:
- Помещение готово к въезду
- Вентиляция: Приточно-вытяжная вентиляция
- Кондиционирование: центральное


Если данное предложение подходит Вашему запросу:

1. Мы отправим Вам подробную презентацию с планировкой и фотографиями в течение 10 минут после звонка, чтобы Вы могли поделиться информацией с руководством или с коллегами.
2. Ответим на любые Ваши вопросы, готовы обсуждать любые предложения по коммерческим условиям аренды помещения.
3.

Вы можете позвонить нам в любое время. Мы ответим на Ваши вопросы по будням до 19:00, а поздно вечером или в выходные сможем передать Ваш контакт нашему менеджеру.

Коммерческие условия

Арендная плата 1 775 680 ₽
Ставка арендной платы 49 400 ₽ м²/год
Эксплуатационные расходы Включены в ставку
Налоги С учётом НДС
Тип договора Прямая аренда
Срок договора от 11 месяцев
Размер платежей 1 месяц
Обеспечительный платеж 1 месяц
Статус Сдан

О бизнес-центре

Класс А
Этажность 4
Лифты Нет
Общая площадь 3 549 м²
Паркинг Наземный
Вентиляция приточно-вытяжная
Кондиционирование центральное
Телекоммуникации Интернет/Телефония

Расположение

Подробная презентацию по предложению

Собираете информацию? Получите подробную презентацию в удобном формате, чтобы обсудить вариант с коллегами или переслать руководству!

Похожие предложения в других зданиях

БЕЗ КОМИССИИ ID: 1297523 Рейтинг9.4 КлассА

Москва, 2-й Сыромятнический переулок, 1

Курская → 444 м
~ 4 мин
Арендная плата в месяц 3 348 934 ₽ 49 900 ₽/м² в год С учётом НДС
Характеристики 805 м² 9 этаж Готово к въезду
Преимущества
  • Класс А
  • Пешком от метро
  • Кондиционирование и вентиляция
  • Свой паркинг
  • Несколько провайдеров связи
  • Развитая инфраструктура

Сдается в прямую аренду офисное помещение класса А общей площадью 805 квадр. метров в бизнес-центре "Дельта Плаза"... подробнее

>

Виртуальный тур

Презентация по предложению

Собираете информацию? Получите подробную презентацию в удобном формате!

БЕЗ КОМИССИИ ID: 1380304 Рейтинг9.4 КлассА

Москва, бульвар Энтузиастов, 2

Площадь Ильича → 87 м
~ 1 мин
Арендная плата в месяц 3 602 500 ₽ 55 000 ₽/м² в год С учётом НДС
Характеристики 786 м² 11 - 15 этаж Готово к въезду
Преимущества
  • Класс А
  • Пешком от метро
  • Кондиционирование и вентиляция
  • Несколько провайдеров связи
  • Развитая инфраструктура

Предлагаем в прямую аренду офисное помещение класса А площадью 786 кв. метров в бизнес-центре "Golden Gate"... подробнее

Презентация по предложению

Собираете информацию? Получите подробную презентацию в удобном формате!

БЕЗ КОМИССИИ ID: 75786 Рейтинг9.0 КлассB

Москва, улица Земляной Вал, 35 с1

Курская → 39 м
~ 1 мин
Арендная плата в месяц 2 336 000 ₽ 43 800 ₽/м² в год С учётом НДС
Характеристики 640 м² 1 - 2 этаж Готово к въезду
Преимущества
  • Класс B
  • Пешком от метро
  • Кондиционирование и вентиляция
  • Свой паркинг

Сдается в долгосрочную аренду офисное помещение класса B площадью 640 кв.м в историческом недавно отреконструированном бизнес-центре... подробнее

Презентация по предложению

Собираете информацию? Получите подробную презентацию в удобном формате!

БЕЗ КОМИССИИ ID: 1326736 Рейтинг8.6 КлассB+

Москва, улица Земляной Вал, 50А с2

Курская → 792 м
~ 8 мин
Арендная плата в месяц 2 964 092 ₽ 51 800 ₽/м² в год С учётом НДС
Характеристики 686 м² -1 этаж Готово к въезду
Преимущества
  • Класс B+
  • Пешком от метро
  • Кондиционирование и вентиляция
  • Несколько провайдеров связи

Предлагается в долгосрочную прямую аренду помещение под офис класса B+ площадью 686 квадр. метров в недавно отреконструированном бизнес-центре "Садко"... подробнее

Презентация по предложению

Собираете информацию? Получите подробную презентацию в удобном формате!

БЕЗ КОМИССИИ ID: 1306691 Рейтинг5.4 КлассB

Москва, Подсосенский переулок, 23 с4

Курская → 445 м
~ 4 мин
Арендная плата в месяц 2 708 825 ₽ 48 300 ₽/м² в год С учётом НДС
Характеристики 673 м² 1 - 2 этаж Готово к въезду
Преимущества
  • Класс B
  • Пешком от метро

Сдается в прямую аренду здание под офис класса B площадью 673 квадр. метров. .. подробнее

Презентация по предложению

Собираете информацию? Получите подробную презентацию в удобном формате!

Посмотреть все похожие предложения
Отнеситесь рационально к процессу поиска нового офиса!

Просто ответьте на 3 вопроса, и наши специалисты сами предложат оптимальные варианты под ваш бюджет

.