8.2
Смотреть все фото
БЕЗ КОМИССИИ ID: 1376427 Рейтинг7.6 КлассА
Бизнес-центр «Трио»

Аренда офиса 151 м²

Москва, улица 8 Марта, 1 с12

Петровский парк → 1.26 км
~ 13 мин
Арендная плата в месяц 540 000 ₽ 42 900 ₽/м² в год Упрощённая система налогообложения

Презентация по предложению

Собираете информацию? Получите подробную презентацию в удобном формате!

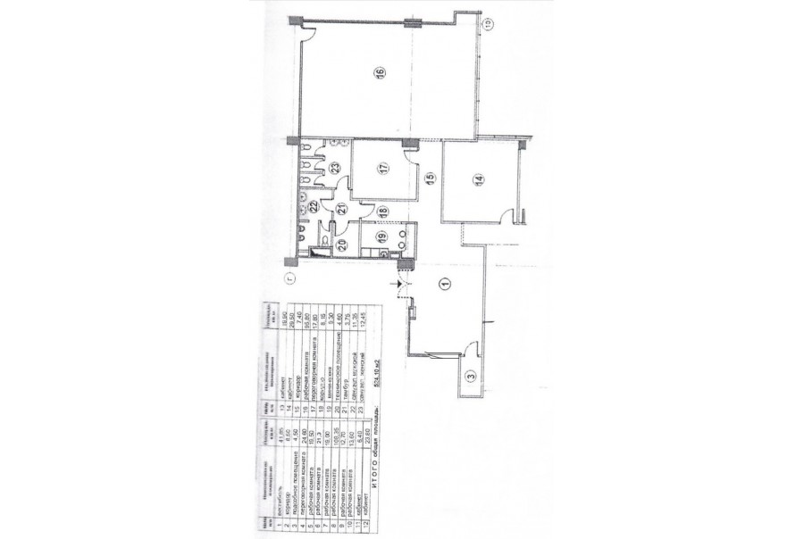
Площадь 151 м²
Состояние Готово к въезду
Планировка Кабинетная
Этаж 4

Описание

Преимущества
  • Класс А
  • Пешком от метро
  • Кондиционирование и вентиляция
  • Развитая инфраструктура
Предлагаем в долгосрочную прямую аренду офис класса А общей площадью 151 квадратных метров в бизнес-центре "Трио".

Москва, САО, улица 8 Марта, 1 с12

Удобная локация здания:
- Автомобиль: близость транспортных магистралей, таких как Бутырская улица, Дмитровское шоссе, Ленинградский проспект, Третье Транспортное Кольцо и других.
- Ближайшее метро: от метро "Петровский парк" всего 12 мин пешком

Офис класса А:
- Помещение готово к въезду
- Вентиляция: Приточно-вытяжная вентиляция
- Кондиционирование: центральное
- Презентабельный центральный ресепшн
- Круглосуточная охрана и видеонаблюдение
- Развитая инфраструктура внутри здания


Если данное предложение подходит Вашему запросу:

1. Получите презентацию в течение 10 минут в Whatsapp или на почту с фотографиями и планировкой, чтобы обсудить данный вариант с коллегами или переслать руководству. Для этого позвоните по телефону, указанному в объявлении.
2. Мы готовы ответить на любые Ваши вопросы о помещении и коммерческих условиях аренды.
3. Оперативно организуем просмотр помещения с менеджерами на объекте или подготовим виртуальный тур.

Звоните нам в любое время. По будням мы сможем ответить на Ваши вопросы до 19:00. В выходные или вечернее время мы передадим Ваш контакт нашему менеджеру по аренде.

Коммерческие условия

Арендная плата 540 000 ₽
Ставка арендной платы 42 900 ₽ м²/год
Эксплуатационные расходы Включены в ставку
Налоги Упрощённая система налогообложения
Тип договора Прямая аренда
Срок договора от 11 месяцев
Размер платежей 1 месяц
Обеспечительный платеж 1 месяц
Статус Свободен

О бизнес-центре

Класс А
Этажность 11
Лифты Есть
Общая площадь 37 550 м²
Год постройки 2010
Паркинг Стихийный
Вентиляция приточно-вытяжная
Кондиционирование центральное
Телекоммуникации Интернет/Телефония

Расположение

Подробная презентацию по предложению

Собираете информацию? Получите подробную презентацию в удобном формате, чтобы обсудить вариант с коллегами или переслать руководству!

Похожие предложения в других зданиях

БЕЗ КОМИССИИ ID: 1374579 Рейтинг6.0 КлассB

Москва, Ленинградский проспект, 30 с3

Динамо → 1.12 км
~ 11 мин
Арендная плата в месяц 500 000 ₽ 37 500 ₽/м² в год С учётом НДС
Характеристики 160 м² 2 этаж Готово к въезду
Преимущества
  • Класс B
  • Пешком от метро
  • Кондиционирование и вентиляция

Сдается в долгосрочную аренду офис класса B общей площадью 160 кв.м в бизнес-центре... подробнее

Презентация по предложению

Собираете информацию? Получите подробную презентацию в удобном формате!

БЕЗ КОМИССИИ ID: 1379813 Рейтинг8.2 КлассB+

Москва, Новодмитровская улица, 2 к1

Дмитровская → 864 м
~ 9 мин
Арендная плата в месяц 433 333 ₽ 40 000 ₽/м² в год С учётом НДС
Характеристики 130 м² 8 этаж Готово к въезду
Преимущества
  • Класс B+
  • Пешком от метро
  • Кондиционирование и вентиляция
  • Развитая инфраструктура

Предлагается в долгосрочную аренду помещение под офис класса B+ общей площадью 130 кв. метров в бизнес-центре "Савеловский Сити"... подробнее

Презентация по предложению

Собираете информацию? Получите подробную презентацию в удобном формате!

БЕЗ КОМИССИИ ID: 1375068 Рейтинг7.8 КлассB+

Москва, 3-я улица Ямского Поля, 18

Белорусская → 882 м
~ 9 мин
Арендная плата в месяц 441 000 ₽ 39 200 ₽/м² в год С учётом НДС
Характеристики 135 м² 3 этаж Готово к въезду
Преимущества
  • Класс B+
  • Пешком от метро
  • Кондиционирование и вентиляция
  • Свой паркинг
  • Развитая инфраструктура

Предлагается в долгосрочную аренду офисный блок класса B+ общей площадью 135 квадр. метров в бизнес-центре "Золотой Век"... подробнее

Презентация по предложению

Собираете информацию? Получите подробную презентацию в удобном формате!

Посмотреть все похожие предложения
Отнеситесь рационально к процессу поиска нового офиса!

Просто ответьте на 3 вопроса, и наши специалисты сами предложат оптимальные варианты под ваш бюджет

.