8.2
Смотреть все фото
БЕЗ КОМИССИИ ID: 1327152 Рейтинг8.8 КлассА
Бизнес-центр «Тульский»

Аренда офиса 1246 м²

Москва, Большая Тульская улица, 11

Тульская → 144 м
~ 2 мин
Арендная плата в месяц 4 412 900 ₽ 42 500 ₽/м² в год С учётом НДС

Презентация по предложению

Собираете информацию? Получите подробную презентацию в удобном формате!

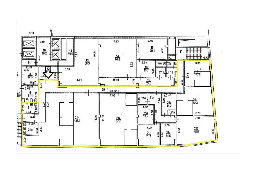
Площадь 1 246 м²
Состояние Готово к въезду
Планировка Смешанная
Этаж 2

Описание

Преимущества
  • Класс А
  • Пешком от метро
  • Кондиционирование и вентиляция
  • Свой паркинг
  • Несколько провайдеров связи
  • Развитая инфраструктура
Сдается в долгосрочную прямую аренду офис класса А площадью 1246 квадр. метров в бизнес-центре "Тульский".

Москва, ЮАО, Большая Тульская улица, 11

Удобное расположение здания для всех видов транспорта:
- Автомобиль: близость транспортных магистралей, таких как Варшавское шоссе, Третье Транспортное Кольцо и других.
- Возможность аренды парковочных мест.
- Ближайшее метро: буквально 1 мин пешком от метро "Тульская"

Офис класса А:
- Офис с отделкой, полностью готов к аренде
- Вентиляция: Приточно-вытяжная вентиляция
- Кондиционирование: центральное
- Презентабельный центральный ресепшн
- Круглосуточная охрана и видеонаблюдение
- Развитая инфраструктура внутри здания

Возможность заключения контракта в соответствии с 44ФЗ по госзакупкам.

Что еще можно узнать о предложении:

1. Мы отправим Вам подробную презентацию с планировкой и фотографиями в течение 10 минут после звонка, чтобы Вы могли поделиться информацией с руководством или с коллегами.
2. Мы готовы ответить на любые Ваши вопросы о помещении и коммерческих условиях аренды.
3. Оперативно организуем просмотр помещения с менеджерами на объекте или подготовим виртуальный тур.

Звоните нам в любое время. По будням мы сможем ответить на Ваши вопросы до 19:00. В выходные или вечернее время мы передадим Ваш контакт нашему менеджеру по аренде.

Коммерческие условия

Арендная плата 4 412 920 ₽
Ставка арендной платы 36 000 ₽ м²/год
Эксплуатационные расходы 6 500 ₽
Налоги С учётом НДС
Тип договора Прямая аренда
Срок договора от 11 месяцев
Размер платежей 1 месяц
Обеспечительный платеж 1 месяц

О бизнес-центре

Класс А
Этажность 5
Лифты Есть
Общая площадь 13 500 м²
Год постройки 2010
Паркинг Подземный
Вентиляция приточно-вытяжная
Кондиционирование центральное
Телекоммуникации Интернет/Телефония

Расположение

Подробная презентацию по предложению

Собираете информацию? Получите подробную презентацию в удобном формате, чтобы обсудить вариант с коллегами или переслать руководству!

Похожие предложения в других зданиях

БЕЗ КОМИССИИ ID: 1301772 Рейтинг3.5 КлассB

Москва, Варшавское шоссе, 5 к1

Тульская → 1.02 км
~ 10 мин
Арендная плата в месяц 3 291 000 ₽ 36 000 ₽/м² в год С учётом НДС
Характеристики 1 097 м² -1 - 3 этаж Под отделку
Преимущества
  • Класс B
  • Пешком от метро
  • Кондиционирование и вентиляция
  • Свой паркинг
  • Несколько провайдеров связи

Сдаем в прямую аренду офисное здание класса B площадью 1097 квадр. метров. .. подробнее

Презентация по предложению

Собираете информацию? Получите подробную презентацию в удобном формате!

БЕЗ КОМИССИИ ID: 1314003 Рейтинг9.3 КлассА

Москва, Автозаводская улица, 23 с85

Тульская → 1.26 км
~ 13 мин
Арендная плата в месяц 4 284 000 ₽ 36 000 ₽/м² в год С учётом НДС
Характеристики 1 428 м² 2 этаж Под отделку
Преимущества
  • Класс А
  • Пешком от метро
  • Новое строительство
  • Кондиционирование и вентиляция

Предлагается в прямую аренду помещение под офис класса А площадью 1428 кв. метров в современном бизнес-центре "Технопарк Зил"... подробнее

Презентация по предложению

Собираете информацию? Получите подробную презентацию в удобном формате!

БЕЗ КОМИССИИ ID: 1314006 Рейтинг9.3 КлассА

Москва, Автозаводская улица, 23 с85

Тульская → 1.26 км
~ 13 мин
Арендная плата в месяц 4 113 000 ₽ 36 000 ₽/м² в год С учётом НДС
Характеристики 1 371 м² 6 этаж Под отделку
Преимущества
  • Класс А
  • Пешком от метро
  • Новое строительство
  • Кондиционирование и вентиляция

Предлагаем в долгосрочную аренду офисный блок класса А площадью 1371 квадр. метров в современном бизнес-центре "Технопарк Зил"... подробнее

Презентация по предложению

Собираете информацию? Получите подробную презентацию в удобном формате!

БЕЗ КОМИССИИ ID: 1314001 Рейтинг9.3 КлассА

Москва, Автозаводская улица, 23 с85

Тульская → 1.26 км
~ 13 мин
Арендная плата в месяц 4 050 000 ₽ 36 000 ₽/м² в год С учётом НДС
Характеристики 1 350 м² 2 этаж Под отделку
Преимущества
  • Класс А
  • Пешком от метро
  • Новое строительство
  • Кондиционирование и вентиляция

Предлагаем в долгосрочную аренду офисное помещение класса А площадью 1350 квадратных метров в современном бизнес-центре "Технопарк Зил"... подробнее

Презентация по предложению

Собираете информацию? Получите подробную презентацию в удобном формате!

БЕЗ КОМИССИИ ID: 1307995 Рейтинг9.3 КлассА

Москва, Автозаводская улица, 23 с85

Тульская → 1.26 км
~ 13 мин
Арендная плата в месяц 3 813 667 ₽ 34 000 ₽/м² в год С учётом НДС
Характеристики 1 346 м² 6 этаж Под отделку
Преимущества
  • Класс А
  • Пешком от метро
  • Новое строительство
  • Кондиционирование и вентиляция

Сдается в долгосрочную аренду офисное помещение класса А площадью 1346 квадр. метров в современном бизнес-центре "Технопарк Зил"... подробнее

Презентация по предложению

Собираете информацию? Получите подробную презентацию в удобном формате!

Посмотреть все похожие предложения
Отнеситесь рационально к процессу поиска нового офиса!

Просто ответьте на 3 вопроса, и наши специалисты сами предложат оптимальные варианты под ваш бюджет