8.2
Смотреть все фото
БЕЗ КОМИССИИ ID: 1327560 Рейтинг8.8 КлассА
Бизнес-центр «Тульский»

Аренда офиса 841 м²

Москва, Большая Тульская улица, 11

Тульская → 144 м
~ 2 мин
Арендная плата в месяц 3 031 500 ₽ 43 300 ₽/м² в год С учётом НДС

Презентация по предложению

Собираете информацию? Получите подробную презентацию в удобном формате!

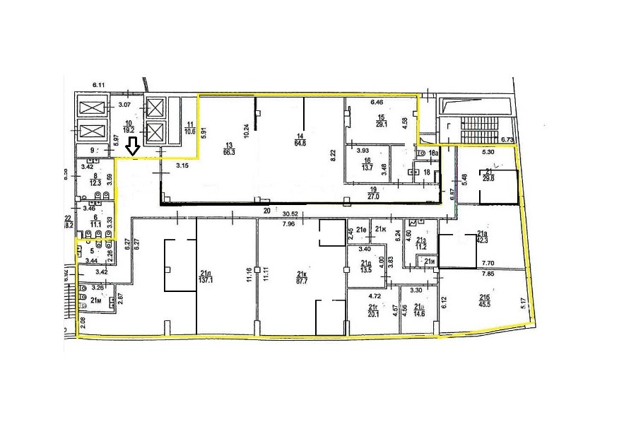
Площадь 841 м²
Состояние Готово к въезду
Планировка Смешанная
Этаж 2 - 5

Описание

Преимущества
  • Класс А
  • Пешком от метро
  • Кондиционирование и вентиляция
  • Свой паркинг
  • Несколько провайдеров связи
  • Развитая инфраструктура
Сдается в долгосрочную прямую аренду офисный блок класса А площадью 1163 квадр. метров в бизнес-центре "Тульский".

Москва, ЮАО, Большая Тульская улица, 11

Удобное расположение здания для всех видов транспорта:
- Автомобиль: близость транспортных магистралей, таких как Третье Транспортное Кольцо, Варшавское шоссе и других.
- Возможность аренды парковочных мест.
- Ближайшее метро: буквально 1 мин пешком от метро "Тульская"

Офис класса А:
- Помещение готово к въезду
- Вентиляция: Приточно-вытяжная вентиляция
- Кондиционирование: центральное
- Презентабельный центральный ресепшн
- Круглосуточная охрана и видеонаблюдение
- Развитая инфраструктура внутри здания

Возможность заключения контракта в соответствии с 44ФЗ по госзакупкам.

Если предложение предварительно Вам подходит:

1. Мы подготовили презентацию с информацией о помещении, фотографиями и планировкой, чтобы Вы могли поделиться ей с коллегами или руководством. Попросите об этом нашего менеджера по телефону в объявлении.
2. Задайте любые вопросы менеджеру по телефону, готовы обсуждать любые предложения по финансовым условиям договора аренды.
3. Оперативно организуем просмотр помещения, договоримся на любое удобное время, подготовим виртуальный тур.

Вы можете позвонить нам в любое время. Мы ответим на Ваши вопросы по будням до 19:00, а поздно вечером или в выходные зафиксируем Ваш контакт и перезвоним в рабочее время.

Коммерческие условия

Арендная плата 3 122 650 ₽
Ставка арендной платы 36 800 ₽ м²/год
Эксплуатационные расходы 6 500 ₽
Налоги С учётом НДС
Тип договора Прямая аренда
Срок договора от 11 месяцев
Размер платежей 1 месяц
Обеспечительный платеж 1 месяц

О бизнес-центре

Класс А
Этажность 5
Лифты Есть
Общая площадь 13 500 м²
Год постройки 2010
Паркинг Подземный
Вентиляция приточно-вытяжная
Кондиционирование центральное
Телекоммуникации Интернет/Телефония

Расположение

Подробная презентацию по предложению

Собираете информацию? Получите подробную презентацию в удобном формате, чтобы обсудить вариант с коллегами или переслать руководству!

Похожие предложения в других зданиях

БЕЗ КОМИССИИ ID: 1314054 Рейтинг9.3 КлассА

Москва, Автозаводская улица, 23 с85

Тульская → 1.26 км
~ 13 мин
Арендная плата в месяц 3 046 667 ₽ 40 000 ₽/м² в год С учётом НДС
Характеристики 914 м² 23 этаж Под отделку
Преимущества
  • Класс А
  • Пешком от метро
  • Новое строительство
  • Кондиционирование и вентиляция

Предлагается в долгосрочную аренду помещение под офис класса А площадью 914 квадратных метров в современном бизнес-центре "Технопарк Зил"... подробнее

Презентация по предложению

Собираете информацию? Получите подробную презентацию в удобном формате!

БЕЗ КОМИССИИ ID: 1314052 Рейтинг9.3 КлассА

Москва, Автозаводская улица, 23 с85

Тульская → 1.26 км
~ 13 мин
Арендная плата в месяц 3 046 667 ₽ 40 000 ₽/м² в год С учётом НДС
Характеристики 914 м² 22 этаж Под отделку
Преимущества
  • Класс А
  • Пешком от метро
  • Новое строительство
  • Кондиционирование и вентиляция

Предлагаем в прямую аренду офисное помещение класса А площадью 914 кв. метров в современном бизнес-центре "Технопарк Зил"... подробнее

Презентация по предложению

Собираете информацию? Получите подробную презентацию в удобном формате!

БЕЗ КОМИССИИ ID: 1314050 Рейтинг9.3 КлассА

Москва, Автозаводская улица, 23 с85

Тульская → 1.26 км
~ 13 мин
Арендная плата в месяц 3 046 667 ₽ 40 000 ₽/м² в год С учётом НДС
Характеристики 914 м² 21 этаж Под отделку
Преимущества
  • Класс А
  • Пешком от метро
  • Новое строительство
  • Кондиционирование и вентиляция

Предлагается в долгосрочную прямую аренду помещение под офис класса А общей площадью 914 кв.м в современном бизнес-центре "Технопарк Зил"... подробнее

Презентация по предложению

Собираете информацию? Получите подробную презентацию в удобном формате!

БЕЗ КОМИССИИ ID: 1314048 Рейтинг9.3 КлассА

Москва, Автозаводская улица, 23 с85

Тульская → 1.26 км
~ 13 мин
Арендная плата в месяц 3 046 667 ₽ 40 000 ₽/м² в год С учётом НДС
Характеристики 914 м² 20 этаж Под отделку
Преимущества
  • Класс А
  • Пешком от метро
  • Новое строительство
  • Кондиционирование и вентиляция

Предлагается в прямую аренду офисное помещение класса А площадью 914 кв. метров в современном бизнес-центре "Технопарк Зил"... подробнее

Презентация по предложению

Собираете информацию? Получите подробную презентацию в удобном формате!

БЕЗ КОМИССИИ ID: 1314046 Рейтинг9.3 КлассА

Москва, Автозаводская улица, 23 с85

Тульская → 1.26 км
~ 13 мин
Арендная плата в месяц 3 046 667 ₽ 40 000 ₽/м² в год С учётом НДС
Характеристики 914 м² 19 этаж Под отделку
Преимущества
  • Класс А
  • Пешком от метро
  • Новое строительство
  • Кондиционирование и вентиляция

Предлагаем в прямую аренду помещение под офис класса А общей площадью 914 кв.м в современном бизнес-центре "Технопарк Зил"... подробнее

Презентация по предложению

Собираете информацию? Получите подробную презентацию в удобном формате!

Посмотреть все похожие предложения
Отнеситесь рационально к процессу поиска нового офиса!

Просто ответьте на 3 вопроса, и наши специалисты сами предложат оптимальные варианты под ваш бюджет