8.2
Смотреть все фото
БЕЗ КОМИССИИ ID: 1379630 Рейтинг8.2 КлассB+

Москва, набережная Академика Туполева, 15 к22

Бауманская → 1.23 км
~ 15 мин
Арендная плата в месяц 1 367 500 ₽ 30 000 ₽/м² в год Упрощённая система налогообложения

Презентация по предложению

Собираете информацию? Получите подробную презентацию в удобном формате!

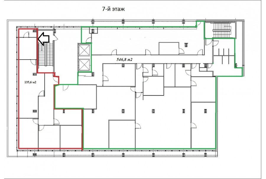
Площадь 547 м²
Состояние Готово к въезду
Планировка Кабинетная
Этаж 7

Описание

Преимущества
  • Класс B+
  • Пешком от метро
  • Кондиционирование и вентиляция
  • Свой паркинг
Сдается в долгосрочную прямую аренду офисный блок класса B+ площадью 547 квадр. метров в бизнес-центре "Туполев плаза II".

Москва, ЦАО, набережная Академика Туполева, 15 к22

Удобная локация здания:
- Автомобиль: близость транспортных магистралей, таких как Третье Транспортное Кольцо и других.
- Возможность аренды парковочных мест.
- Ближайшее метро: от метро "Бауманская" всего 15 мин пешком

Офис класса B+:
- Помещение готово к въезду
- Вентиляция: Приточно-вытяжная вентиляция
- Кондиционирование: центральное
- Круглосуточная охрана и видеонаблюдение

Возможность заключения контракта в соответствии с 44ФЗ по госзакупкам.

Если предложение предварительно Вам подходит:

1. Получите презентацию в течение 10 минут в Whatsapp или на почту с фотографиями и планировкой, чтобы обсудить данный вариант с коллегами или переслать руководству. Для этого позвоните по телефону, указанному в объявлении.
2. Задайте любые вопросы менеджеру по телефону, готовы обсуждать любые предложения по финансовым условиям договора аренды.
3. Оперативно организуем просмотр помещения с менеджерами на объекте или подготовим виртуальный тур.

Вы можете позвонить нам в любое время. Мы ответим на Ваши вопросы по будням до 19:00, а поздно вечером или в выходные зафиксируем Ваш контакт и перезвоним в рабочее время.

Коммерческие условия

Арендная плата 1 367 500 ₽
Ставка арендной платы 30 000 ₽ м²/год
Эксплуатационные расходы Включены в ставку
Налоги Упрощённая система налогообложения
Тип договора Прямая аренда
Срок договора от 11 месяцев
Размер платежей 1 месяц
Обеспечительный платеж 1 месяц
Статус Свободен

О бизнес-центре

Класс B+
Этажность 7
Лифты Есть
Общая площадь 7 000 м²
Год постройки 2006
Паркинг Наземный
Вентиляция приточно-вытяжная
Кондиционирование центральное
Телекоммуникации Интернет/Телефония

Расположение

Подробная презентацию по предложению

Собираете информацию? Получите подробную презентацию в удобном формате, чтобы обсудить вариант с коллегами или переслать руководству!

Похожие предложения в других зданиях

БЕЗ КОМИССИИ ID: 1380729 Рейтинг7.9 КлассB+

Москва, улица Радио, 24 к1

Бауманская → 1.44 км
~ 14 мин
Арендная плата в месяц 1 246 995 ₽ 29 600 ₽/м² в год С учётом НДС
Характеристики 506 м² 1 - 5 этаж Готово к въезду
Преимущества
  • Класс B+
  • Пешком от метро
  • Кондиционирование и вентиляция
  • Свой паркинг
  • Развитая инфраструктура

Сдается в прямую аренду офисное помещение класса B+ общей площадью 506 кв. метров в бизнес-центре "Яуза Тауэр"... подробнее

Презентация по предложению

Собираете информацию? Получите подробную презентацию в удобном формате!

БЕЗ КОМИССИИ ID: 757588 Рейтинг7.8 КлассB

Москва, 2-я Бауманская улица, 9/23

Бауманская → 1.31 км
~ 13 мин
Арендная плата в месяц 1 195 000 ₽ 30 000 ₽/м² в год С учётом НДС
Характеристики 478 м² 7 этаж Под отделку
Преимущества
  • Класс B
  • Пешком от метро
  • Кондиционирование и вентиляция

Предлагается в долгосрочную аренду офисный блок класса B общей площадью 478 кв. метров в бизнес-центре... подробнее

Презентация по предложению

Собираете информацию? Получите подробную презентацию в удобном формате!

БЕЗ КОМИССИИ ID: 3988 Рейтинг8.7 КлассА

Москва, Большой Демидовский переулок, 12

Бауманская → 841 м
~ 8 мин
Арендная плата в месяц 1 350 000 ₽ 30 000 ₽/м² в год С учётом НДС
Характеристики 540 м² 1 этаж Под отделку
Преимущества
  • Класс А
  • Пешком от метро
  • Кондиционирование и вентиляция
  • Свой паркинг
  • Несколько провайдеров связи

Сдается в долгосрочную аренду офисное помещение класса А площадью 540 кв.м в историческом недавно отреконструированном бизнес-центре "Демидов двор"... подробнее

Презентация по предложению

Собираете информацию? Получите подробную презентацию в удобном формате!

БЕЗ КОМИССИИ ID: 129567 Рейтинг6.3 КлассB

Москва, Бауманская улица, 58 стр 16

Бауманская → 711 м
~ 7 мин
Арендная плата в месяц 1 341 725 ₽ 28 700 ₽/м² в год С учётом НДС
Характеристики 561 м² 2 этаж Готово к въезду
Преимущества
  • Класс B
  • Пешком от метро
  • Кондиционирование и вентиляция
  • Свой паркинг

Сдается в прямую аренду помещение под офис класса B общей площадью 561 квадратных метров в бизнес-центре... подробнее

Презентация по предложению

Собираете информацию? Получите подробную презентацию в удобном формате!

БЕЗ КОМИССИИ ID: 1373054 Рейтинг7.5 КлассB

Москва, Аптекарский переулок, 4 с2

Бауманская → 735 м
~ 7 мин
Арендная плата в месяц 1 400 000 ₽ 28 000 ₽/м² в год С учётом НДС
Характеристики 600 м² 3 этаж Готово к въезду
Преимущества
  • Класс B
  • Пешком от метро
  • Кондиционирование и вентиляция
  • Свой паркинг
  • Несколько провайдеров связи

Сдается в долгосрочную прямую аренду офисный блок класса B площадью 600 кв. метров в бизнес-центре... подробнее

Презентация по предложению

Собираете информацию? Получите подробную презентацию в удобном формате!

Посмотреть все похожие предложения
Отнеситесь рационально к процессу поиска нового офиса!

Просто ответьте на 3 вопроса, и наши специалисты сами предложат оптимальные варианты под ваш бюджет

.