8.2
Смотреть все фото
БЕЗ КОМИССИИ ID: 1379790 Рейтинг6.2 КлассB
Бизнес-центр «Тверская 20 с3»

Аренда офиса 1043 м²

Москва, Тверская улица, 20 с3

Маяковская → 513 м
~ 5 мин
Арендная плата в месяц 3 699 700 ₽ 42 600 ₽/м² в год Упрощённая система налогообложения

Презентация по предложению

Собираете информацию? Получите подробную презентацию в удобном формате!

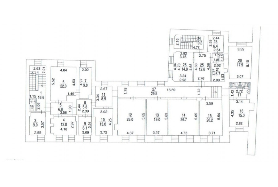
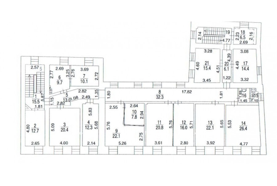
Площадь 1 043 м²
Состояние Готово к въезду
Планировка Кабинетная
Этаж 1 - 4

Описание

Преимущества
  • Класс B
  • Пешком от метро
  • Кондиционирование и вентиляция
  • Свой паркинг
  • Развитая инфраструктура
Предлагается в долгосрочную прямую аренду здание под офис класса B общей площадью 1043 квадр. метров.

Москва, ЦАО, Тверская улица, 20 с3

Удобное расположение в пределах Садового кольца:
- Возможность аренды парковочных мест.
- Ближайшее метро: от метро "Маяковская" всего 5 мин пешком

Офис класса B:
- Помещение с отделкой, готово к въезду
- Кондиционирование: сплит-системы

Возможность заключения контракта в соответствии с 44ФЗ по госзакупкам.

Что еще можно узнать о предложении:

1. Мы подготовили презентацию с информацией о помещении, фотографиями и планировкой, чтобы Вы могли поделиться ей с коллегами или руководством. Попросите об этом нашего менеджера по телефону в объявлении.
2. Мы готовы ответить на любые Ваши вопросы о помещении и коммерческих условиях аренды.
3. Оперативно организуем просмотр помещения с менеджерами на объекте или подготовим виртуальный тур.

Звоните нам в любое время. По будням мы сможем ответить на Ваши вопросы до 19:00. В выходные или вечернее время мы передадим Ваш контакт нашему менеджеру по аренде.

Коммерческие условия

Арендная плата 3 699 700 ₽
Ставка арендной платы 42 600 ₽ м²/год
Эксплуатационные расходы Включены в ставку
Налоги Упрощённая система налогообложения
Тип договора Прямая аренда
Срок договора от 11 месяцев
Размер платежей 1 месяц
Обеспечительный платеж 1 месяц
Статус Свободен

О бизнес-центре

Класс B
Этажность 4
Лифты Нет
Общая площадь 938 м²
Год постройки 1917
Паркинг Наземный
Вентиляция естественная
Кондиционирование сплит-системы
Телекоммуникации Интернет/Телефония

Расположение

Подробная презентацию по предложению

Собираете информацию? Получите подробную презентацию в удобном формате, чтобы обсудить вариант с коллегами или переслать руководству!

Похожие предложения в других зданиях

БЕЗ КОМИССИИ ID: 1956 Рейтинг7.6 КлассB

Москва, Ермолаевский переулок, 27

Маяковская → 568 м
~ 6 мин
Арендная плата в месяц 3 800 000 ₽ 38 000 ₽/м² в год С учётом НДС
Характеристики 1 200 м² 3 этаж Готово к въезду
Преимущества
  • Класс B
  • Пешком от метро
  • Кондиционирование и вентиляция
  • Свой паркинг
  • Несколько провайдеров связи

Предлагается в долгосрочную аренду офис класса B площадью 1200 кв.м в историческом недавно отреконструированном бизнес-центре "Ермолаевский"... подробнее

Презентация по предложению

Собираете информацию? Получите подробную презентацию в удобном формате!

БЕЗ КОМИССИИ ID: 1955 Рейтинг7.6 КлассB

Москва, Ермолаевский переулок, 27

Маяковская → 568 м
~ 6 мин
Арендная плата в месяц 2 850 000 ₽ 38 000 ₽/м² в год С учётом НДС
Характеристики 900 м² 3 этаж Готово к въезду
Преимущества
  • Класс B
  • Пешком от метро
  • Кондиционирование и вентиляция
  • Свой паркинг
  • Несколько провайдеров связи

Собственник сдает в долгосрочную прямую аренду офисное помещение класса B площадью 900 квадратных метров в историческом недавно отреконструированном бизнес-центре "Ермолаевский"... подробнее

Презентация по предложению

Собираете информацию? Получите подробную презентацию в удобном формате!

БЕЗ КОМИССИИ ID: 910571 Рейтинг8.7 КлассА

Москва, Большой Гнездниковский переулок, 3

Чеховская → 636 м
~ 6 мин
Арендная плата в месяц 4 382 750 ₽ 47 000 ₽/м² в год С учётом НДС
Характеристики 1 119 м² 2 этаж Готово к въезду
Преимущества
  • Класс А
  • Пешком от метро
  • Кондиционирование и вентиляция
  • Свой паркинг

Сдаем в прямую аренду офисный блок класса А общей площадью 1119 квадратных метров в бизнес-центре... подробнее

Презентация по предложению

Собираете информацию? Получите подробную презентацию в удобном формате!

ВОЗМОЖНО ОСВОБОЖДЕНИЕ ID: 1292709 Рейтинг8.1 КлассB+

Москва, Тверской бульвар, 13 с1

Пушкинская → 932 м
~ 9 мин
Арендная плата в месяц 3 850 000 ₽ 46 200 ₽/м² в год С учётом НДС
Характеристики 1 000 м² 4 - 7 этаж Готово к въезду
Преимущества
  • Класс B+
  • Пешком от метро
  • Кондиционирование и вентиляция
  • Свой паркинг
  • Несколько провайдеров связи
  • Развитая инфраструктура

Сдаем в прямую аренду помещение под офис класса B+ общей площадью 1000 квадратных метров в бизнес-центре "Тверской"... подробнее

Презентация по предложению

Собираете информацию? Получите подробную презентацию в удобном формате!

БЕЗ КОМИССИИ ID: 282373 Рейтинг8.1 КлассА

Москва, Садовая-Кудринская улица, 32 с1

Маяковская → 581 м
~ 6 мин
Арендная плата в месяц 3 993 600 ₽ 41 600 ₽/м² в год С учётом НДС
Характеристики 1 152 м² 5 - 7 этаж Готово к въезду
Преимущества
  • Класс А
  • Пешком от метро
  • Кондиционирование и вентиляция
  • Свой паркинг
  • Развитая инфраструктура

Сдается в прямую аренду помещение под офис класса А площадью 1152 кв.м в бизнес-центре "Бронная Плаза"... подробнее

Презентация по предложению

Собираете информацию? Получите подробную презентацию в удобном формате!

Посмотреть все похожие предложения
Отнеситесь рационально к процессу поиска нового офиса!

Просто ответьте на 3 вопроса, и наши специалисты сами предложат оптимальные варианты под ваш бюджет

.