8.2
Смотреть все фото
БЕЗ КОМИССИИ ID: 1327281 Рейтинг9.5 КлассB
Бизнес-центр «Twist»

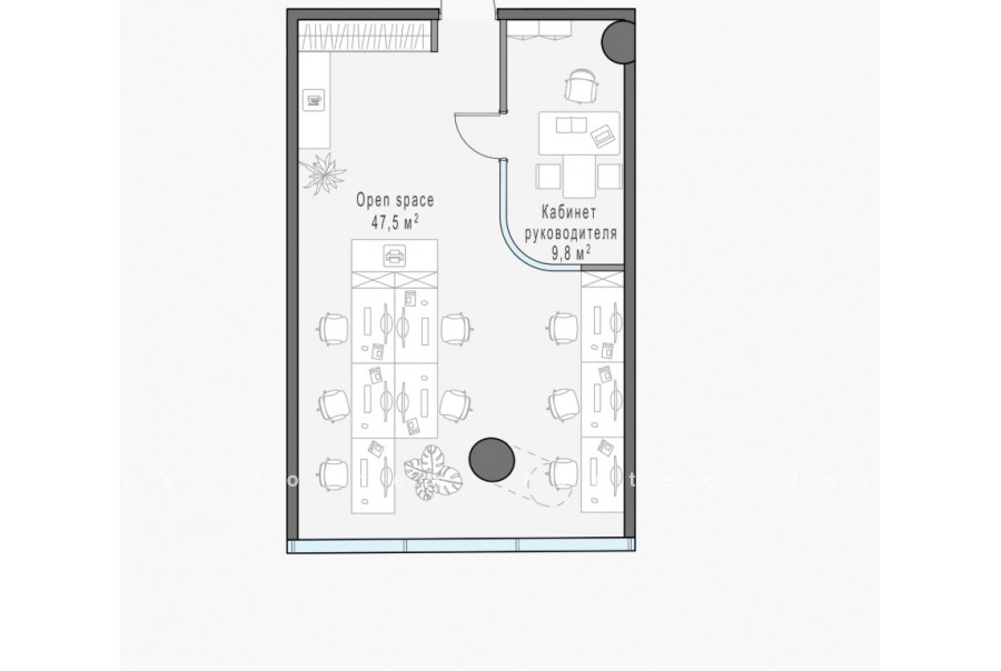
Продажа офиса 59 м²

Москва, Бутырская улица, 1

Савёловская → 237 м
~ 2 мин
Стоимость 52.51 млн ₽ 890 000 ₽/м²

Презентация по предложению

Собираете информацию? Получите подробную презентацию в удобном формате!

Площадь 59 м²
Состояние Под отделку
Планировка Смешанная
Этаж 7

Описание

Преимущества
  • Класс B
  • Пешком от метро
  • Новое строительство
  • Кондиционирование и вентиляция
В продаже офисное помещение площадью 59 кв.м в бизнес-центре "Twist".

Помещение можно адаптировать под любой бизнес благодаря функциональной планировке - идеальный баланс комфорта и экономической выгоды. Оптимальное решение для стабильного бизнеса или выгодных инвестиций.

Офис класса B:
- Офис в состоянии shell & core
- Вентиляция: Приточно-вытяжная вентиляция
- Кондиционирование: центральное

О офисном центре:
Москва, САО, Бутырская улица, 1

Удобное расположение здания для всех видов транспорта:
- Автомобиль: близость транспортных магистралей, таких как Ленинградский проспект, Бутырская улица, Третье Транспортное Кольцо, Дмитровское шоссе и других.
- Возможность аренды парковочных мест.
- Ближайшее метро: буквально 2 мин пешком от метро "Савёловская"



Если данное предложение подходит Вашему запросу:

1. Мы подготовили презентацию с информацией о помещении, фотографиями и планировкой, чтобы Вы могли поделиться ей с коллегами или руководством. Попросите об этом нашего менеджера по телефону в объявлении.
2. Ответим на любые Ваши вопросы, готовы обсуждать любые предложения по коммерческим условиям продажи помещения.

Звоните нам в любое время. По будням мы сможем ответить на Ваши вопросы до 19:00. В выходные или вечернее время мы передадим Ваш контакт нашему менеджеру.

О бизнес-центре

Класс B
Этажность 9
Лифты Есть
Общая площадь 19 000 м²
Год постройки 2026
Паркинг Наземный и подземный
Вентиляция приточно-вытяжная
Кондиционирование центральное
Телекоммуникации Интернет/Телефония

Расположение

Подробная презентацию по предложению

Собираете информацию? Получите подробную презентацию в удобном формате, чтобы обсудить вариант с коллегами или переслать руководству!

Похожие предложения в других зданиях

БЕЗ КОМИССИИ ID: 1318124 Рейтинг9.0 КлассА

Москва, Бумажный проезд, 19

Савёловская → 638 м
~ 6 мин
Стоимость 9 599 998 650 ₽ 658 700 ₽/м²
Характеристики 14 575 м² -2 - 9 этаж Готово к въезду
Преимущества
  • Класс А
  • Пешком от метро
  • Новое строительство
  • Кондиционирование и вентиляция

Продается офисное помещение общей площадью 14575 кв. метров в бизнес-центре "STONE Towers". .. подробнее

Презентация по предложению

Собираете информацию? Получите подробную презентацию в удобном формате!

БЕЗ КОМИССИИ ID: 1377102 Рейтинг9.0 КлассА

Москва, Бумажный проезд, 19

Савёловская → 638 м
~ 6 мин
Стоимость 45 500 000 ₽ 650 000 ₽/м²
Характеристики 70 м² 8 этаж Под отделку
Преимущества
  • Класс А
  • Пешком от метро
  • Новое строительство
  • Кондиционирование и вентиляция

В продаже офис общей площадью 70 квадратных метров в бизнес-центре "STONE Towers". .. подробнее

Презентация по предложению

Собираете информацию? Получите подробную презентацию в удобном формате!

БЕЗ КОМИССИИ ID: 1294239 Рейтинг8.4 КлассB+

Москва, улица Бутырский Вал, 68/70 с1

Савеловская → 704 м
~ 7 мин
Стоимость 232 260 000 ₽ 420 000 ₽/м²
Характеристики 553 м² 2 этаж Готово к въезду
Преимущества
  • Класс B+
  • Пешком от метро
  • Кондиционирование и вентиляция
  • Свой паркинг
  • Несколько провайдеров связи

Продается офисный блок площадью 553 квадратных метров в бизнес-центре "Бейкер Плаза". .. подробнее

Презентация по предложению

Собираете информацию? Получите подробную презентацию в удобном формате!

БЕЗ КОМИССИИ ID: 1316776 Рейтинг8.4 КлассB+

Москва, улица Бутырский Вал, 68/70 с1

Савеловская → 704 м
~ 7 мин
Стоимость 177 600 000 ₽ 400 000 ₽/м²
Характеристики 444 м² 3 этаж Готово к въезду
Преимущества
  • Класс B+
  • Пешком от метро
  • Кондиционирование и вентиляция
  • Свой паркинг
  • Несколько провайдеров связи

В продаже офис площадью 444 кв.м в бизнес-центре "Бейкер Плаза". .. подробнее

Презентация по предложению

Собираете информацию? Получите подробную презентацию в удобном формате!

БЕЗ КОМИССИИ ID: 1316775 Рейтинг8.4 КлассB+

Москва, улица Бутырский Вал, 68/70 с1

Савеловская → 704 м
~ 7 мин
Стоимость 170 000 000 ₽ 400 000 ₽/м²
Характеристики 425 м² 5 этаж Готово к въезду
Преимущества
  • Класс B+
  • Пешком от метро
  • Кондиционирование и вентиляция
  • Свой паркинг
  • Несколько провайдеров связи

В продаже офисный блок площадью 425 кв.м в бизнес-центре "Бейкер Плаза". .. подробнее

Презентация по предложению

Собираете информацию? Получите подробную презентацию в удобном формате!

Посмотреть все похожие предложения
Отнеситесь рационально к процессу поиска нового офиса!

Просто ответьте на 3 вопроса, и наши специалисты сами предложат оптимальные варианты под ваш бюджет

.