8.2
Смотреть все фото
БЕЗ КОМИССИИ ID: 272769 Рейтинг7.0 КлассB

Москва, улица Усиевича, 31А с2

Сокол → 526 м
~ 5 мин
Арендная плата в месяц 603 700 ₽ 21 000 ₽/м² в год С учётом НДС

Презентация по предложению

Собираете информацию? Получите подробную презентацию в удобном формате!

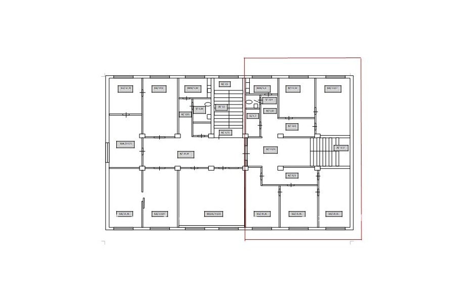
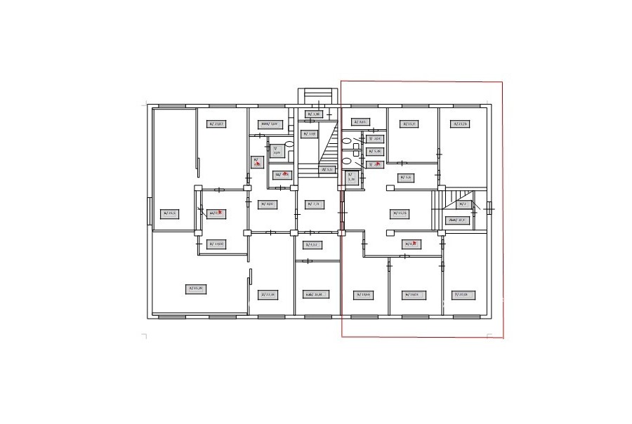
Площадь 345 м²
Состояние Готово к въезду
Планировка Смешанная
Этаж 1 - 2

Описание

Преимущества
  • Класс B
  • Пешком от метро
  • Кондиционирование и вентиляция
  • Свой паркинг
Предлагается в долгосрочную аренду офис класса B площадью 345 кв.м в бизнес-центре.

Москва, САО, улица Усиевича, 31А с2

Удобное расположение здания для всех видов транспорта:
- Автомобиль: близость транспортных магистралей, таких как Ленинградский проспект, Ленинградское шоссе, Волоколамское шоссе и других.
- Возможность аренды парковочных мест.
- Ближайшее метро: от метро "Сокол" всего 7 мин пешком

Офис класса B:
- Помещение готово к въезду
- Кондиционирование: центральное


Если предложение предварительно Вам подходит:

1. Мы отправим Вам подробную презентацию с планировкой и фотографиями в течение 10 минут после звонка, чтобы Вы могли поделиться информацией с руководством или с коллегами.
2. Задайте любые вопросы менеджеру по телефону, готовы обсуждать любые предложения по финансовым условиям договора аренды.
3. Оперативно организуем просмотр помещения, договоримся на любое удобное время, подготовим виртуальный тур.

Вы можете позвонить нам в любое время. Мы ответим на Ваши вопросы по будням до 19:00, а поздно вечером или в выходные сможем передать Ваш контакт нашему менеджеру.

Коммерческие условия

Арендная плата 603 750 ₽
Ставка арендной платы 21 000 ₽ м²/год
Эксплуатационные расходы Включены в ставку
Налоги С учётом НДС
Тип договора Прямая аренда
Срок договора от 11 месяцев
Размер платежей 1 месяц
Обеспечительный платеж 1 месяц
Статус Сдан

О бизнес-центре

Класс B
Этажность 2
Лифты Нет
Общая площадь 711 м²
Год постройки 1966
Паркинг Наземный
Вентиляция естественная
Кондиционирование центральное
Телекоммуникации Интернет/Телефония

Расположение

Подробная презентацию по предложению

Собираете информацию? Получите подробную презентацию в удобном формате, чтобы обсудить вариант с коллегами или переслать руководству!

Похожие предложения в других зданиях

ВОЗМОЖНО ОСВОБОЖДЕНИЕ ID: 971678 Рейтинг5.5 КлассB

Москва, Ленинградский проспект, 80 к32

Сокол → 789 м
~ 8 мин
Арендная плата в месяц 597 000 ₽ 18 000 ₽/м² в год С учётом НДС
Характеристики 398 м² 3 этаж Готово к въезду
Преимущества
  • Класс B
  • Пешком от метро
  • Кондиционирование и вентиляция

Предлагается в долгосрочную прямую аренду помещение под офис класса B площадью 398 кв. метров в бизнес-центре... подробнее

Презентация по предложению

Собираете информацию? Получите подробную презентацию в удобном формате!

БЕЗ КОМИССИИ ID: 246911 Рейтинг7.6 КлассB

Москва, Ленинградский проспект, 80 к17

Сокол → 498 м
~ 5 мин
Арендная плата в месяц 655 000 ₽ 20 000 ₽/м² в год С учётом НДС
Характеристики 393 м² 1 - 3 этаж Готово к въезду
Преимущества
  • Класс B
  • Пешком от метро
  • Кондиционирование и вентиляция
  • Свой паркинг

Сдается в прямую аренду офис класса B общей площадью 393 квадратных метров в бизнес-центре... подробнее

Презентация по предложению

Собираете информацию? Получите подробную презентацию в удобном формате!

БЕЗ КОМИССИИ ID: 301992 Рейтинг6.7 КлассB

Москва, улица Усиевича, 20 к1

Сокол → 668 м
~ 7 мин
Арендная плата в месяц 638 333 ₽ 20 000 ₽/м² в год С учётом НДС
Характеристики 383 м² 1 этаж Готово к въезду
Преимущества
  • Класс B
  • Пешком от метро
  • Кондиционирование и вентиляция
  • Свой паркинг

Сдается в долгосрочную прямую аренду офис класса B площадью 383 квадр. метров в историческом недавно отреконструированном бизнес-центре "Сокол Плаза"... подробнее

Презентация по предложению

Собираете информацию? Получите подробную презентацию в удобном формате!

БЕЗ КОМИССИИ ID: 271052 Рейтинг7.5 КлассB

Москва, Ленинградский проспект, 80 к5

Сокол → 842 м
~ 8 мин
Арендная плата в месяц 559 625 ₽ 18 500 ₽/м² в год С учётом НДС
Характеристики 363 м² 1 - 2 этаж Готово к въезду
Преимущества
  • Класс B
  • Пешком от метро
  • Кондиционирование и вентиляция
  • Свой паркинг
  • Несколько провайдеров связи

Предлагается в долгосрочную прямую аренду офисный блок класса B площадью 363 квадратных метров в историческом бизнес-центре "Дигалта"... подробнее

Презентация по предложению

Собираете информацию? Получите подробную презентацию в удобном формате!

БЕЗ КОМИССИИ ID: 1295465 Рейтинг7.5 КлассB

Москва, Ленинградский проспект, 80 к5

Сокол → 842 м
~ 8 мин
Арендная плата в месяц 543 333 ₽ 22 000 ₽/м² в год С учётом НДС
Характеристики 296 м² 4 этаж Готово к въезду
Преимущества
  • Класс B
  • Пешком от метро
  • Кондиционирование и вентиляция
  • Свой паркинг
  • Несколько провайдеров связи

Предлагаем в аренду офисный блок класса B площадью 296 кв.м в историческом бизнес-центре "Дигалта"... подробнее

Презентация по предложению

Собираете информацию? Получите подробную презентацию в удобном формате!

Посмотреть все похожие предложения
Отнеситесь рационально к процессу поиска нового офиса!

Просто ответьте на 3 вопроса, и наши специалисты сами предложат оптимальные варианты под ваш бюджет

.