8.2
Смотреть все фото
ВОЗМОЖНО ОСВОБОЖДЕНИЕ ID: 1232778 Рейтинг6.4 КлассB
Бизнес-центр «Варшавское 36»

Аренда офиса 858 м²

Москва, Варшавское шоссе, 36

Нагатинская → 417 м
~ 5 мин
Арендная плата в месяц по запросу потенциального арендатора Срок освобождение в течение 3 месяцев

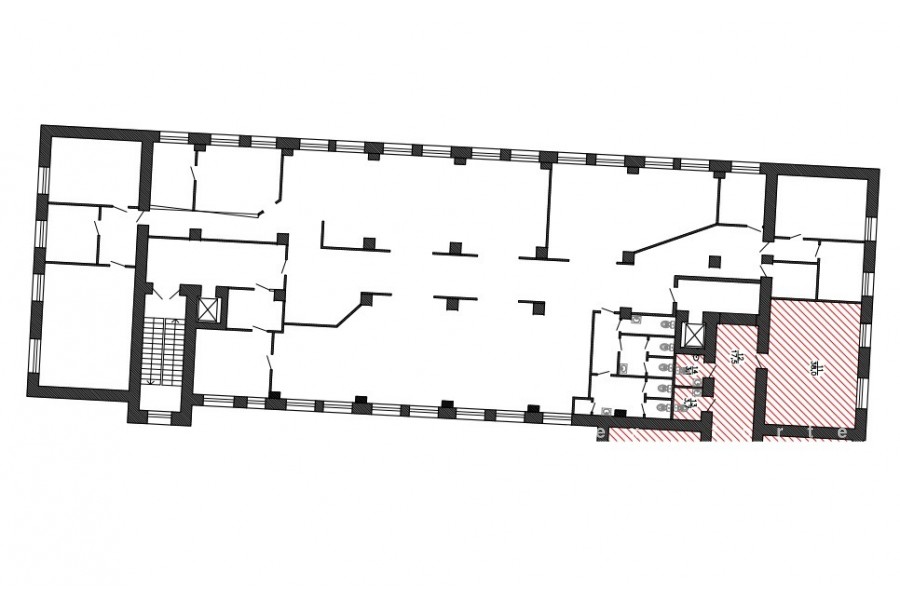
Информация по помещению

Ознакомьтесь с дополнительной информацией по помещению и коммерческим условиям!

Площадь 858 м²
Планировка Смешанная
Этаж 3 - 4

Описание

Преимущества
  • Класс B
  • Пешком от метро
  • Кондиционирование и вентиляция
  • Свой паркинг
  • Развитая инфраструктура

Коммерческие условия

Арендная плата по запросу
Ставка арендной платы по запросу
Эксплуатационные расходы Включены в ставку
Налоги С учётом НДС
Тип договора Прямая аренда
Срок договора от 11 месяцев
Размер платежей 1 месяц
Обеспечительный платеж 1 месяц
Статус Сдан

О бизнес-центре

Класс B
Этажность 5
Лифты Есть
Общая площадь 2 533 м²
Год постройки 1938
Паркинг Наземный
Вентиляция приточно-вытяжная
Кондиционирование возможность установки
Телекоммуникации Интернет/Телефония

Расположение

Информация по помещению

Получите дополнительную информацию по помещению и коммерческом условиям!

Похожие предложения в других зданиях

БЕЗ КОМИССИИ ID: 146339 Рейтинг4.9 КлассB

Москва, Варшавское шоссе, 32

Нагатинская → 201 м
~ 2 мин
Арендная плата в месяц 1 237 500 ₽ 15 000 ₽/м² в год С учётом НДС
Характеристики 990 м² 1 этаж Готово к въезду
Преимущества
  • Класс B
  • Пешком от метро
  • Кондиционирование и вентиляция
  • Свой паркинг
  • Развитая инфраструктура

Предлагаем в долгосрочную аренду помещение под офис класса B площадью 990 кв.м в бизнес-центре... подробнее

Презентация по предложению

Собираете информацию? Получите подробную презентацию в удобном формате!

БЕЗ КОМИССИИ ID: 248008 Рейтинг6.4 КлассB

Москва, Нагатинская улица, 1

Нагатинская → 136 м
~ 1 мин
Арендная плата в месяц 937 500 ₽ 15 000 ₽/м² в год С учётом НДС
Характеристики 750 м² 2 этаж Готово к въезду
Преимущества
  • Класс B
  • Пешком от метро
  • Кондиционирование и вентиляция
  • Свой паркинг
  • Развитая инфраструктура

Сдается в долгосрочную аренду помещение под офис класса B площадью 750 квадр. метров в бизнес-центре... подробнее

Презентация по предложению

Собираете информацию? Получите подробную презентацию в удобном формате!

БЕЗ КОМИССИИ ID: 290605 Рейтинг6.5 КлассB

Москва, Варшавское шоссе, 46

Нагатинская → 1.3 км
~ 13 мин
Арендная плата в месяц 1 145 667 ₽ 14 000 ₽/м² в год С учётом НДС
Характеристики 982 м² 6 этаж Готово к въезду
Преимущества
  • Класс B
  • Пешком от метро
  • Кондиционирование и вентиляция
  • Свой паркинг
  • Развитая инфраструктура

Сдается в долгосрочную аренду помещение под офис класса B общей площадью 982 кв.м в бизнес-центре... подробнее

Презентация по предложению

Собираете информацию? Получите подробную презентацию в удобном формате!

БЕЗ КОМИССИИ ID: 103122 Рейтинг5.9 КлассB

Москва, Электролитный проезд, 9 к1

Нагорная → 176 м
~ 2 мин
Арендная плата в месяц 1 085 000 ₽ 15 500 ₽/м² в год С учётом НДС
Характеристики 840 м² 4 этаж Готово к въезду
Преимущества
  • Класс B
  • Пешком от метро
  • Кондиционирование и вентиляция
  • Свой паркинг

Сдается в долгосрочную аренду помещение под офис класса B площадью 840 квадр. метров в бизнес-центре... подробнее

Презентация по предложению

Собираете информацию? Получите подробную презентацию в удобном формате!

БЕЗ КОМИССИИ ID: 196098 Рейтинг7.8 КлассB+

Москва, Варшавское шоссе, 35 с1

Верхние Котлы → 374 м
~ 6 мин
Арендная плата в месяц 942 000 ₽ 14 400 ₽/м² в год С учётом НДС
Характеристики 785 м² 2 этаж Готово к въезду
Преимущества
  • Класс B+
  • Пешком от метро
  • Кондиционирование и вентиляция
  • Свой паркинг
  • Развитая инфраструктура

Сдаем в прямую аренду офис класса B+ общей площадью 785 кв. метров в недавно отреконструированном бизнес-центре "Ривер Плаза"... подробнее

Презентация по предложению

Собираете информацию? Получите подробную презентацию в удобном формате!

Посмотреть все похожие предложения
Отнеситесь рационально к процессу поиска нового офиса!

Просто ответьте на 3 вопроса, и наши специалисты сами предложат оптимальные варианты под ваш бюджет

.