8.2

Виртуальный тур

Смотреть все фото
БЕЗ КОМИССИИ ID: 1232368 Рейтинг7.5 КлассB

Москва, Варшавское шоссе, 37А

Верхние Котлы → 715 м
~ 7 мин
Арендная плата в месяц 594 900 ₽ 17 200 ₽/м² в год С учётом НДС

Презентация по предложению

Собираете информацию? Получите подробную презентацию в удобном формате!

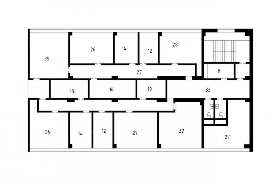
Площадь 416 м²
Состояние Готово к въезду
Планировка Кабинетная
Этаж 7

Описание

Преимущества
  • Класс B
  • Пешком от метро
  • Кондиционирование и вентиляция
  • Свой паркинг
  • Развитая инфраструктура
Сдаем в долгосрочную прямую аренду офисное помещение класса B площадью 416 квадратных метров в бизнес-центре.

Москва, ЮАО, Варшавское шоссе, 37А

Удобная локация здания:
- Автомобиль: близость транспортных магистралей, таких как Варшавское шоссе, Третье Транспортное Кольцо, Каширское шоссе, Севастопольский проспект и других.
- Возможность аренды парковочных мест.
- Ближайшее метро: от метро "Верхние Котлы" всего 5 мин пешком

Офис класса B:
- Помещение с отделкой, готово к въезду
- Вентиляция: Приточно-вытяжная вентиляция
- Кондиционирование: сплит-системы


Что еще можно узнать о предложении:

1. Мы отправим Вам подробную презентацию с планировкой и фотографиями в течение 10 минут после звонка, чтобы Вы могли поделиться информацией с руководством или с коллегами.
2. Задайте любые вопросы менеджеру по телефону, готовы обсуждать любые предложения по финансовым условиям договора аренды.
3.

Вы можете позвонить нам в любое время. Мы ответим на Ваши вопросы по будням до 19:00, а поздно вечером или в выходные сможем передать Ваш контакт нашему менеджеру.

Коммерческие условия

Арендная плата 540 800 ₽
Ставка арендной платы 17 200 ₽ м²/год
Эксплуатационные расходы Включены в ставку
Налоги С учётом НДС
Тип договора Прямая аренда
Срок договора от 11 месяцев
Размер платежей 1 месяц
Обеспечительный платеж 1 месяц
Статус Сдан

О бизнес-центре

Класс B
Этажность 12
Лифты Есть
Общая площадь 40 204 м²
Год постройки 1980
Паркинг Наземный
Вентиляция приточно-вытяжная
Кондиционирование сплит-системы
Телекоммуникации Интернет/Телефония

Расположение

Подробная презентацию по предложению

Собираете информацию? Получите подробную презентацию в удобном формате, чтобы обсудить вариант с коллегами или переслать руководству!

Похожие предложения в других зданиях

БЕЗ КОМИССИИ ID: 1190177 Рейтинг7.6 КлассB+

Москва, Новоданиловская набережная, 4А

Тульская → 1.02 км
~ 10 мин
Арендная плата в месяц 630 000 ₽ 18 000 ₽/м² в год С учётом НДС
Характеристики 420 м² 6 этаж Готово к въезду
Преимущества
  • Класс B+
  • Пешком от метро
  • Кондиционирование и вентиляция
  • Свой паркинг
  • Развитая инфраструктура

Сдаем в прямую аренду офис класса B+ площадью 420 квадр. метров в бизнес-центре "Новоданиловский дом"... подробнее

Презентация по предложению

Собираете информацию? Получите подробную презентацию в удобном формате!

БЕЗ КОМИССИИ ID: 1139837 Рейтинг7.6 КлассB+

Москва, Новоданиловская набережная, 4А

Тульская → 1.02 км
~ 10 мин
Арендная плата в месяц 630 000 ₽ 18 000 ₽/м² в год С учётом НДС
Характеристики 420 м² 6 этаж Готово к въезду
Преимущества
  • Класс B+
  • Пешком от метро
  • Кондиционирование и вентиляция
  • Свой паркинг
  • Развитая инфраструктура

Сдается в прямую аренду помещение под офис класса B+ площадью 420 квадратных метров в бизнес-центре "Новоданиловский дом"... подробнее

Презентация по предложению

Собираете информацию? Получите подробную презентацию в удобном формате!

БЕЗ КОМИССИИ ID: 1221339 Рейтинг7.6 КлассB+

Москва, Новоданиловская набережная, 4А

Тульская → 1.02 км
~ 10 мин
Арендная плата в месяц 585 000 ₽ 18 000 ₽/м² в год С учётом НДС
Характеристики 390 м² 6 этаж Готово к въезду
Преимущества
  • Класс B+
  • Пешком от метро
  • Кондиционирование и вентиляция
  • Свой паркинг
  • Развитая инфраструктура

Предлагается в долгосрочную аренду офисное помещение класса B+ общей площадью 390 квадратных метров в бизнес-центре "Новоданиловский дом"... подробнее

Презентация по предложению

Собираете информацию? Получите подробную презентацию в удобном формате!

БЕЗ КОМИССИИ ID: 127359 Рейтинг5.0 КлассB

Москва, Варшавское шоссе, 42

Нагорная → 1.15 км
~ 11 мин
Арендная плата в месяц 470 000 ₽ 15 000 ₽/м² в год С учётом НДС
Характеристики 376 м² 1 этаж Готово к въезду
Преимущества
  • Класс B
  • Пешком от метро
  • Кондиционирование и вентиляция
  • Свой паркинг
  • Несколько провайдеров связи
  • Развитая инфраструктура

Сдается в прямую аренду офисное помещение класса B общей площадью 376 квадр. метров в бизнес-центре... подробнее

Презентация по предложению

Собираете информацию? Получите подробную презентацию в удобном формате!

БЕЗ КОМИССИИ ID: 997652 Рейтинг5.9 КлассB+

Москва, Большая Тульская улица, 10 с1

Тульская → 747 м
~ 7 мин
Арендная плата в месяц 630 000 ₽ 18 000 ₽/м² в год С учётом НДС
Характеристики 420 м² 1 этаж Готово к въезду
Преимущества
  • Класс B+
  • Пешком от метро
  • Кондиционирование и вентиляция
  • Свой паркинг
  • Несколько провайдеров связи

Собственник сдает в долгосрочную прямую аренду офисный блок класса B+ площадью 420 квадратных метров в бизнес-центре "Серпуховский двор"... подробнее

Презентация по предложению

Собираете информацию? Получите подробную презентацию в удобном формате!

Посмотреть все похожие предложения
Отнеситесь рационально к процессу поиска нового офиса!

Просто ответьте на 3 вопроса, и наши специалисты сами предложат оптимальные варианты под ваш бюджет