8.2
Смотреть все фото
БЕЗ КОМИССИИ ID: 271252 Рейтинг7.7 КлассB+
Бизнес-центр «Варшавское 9 с1»

Аренда офиса 2500 м²

Москва, Варшавское шоссе, 9 с1

Тульская → 1.25 км
~ 13 мин
Арендная плата в месяц 5 833 300 ₽ 28 000 ₽/м² в год С учётом НДС

Презентация по предложению

Собираете информацию? Получите подробную презентацию в удобном формате!

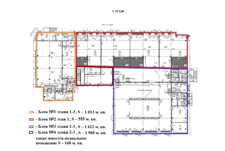
Площадь 2 500 м²
Состояние Готово к въезду
Планировка Открытая
Этаж 1 - 3

Описание

Преимущества
  • Класс B+
  • Пешком от метро
  • Кондиционирование и вентиляция
Предлагается в аренду помещение под офис класса B+ общей площадью 2500 кв.м в бизнес-центре.

Москва, ЮАО, Варшавское шоссе, 9 с1

Удобная локация здания:
- Автомобиль: близость транспортных магистралей, таких как Варшавское шоссе, Севастопольский проспект, Третье Транспортное Кольцо и других.
- Ближайшее метро: от метро "Тульская" всего 18 мин пешком

Офис класса B+:
- Помещение с отделкой, готово к въезду
- Вентиляция: Приточно-вытяжная вентиляция
- Кондиционирование: центральное


Что еще можно узнать о предложении:

1. Мы отправим Вам подробную презентацию с планировкой и фотографиями в течение 10 минут после звонка, чтобы Вы могли поделиться информацией с руководством или с коллегами.
2. Мы готовы ответить на любые Ваши вопросы о помещении и коммерческих условиях аренды.
3. Оперативно организуем просмотр помещения с менеджерами на объекте или подготовим виртуальный тур.

Звоните нам в любое время. По будням мы сможем ответить на Ваши вопросы до 19:00. В выходные или вечернее время мы передадим Ваш контакт нашему менеджеру по аренде.

Коммерческие условия

Арендная плата 5 833 330 ₽
Ставка арендной платы 28 000 ₽ м²/год
Эксплуатационные расходы Включены в ставку
Налоги С учётом НДС
Тип договора Субаренда
Срок договора Долгосрочный
Размер платежей 1 месяц
Обеспечительный платеж 1 месяц
Статус Сдан

О бизнес-центре

Класс B+
Этажность 3
Лифты Нет
Общая площадь 4 100 м²
Паркинг Наземный
Вентиляция приточно-вытяжная
Кондиционирование центральное
Телекоммуникации Интернет/Телефония

Расположение

Подробная презентацию по предложению

Собираете информацию? Получите подробную презентацию в удобном формате, чтобы обсудить вариант с коллегами или переслать руководству!

Похожие предложения в других зданиях

БЕЗ КОМИССИИ ID: 1325560 Рейтинг8.3 КлассB+

Москва, Варшавское шоссе, 9

Тульская → 959 м
~ 10 мин
Арендная плата в месяц 7 618 543 ₽ 34 700 ₽/м² в год С учётом НДС
Характеристики 2 632 м² 3 - 4 этаж Готово к въезду
Преимущества
  • Класс B+
  • Пешком от метро
  • Кондиционирование и вентиляция
  • Свой паркинг
  • Развитая инфраструктура

Предлагается в долгосрочную аренду офис класса B+ площадью 2632 кв.м в историческом недавно отреконструированном бизнес-центре "Даниловская Мануфактура"... подробнее

Презентация по предложению

Собираете информацию? Получите подробную презентацию в удобном формате!

БЕЗ КОМИССИИ ID: 1327316 Рейтинг8.3 КлассB+

Москва, Варшавское шоссе, 9

Тульская → 959 м
~ 10 мин
Арендная плата в месяц 6 775 148 ₽ 36 100 ₽/м² в год С учётом НДС
Характеристики 2 254 м² 1 - 4 этаж Готово к въезду
Преимущества
  • Класс B+
  • Пешком от метро
  • Кондиционирование и вентиляция
  • Свой паркинг
  • Развитая инфраструктура

Предлагаем в прямую аренду офисное помещение класса B+ площадью 2254 квадратных метров в историческом недавно отреконструированном бизнес-центре "Даниловская Мануфактура"... подробнее

Презентация по предложению

Собираете информацию? Получите подробную презентацию в удобном формате!

БЕЗ КОМИССИИ ID: 1327048 Рейтинг8.3 КлассB+

Москва, Варшавское шоссе, 9

Тульская → 959 м
~ 10 мин
Арендная плата в месяц 6 772 279 ₽ 35 300 ₽/м² в год С учётом НДС
Характеристики 2 299 м² 2 - 4 этаж Готово к въезду
Преимущества
  • Класс B+
  • Пешком от метро
  • Кондиционирование и вентиляция
  • Свой паркинг
  • Развитая инфраструктура

Предлагается в долгосрочную аренду офис класса B+ площадью 2299 квадратных метров в историческом недавно отреконструированном бизнес-центре "Даниловская Мануфактура"... подробнее

Презентация по предложению

Собираете информацию? Получите подробную презентацию в удобном формате!

БЕЗ КОМИССИИ ID: 1233784 Рейтинг6.9 КлассB+

Москва, Загородное шоссе, 1 к1

Тульская → 1.3 км
~ 13 мин
Арендная плата в месяц 5 180 000 ₽ 24 000 ₽/м² в год С учётом НДС
Характеристики 2 590 м² 2 - 6 этаж Готово к въезду
Преимущества
  • Класс B+
  • Пешком от метро
  • Кондиционирование и вентиляция
  • Свой паркинг
  • Несколько провайдеров связи

Сдаем в прямую аренду офис класса B+ общей площадью 2590 кв. метров в бизнес-центре "Загородный"... подробнее

Презентация по предложению

Собираете информацию? Получите подробную презентацию в удобном формате!

БЕЗ КОМИССИИ ID: 1295103 Рейтинг8.6 КлассА

Москва, Варшавское шоссе, 25А с6

Верхние Котлы → 651 м
~ 8 мин
Арендная плата в месяц 5 687 733 ₽ 30 800 ₽/м² в год С учётом НДС
Характеристики 2 216 м² 1 этаж Готово к въезду
Преимущества
  • Класс А
  • Пешком от метро
  • Кондиционирование и вентиляция
  • Свой паркинг
  • Несколько провайдеров связи

Предлагаем в прямую аренду помещение под офис класса А общей площадью 2216 кв. метров в недавно отреконструированном бизнес-центре "Чайка Плаза 10"... подробнее

Презентация по предложению

Собираете информацию? Получите подробную презентацию в удобном формате!

Посмотреть все похожие предложения
Отнеситесь рационально к процессу поиска нового офиса!

Просто ответьте на 3 вопроса, и наши специалисты сами предложат оптимальные варианты под ваш бюджет

.