8.2
Смотреть все фото
БЕЗ КОМИССИИ ID: 1380895 Рейтинг6.2 КлассB
Бизнес-центр «Вавилон»

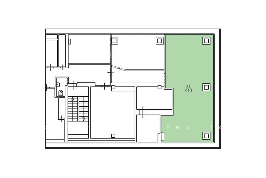
Аренда офиса 83 м²

Москва, улица Вавилова, 69/75

Профсоюзная → 1.23 км
~ 12 мин
Арендная плата в месяц 249 000 ₽ 36 000 ₽/м² в год С учётом НДС

Презентация по предложению

Собираете информацию? Получите подробную презентацию в удобном формате!

Площадь 83 м²
Состояние Готово к въезду
Планировка Открытая
Этаж 11

Описание

Преимущества
  • Класс B
  • Пешком от метро
  • Кондиционирование и вентиляция
  • Свой паркинг
  • Несколько провайдеров связи
  • Развитая инфраструктура
Сдается в долгосрочную прямую аренду офисный блок класса B общей площадью 83 кв. метров в бизнес-центре "Вавилон".

75

Удобная локация здания:
- Автомобиль: близость транспортных магистралей, таких как Проспект Вернадского, Ленинский проспект, Профсоюзная улица и других.
- Возможность аренды парковочных мест.
- Ближайшее метро: от метро "Профсоюзная" всего 12 мин пешком

Офис класса B:
- Офис с отделкой, полностью готов к аренде
- Вентиляция: Приточно-вытяжная вентиляция
- Кондиционирование: сплит-системы


Если данное предложение подходит Вашему запросу:

1. Получите презентацию в течение 10 минут в Whatsapp или на почту с фотографиями и планировкой, чтобы обсудить данный вариант с коллегами или переслать руководству. Для этого позвоните по телефону, указанному в объявлении.
2. Мы готовы ответить на любые Ваши вопросы о помещении и коммерческих условиях аренды.
3. Оперативно организуем просмотр помещения, договоримся на любое удобное время, подготовим виртуальный тур.

Звоните нам в любое время. По будням мы сможем ответить на Ваши вопросы до 19:00. В выходные или вечернее время мы передадим Ваш контакт нашему менеджеру по аренде.

Коммерческие условия

Арендная плата 249 000 ₽
Ставка арендной платы 36 000 ₽ м²/год
Эксплуатационные расходы Включены в ставку
Налоги С учётом НДС
Тип договора Прямая аренда
Срок договора от 11 месяцев
Размер платежей 1 месяц
Обеспечительный платеж 1 месяц
Статус Свободен

О бизнес-центре

Класс B
Этажность 11
Лифты Есть
Общая площадь 14 500 м²
Год постройки 1995
Паркинг Наземный
Вентиляция приточно-вытяжная
Кондиционирование сплит-системы
Телекоммуникации Интернет/Телефония

Расположение

Подробная презентацию по предложению

Собираете информацию? Получите подробную презентацию в удобном формате, чтобы обсудить вариант с коллегами или переслать руководству!

Похожие предложения в других зданиях

БЕЗ КОМИССИИ ID: 1379164 Рейтинг8.6 КлассB+

Москва, улица Кржижановского, 14 к3

Профсоюзная → 252 м
~ 3 мин
Арендная плата в месяц 240 000 ₽ 40 000 ₽/м² в год С учётом НДС
Характеристики 72 м² 2 этаж Готово к въезду
Преимущества
  • Класс B+
  • Пешком от метро
  • Кондиционирование и вентиляция
  • Свой паркинг
  • Развитая инфраструктура

Предлагается в долгосрочную прямую аренду офисное помещение класса B+ общей площадью 72 кв.м в бизнес-центре "Радеж"... подробнее

Презентация по предложению

Собираете информацию? Получите подробную презентацию в удобном формате!

БЕЗ КОМИССИИ ID: 1376650 Рейтинг9.0 КлассА

Москва, улица Обручева, 23к2 с3

Калужская → 819 м
~ 8 мин
Арендная плата в месяц 306 900 ₽ 37 200 ₽/м² в год С учётом НДС
Характеристики 99 м² 4 этаж Под отделку
Преимущества
  • Класс А
  • Пешком от метро
  • Кондиционирование и вентиляция
  • Свой паркинг

Предлагается в долгосрочную аренду офис класса А общей площадью 99 кв. метров в бизнес-центре "Geolog"... подробнее

Презентация по предложению

Собираете информацию? Получите подробную презентацию в удобном формате!

БЕЗ КОМИССИИ ID: 1376645 Рейтинг9.0 КлассА

Москва, улица Обручева, 23к2 с3

Калужская → 819 м
~ 8 мин
Арендная плата в месяц 306 900 ₽ 37 200 ₽/м² в год С учётом НДС
Характеристики 99 м² 5 этаж Под отделку
Преимущества
  • Класс А
  • Пешком от метро
  • Кондиционирование и вентиляция
  • Свой паркинг

Предлагается в долгосрочную аренду офисное помещение класса А площадью 99 квадратных метров в бизнес-центре "Geolog"... подробнее

Презентация по предложению

Собираете информацию? Получите подробную презентацию в удобном формате!

БЕЗ КОМИССИИ ID: 1329683 Рейтинг8.2 КлассB+

Москва, Научный проезд, 17

Калужская → 1.34 км
~ 13 мин
Арендная плата в месяц 280 000 ₽ 33 600 ₽/м² в год Упрощённая система налогообложения
Характеристики 100 м² 14 этаж Готово к въезду
Преимущества
  • Класс B+
  • Пешком от метро
  • Кондиционирование и вентиляция
  • Свой паркинг

Сдается в прямую аренду офисный блок класса B+ общей площадью 100 квадратных метров в бизнес-центре "9 Акров Фаза II"... подробнее

Презентация по предложению

Собираете информацию? Получите подробную презентацию в удобном формате!

БЕЗ КОМИССИИ ID: 1375352 Рейтинг8.2 КлассB+

Москва, Научный проезд, 17

Калужская → 1.34 км
~ 13 мин
Арендная плата в месяц 255 000 ₽ 34 000 ₽/м² в год Упрощённая система налогообложения
Характеристики 90 м² 2 этаж Готово к въезду
Преимущества
  • Класс B+
  • Пешком от метро
  • Кондиционирование и вентиляция
  • Свой паркинг

Сдается в прямую аренду офисный блок класса B+ общей площадью 90 квадр. метров в бизнес-центре "9 Акров Фаза II"... подробнее

Презентация по предложению

Собираете информацию? Получите подробную презентацию в удобном формате!

Посмотреть все похожие предложения
Отнеситесь рационально к процессу поиска нового офиса!

Просто ответьте на 3 вопроса, и наши специалисты сами предложат оптимальные варианты под ваш бюджет

.