8.2
Смотреть все фото
БЕЗ КОМИССИИ ID: 1281511 Рейтинг5.4 КлассB
Бизнес-центр «Вековая 21»

Аренда офиса 1118 м²

Москва, Вековая улица, 21

Римская → 543 м
~ 5 мин
Арендная плата в месяц 1 793 500 ₽ 19 200 ₽/м² в год С учётом НДС

Презентация по предложению

Собираете информацию? Получите подробную презентацию в удобном формате!

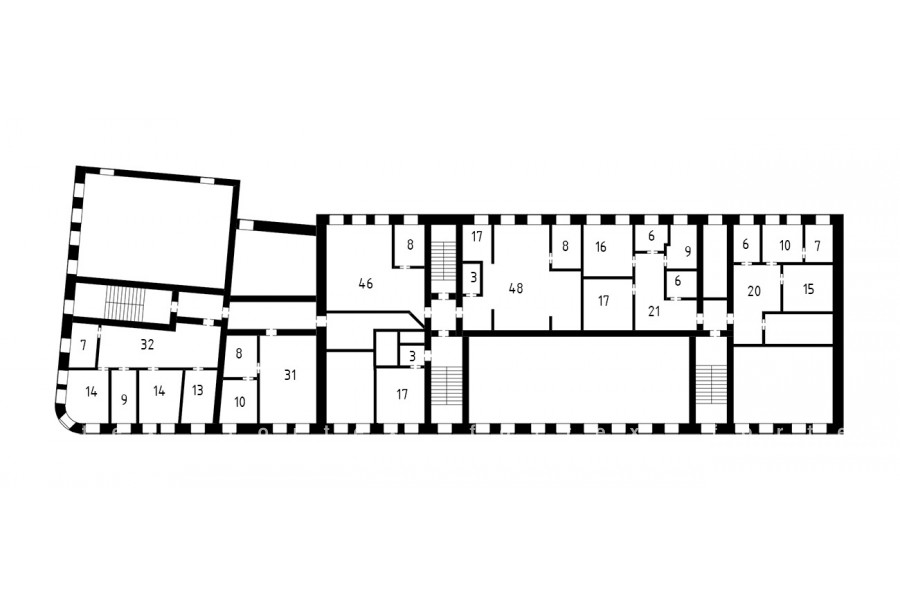
Площадь 1 118 м²
Состояние Готово к въезду
Планировка Смешанная
Этаж 5

Описание

Преимущества
  • Класс B
  • Пешком от метро
  • Кондиционирование и вентиляция
  • Развитая инфраструктура
Предлагается в долгосрочную аренду помещение под офис класса B площадью 1118 квадр. метров в бизнес-центре.

Москва, ЦАО, Вековая улица, 21

Удобное расположение здания для всех видов транспорта:
- Автомобиль: близость транспортных магистралей, таких как Шоссе Энтузиастов и других.
- Ближайшее метро: от метро "Римская" всего 5 мин пешком

Офис класса B:
- Помещение с отделкой, готово к въезду
- Кондиционирование: сплит-системы


Что еще можно узнать о предложении:

1. Мы подготовили презентацию с информацией о помещении, фотографиями и планировкой, чтобы Вы могли поделиться ей с коллегами или руководством. Попросите об этом нашего менеджера по телефону в объявлении.
2. Задайте любые вопросы менеджеру по телефону, готовы обсуждать любые предложения по финансовым условиям договора аренды.
3. Проводим показы ежедневно, договоримся на удобное для Вас время. Можем организовать виртуальный тур по офисному блоку.

Вы можете позвонить нам в любое время. Мы ответим на Ваши вопросы по будням до 19:00, а поздно вечером или в выходные сможем передать Ваш контакт нашему менеджеру.

Коммерческие условия

Арендная плата 1 630 420 ₽
Ставка арендной платы 19 200 ₽ м²/год
Эксплуатационные расходы Включены в ставку
Налоги С учётом НДС
Тип договора Прямая аренда
Срок договора от 11 месяцев
Размер платежей 1 месяц
Обеспечительный платеж 1 месяц
Статус Сдан

О бизнес-центре

Класс B
Этажность 5
Лифты Есть
Общая площадь 0 м²
Паркинг Стихийный
Вентиляция естественная
Кондиционирование сплит-системы
Телекоммуникации Интернет/Телефония

Расположение

Подробная презентацию по предложению

Собираете информацию? Получите подробную презентацию в удобном формате, чтобы обсудить вариант с коллегами или переслать руководству!

Похожие предложения в других зданиях

БЕЗ КОМИССИИ ID: 1246253 Рейтинг7.2 КлассB+

Москва, Большая Андроньевская улица, 17А

Площадь Ильича → 891 м
~ 9 мин
Арендная плата в месяц 2 187 625 ₽ 20 400 ₽/м² в год С учётом НДС
Характеристики 1 290 м² 1 - 4 этаж Готово к въезду
Преимущества
  • Класс B+
  • Пешком от метро
  • Кондиционирование и вентиляция
  • Свой паркинг

Предлагаем в долгосрочную прямую аренду офисный блок класса B+ общей площадью 1290 кв. метров в бизнес-центре... подробнее

>

Виртуальный тур

Презентация по предложению

Собираете информацию? Получите подробную презентацию в удобном формате!

БЕЗ КОМИССИИ ID: 742560 Рейтинг6.8 КлассB

Москва, улица Сергия Радонежского, 15-17 с2

Римская → 437 м
~ 4 мин
Арендная плата в месяц 1 500 000 ₽ 18 000 ₽/м² в год С учётом НДС
Характеристики 1 000 м² 3 этаж Под отделку
Преимущества
  • Класс B
  • Пешком от метро
  • Кондиционирование и вентиляция

Собственник сдает в долгосрочную аренду офисный блок класса B площадью 1000 квадр. метров в бизнес-центре... подробнее

Презентация по предложению

Собираете информацию? Получите подробную презентацию в удобном формате!

БЕЗ КОМИССИИ ID: 182605 Рейтинг8.0 КлассB

Москва, Новорогожская улица, 11

Площадь Ильича → 580 м
~ 6 мин
Арендная плата в месяц 1 875 000 ₽ 18 000 ₽/м² в год С учётом НДС
Характеристики 1 250 м² 1 - 4 этаж Готово к въезду
Преимущества
  • Класс B
  • Пешком от метро
  • Кондиционирование и вентиляция
  • Свой паркинг

Сдаем в долгосрочную аренду офисное помещение класса B площадью 1250 квадратных метров в бизнес-центре... подробнее

Презентация по предложению

Собираете информацию? Получите подробную презентацию в удобном формате!

ВОЗМОЖНО ОСВОБОЖДЕНИЕ ID: 288261 Рейтинг7.8 КлассB+

Москва, улица Александра Солженицына, 29/18

Таганская → 998 м
~ 10 мин
Арендная плата в месяц 1 978 167 ₽ 22 000 ₽/м² в год С учётом НДС
Характеристики 1 079 м² 2 - 3 этаж Готово к въезду
Преимущества
  • Класс B+
  • Пешком от метро
  • Кондиционирование и вентиляция
  • Свой паркинг

Сдается в долгосрочную аренду помещение под офис класса B+ общей площадью 1079 кв. метров в бизнес-центре... подробнее

Презентация по предложению

Собираете информацию? Получите подробную презентацию в удобном формате!

БЕЗ КОМИССИИ ID: 118580 Рейтинг6.9 КлассB

Москва, улица Александра Солженицына, 8 с1

Марксистская → 440 м
~ 4 мин
Арендная плата в месяц 1 897 500 ₽ 22 000 ₽/м² в год С учётом НДС
Характеристики 1 035 м² 1 - 3 этаж Готово к въезду
Преимущества
  • Класс B
  • Пешком от метро
  • Кондиционирование и вентиляция

Сдается в долгосрочную прямую аренду офис класса B общей площадью 1035 квадратных метров в историческом бизнес-центре... подробнее

Презентация по предложению

Собираете информацию? Получите подробную презентацию в удобном формате!

Посмотреть все похожие предложения
Отнеситесь рационально к процессу поиска нового офиса!

Просто ответьте на 3 вопроса, и наши специалисты сами предложат оптимальные варианты под ваш бюджет

.