8.2

Виртуальный тур

Смотреть все фото
БЕЗ КОМИССИИ ID: 1304522 Рейтинг8.2 КлассB
Бизнес-центр «Венский дом»

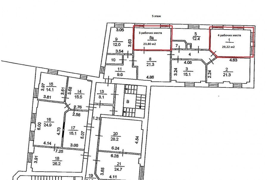
Аренда офиса 149 м²

Москва, улица Петровка, 27

Пушкинская → 424 м
~ 4 мин
Арендная плата в месяц 787 800 ₽ 63 400 ₽/м² в год С учётом НДС

Презентация по предложению

Собираете информацию? Получите подробную презентацию в удобном формате!

Площадь 149 м²
Состояние Готово к въезду
Планировка Кабинетная
Этаж 5

Описание

Преимущества
  • Класс B
  • Пешком от метро
  • Кондиционирование и вентиляция
  • Свой паркинг
  • Несколько провайдеров связи
  • Развитая инфраструктура
Предлагается в аренду помещение под офис класса B общей площадью 149 кв. метров в историческом недавно отреконструированном бизнес-центре "Венский дом".

Москва, ЦАО, улица Петровка, 27

Удобное расположение в пределах Садового кольца:
- Возможность аренды парковочных мест.
- Ближайшее метро: от метро "Пушкинская" всего 5 мин пешком

Офис класса B:
- Помещение готово к въезду
- Вентиляция: Приточно-вытяжная вентиляция
- Кондиционирование: сплит-системы
- Круглосуточная охрана и видеонаблюдение
- Развитая инфраструктура внутри здания


Если данное предложение подходит Вашему запросу:

1. Мы отправим Вам подробную презентацию с планировкой и фотографиями в течение 10 минут после звонка, чтобы Вы могли поделиться информацией с руководством или с коллегами.
2. Задайте любые вопросы менеджеру по телефону, готовы обсуждать любые предложения по финансовым условиям договора аренды.
3.

Звоните нам в любое время. По будням мы сможем ответить на Ваши вопросы до 19:00. В выходные или вечернее время мы передадим Ваш контакт нашему менеджеру по аренде.

Коммерческие условия

Арендная плата 750 300 ₽
Ставка арендной платы 63 400 ₽ м²/год
Эксплуатационные расходы Включены в ставку
Налоги С учётом НДС
Тип договора Субаренда
Срок договора от 11 месяцев
Размер платежей 1 месяц
Обеспечительный платеж 2 месяц
Статус Сдан

О бизнес-центре

Класс B
Этажность 5
Лифты Есть
Общая площадь 9 587 м²
Год постройки 1886
Паркинг Наземный
Вентиляция приточно-вытяжная
Кондиционирование сплит-системы
Телекоммуникации Интернет/Телефония

Расположение

Подробная презентацию по предложению

Собираете информацию? Получите подробную презентацию в удобном формате, чтобы обсудить вариант с коллегами или переслать руководству!

Похожие предложения в других зданиях

БЕЗ КОМИССИИ ID: 1370904 Рейтинг6.4 КлассB

Москва, Петровский переулок, 5 с1

Пушкинская → 479 м
~ 5 мин
Арендная плата в месяц 850 000 ₽ 63 800 ₽/м² в год Упрощённая система налогообложения
Характеристики 160 м² 1 этаж Готово к въезду
Преимущества
  • Класс B
  • Пешком от метро

Сдается в долгосрочную аренду офис класса B площадью 160 кв. метров в историческом жилом комплексе "Петровский дворик"... подробнее

>

Виртуальный тур

Презентация по предложению

Собираете информацию? Получите подробную презентацию в удобном формате!

БЕЗ КОМИССИИ ID: 1373537 Рейтинг8.3 КлассB

Москва, 1-й Колобовский переулок, 17 с1

Трубная → 398 м
~ 4 мин
Арендная плата в месяц 834 167 ₽ 65 000 ₽/м² в год С учётом НДС
Характеристики 154 м² 1 этаж Готово к въезду
Преимущества
  • Класс B
  • Пешком от метро
  • Кондиционирование и вентиляция
  • Свой паркинг

Предлагаем в долгосрочную прямую аренду офисное помещение класса B площадью 154 кв. метров в недавно отреконструированном бизнес-центре... подробнее

Презентация по предложению

Собираете информацию? Получите подробную презентацию в удобном формате!

БЕЗ КОМИССИИ ID: 1373539 Рейтинг8.3 КлассB

Москва, 1-й Колобовский переулок, 17 с1

Трубная → 398 м
~ 4 мин
Арендная плата в месяц 824 250 ₽ 63 000 ₽/м² в год Упрощённая система налогообложения
Характеристики 157 м² 2 этаж Готово к въезду
Преимущества
  • Класс B
  • Пешком от метро
  • Кондиционирование и вентиляция
  • Свой паркинг

Сдается в долгосрочную аренду офисное помещение класса B площадью 157 кв.м в недавно отреконструированном бизнес-центре... подробнее

Презентация по предложению

Собираете информацию? Получите подробную презентацию в удобном формате!

БЕЗ КОМИССИИ ID: 1321568 Рейтинг8.5 КлассА

Москва, Нижний Кисельный переулок, 4

Трубная → 443 м
~ 4 мин
Арендная плата в месяц 650 008 ₽ 55 700 ₽/м² в год Упрощённая система налогообложения
Характеристики 140 м² 1 этаж Готово к въезду
Преимущества
  • Класс А
  • Пешком от метро
  • Кондиционирование и вентиляция
  • Свой паркинг

Предлагаем в долгосрочную прямую аренду помещение под офис класса А общей площадью 140 кв.м в бизнес-центре... подробнее

Презентация по предложению

Собираете информацию? Получите подробную презентацию в удобном формате!

БЕЗ КОМИССИИ ID: 1250969 Рейтинг7.8 КлассB

Москва, Цветной бульвар, 25 с5

Цветной бульвар → 268 м
~ 3 мин
Арендная плата в месяц 849 016 ₽ 60 600 ₽/м² в год С учётом НДС
Характеристики 168 м² 4 этаж Готово к въезду
Преимущества
  • Класс B
  • Пешком от метро
  • Кондиционирование и вентиляция
  • Свой паркинг

Сдаем в прямую аренду офис класса B общей площадью 168 квадратных метров в бизнес-центре "Сады Этрета"... подробнее

>

Виртуальный тур

Презентация по предложению

Собираете информацию? Получите подробную презентацию в удобном формате!

Посмотреть все похожие предложения
Отнеситесь рационально к процессу поиска нового офиса!

Просто ответьте на 3 вопроса, и наши специалисты сами предложат оптимальные варианты под ваш бюджет

.