8.2
Смотреть все фото
БЕЗ КОМИССИИ ID: 212528 Рейтинг7.4 КлассB+

Москва, Верейская улица, 29 с154

Давыдково → 1.35 км
~ 14 мин
Арендная плата в месяц 716 200 ₽ 15 000 ₽/м² в год С учётом НДС

Презентация по предложению

Собираете информацию? Получите подробную презентацию в удобном формате!

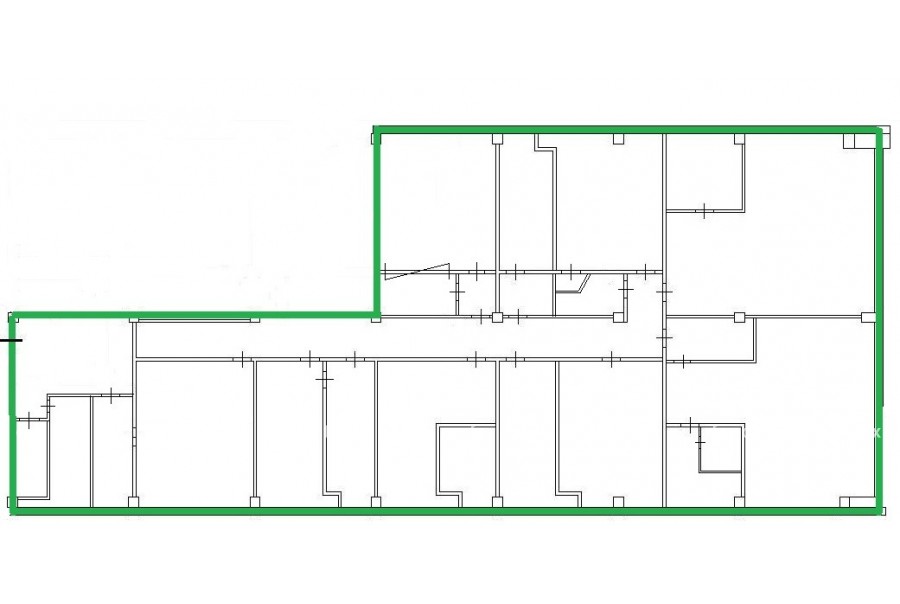
Площадь 573 м²
Состояние Готово к въезду
Планировка Кабинетная
Этаж 3

Описание

Преимущества
  • Класс B+
  • Пешком от метро
  • Кондиционирование и вентиляция
  • Свой паркинг
  • Развитая инфраструктура
Предлагается в прямую аренду офисный блок класса B+ общей площадью 573 квадр. метров в бизнес-центре "Верейская Плаза I".

Москва, ЗАО, Верейская улица, 29 с154

Удобная локация здания:
- Автомобиль: близость транспортных магистралей, таких как Кутузовский проспект, Можайское шоссе, Рублевское шоссе и других.
- Возможность аренды парковочных мест.
- Ближайшее метро: от метро "Давыдково" всего 15 мин пешком

Офис класса B+:
- Помещение с отделкой, готово к въезду
- Вентиляция: Приточно-вытяжная вентиляция
- Кондиционирование: центральное
- Презентабельный центральный ресепшн
- Круглосуточная охрана и видеонаблюдение
- Развитая инфраструктура внутри здания


Если данное предложение подходит Вашему запросу:

1. Мы подготовили презентацию с информацией о помещении, фотографиями и планировкой, чтобы Вы могли поделиться ей с коллегами или руководством. Попросите об этом нашего менеджера по телефону в объявлении.
2. Ответим на любые Ваши вопросы, готовы обсуждать любые предложения по коммерческим условиям аренды помещения.
3. Оперативно организуем просмотр помещения с менеджерами на объекте или подготовим виртуальный тур.

Вы можете позвонить нам в любое время. Мы ответим на Ваши вопросы по будням до 19:00, а поздно вечером или в выходные зафиксируем Ваш контакт и перезвоним в рабочее время.

Коммерческие условия

Арендная плата 716 250 ₽
Ставка арендной платы 15 000 ₽ м²/год
Эксплуатационные расходы Включены в ставку
Налоги С учётом НДС
Тип договора Прямая аренда
Срок договора от 11 месяцев
Размер платежей 1 месяц
Обеспечительный платеж 1 месяц
Статус Сдан

О бизнес-центре

Класс B+
Этажность 6
Лифты Есть
Общая площадь 25 000 м²
Год постройки 2003
Паркинг Наземный
Вентиляция приточно-вытяжная
Кондиционирование центральное
Телекоммуникации Интернет/Телефония

Расположение

Подробная презентацию по предложению

Собираете информацию? Получите подробную презентацию в удобном формате, чтобы обсудить вариант с коллегами или переслать руководству!

Похожие предложения в других зданиях

БЕЗ КОМИССИИ ID: 74933 Рейтинг6.1 КлассB

Москва, Гродненская улица, 5а

Давыдково → 1.91 км
~ 19 мин
Арендная плата в месяц 624 167 ₽ 14 000 ₽/м² в год С учётом НДС
Характеристики 535 м² 1 - 2 этаж Готово к въезду
Преимущества
  • Класс B
  • Пешком от метро
  • Кондиционирование и вентиляция
  • Свой паркинг

Предлагается в долгосрочную прямую аренду офис класса B площадью 535 квадр. метров в бизнес-центре... подробнее

Презентация по предложению

Собираете информацию? Получите подробную презентацию в удобном формате!

БЕЗ КОМИССИИ ID: 77184 Рейтинг5.0 КлассB

Москва, Дорогобужская улица, 14 к1

Кунцевская → 4.2 км
~ 16 мин
Арендная плата в месяц 750 000 ₽ 15 000 ₽/м² в год С учётом НДС
Характеристики 600 м² 3 этаж Готово к въезду
Преимущества
  • Класс B
  • Кондиционирование и вентиляция
  • Свой паркинг

Предлагаем в долгосрочную прямую аренду офисный блок класса B площадью 600 квадр. метров в недавно отреконструированном бизнес-центре... подробнее

Презентация по предложению

Собираете информацию? Получите подробную презентацию в удобном формате!

БЕЗ КОМИССИИ ID: 1257452 Рейтинг6.4 КлассB

Москва, Очаковское шоссе, 10к2 с1

Аминьевская → 1.2 км
~ 12 мин
Арендная плата в месяц 825 917 ₽ 17 000 ₽/м² в год С учётом НДС
Характеристики 583 м² 2 этаж Готово к въезду
Преимущества
  • Класс B
  • Пешком от метро
  • Кондиционирование и вентиляция

Собственник сдает в долгосрочную аренду офис класса B общей площадью 583 кв.м в бизнес-центре... подробнее

Презентация по предложению

Собираете информацию? Получите подробную презентацию в удобном формате!

БЕЗ КОМИССИИ ID: 1314582 Рейтинг8.0 КлассB+

Москва, Рябиновая улица, 26 с1

Давыдково → 5.09 км
~ 21 мин
Арендная плата в месяц 860 000 ₽ 17 200 ₽/м² в год С учётом НДС
Характеристики 600 м² 2 этаж Готово к въезду
Преимущества
  • Класс B+
  • Кондиционирование и вентиляция
  • Свой паркинг

Предлагается в долгосрочную прямую аренду офисное помещение класса B+ площадью 600 квадр. метров в бизнес-центре "West Plaza"... подробнее

>

Виртуальный тур

Презентация по предложению

Собираете информацию? Получите подробную презентацию в удобном формате!

БЕЗ КОМИССИИ ID: 1291546 Рейтинг5.7 КлассB

Москва, улица Ивана Франко, 4 к10

Кунцевская → 896 м
~ 9 мин
Арендная плата в месяц 622 463 ₽ 14 800 ₽/м² в год С учётом НДС
Характеристики 503 м² 1 - 10 этаж Готово к въезду
Преимущества
  • Класс B
  • Пешком от метро
  • Кондиционирование и вентиляция
  • Свой паркинг

Сдается в прямую аренду офис класса B общей площадью 503 квадр. метров в бизнес-центре... подробнее

Презентация по предложению

Собираете информацию? Получите подробную презентацию в удобном формате!

Посмотреть все похожие предложения
Отнеситесь рационально к процессу поиска нового офиса!

Просто ответьте на 3 вопроса, и наши специалисты сами предложат оптимальные варианты под ваш бюджет

.