8.2
Смотреть все фото
БЕЗ КОМИССИИ ID: 1324972 Рейтинг9.1 КлассА

Москва, Летниковская улица, 2 с1

Павелецкая → 641 м
~ 6 мин
Арендная плата в месяц 2 616 900 ₽ 237 900 ₽/м² в год С учётом НДС

Презентация по предложению

Собираете информацию? Получите подробную презентацию в удобном формате!

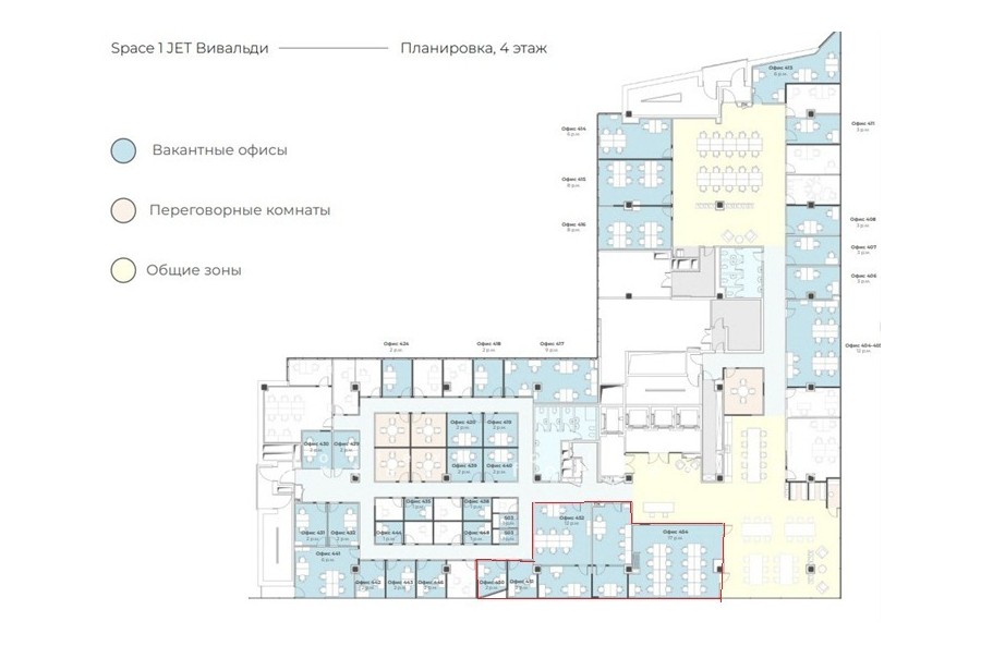
Площадь 132 м²
Состояние Готово к въезду
Планировка Открытая
Этаж 4

Описание

Преимущества
  • Класс А
  • Пешком от метро
  • Кондиционирование и вентиляция
  • Свой паркинг
  • Несколько провайдеров связи
  • Развитая инфраструктура
Предлагаем в аренду высококачественный сервисный офис на 33 рабочих места в бизнес-центре "Вивальди Плаза".

Сервисный офис - это современное офисное решение. Высококлассная дизайнерская отделка, полностью укомплектованные рабочие места, мягкие зоны отдыха, переговорные комнаты - это готовый к работе офис. Ежедневная уборка, обеспечение расходными материалами, включая кухни и санузлы, любая АХО-поддержка - это сервис, который уже включен в стоимость.

Услуги, включенные в арендную плату:
- Качественная мебель для комфортной работы
- Бронирование переговорных комнат
- Печать, IT-услуги и техническое обслуживание офиса
- Зоны отдыха, чай, кофе, вода
- Пополнение расходных материалов
- Ежедневная уборка офиса
- Высокоскоростной интернет

Офис класса А:
- Помещение с отделкой, готово к въезду
- Вентиляция: Приточно-вытяжная вентиляция
- Кондиционирование: центральное
- Презентабельный центральный ресепшн
- Круглосуточная охрана и видеонаблюдение
- Развитая инфраструктура внутри здания

О бизнес-центре "Вивальди Плаза" :
Москва, ЦАО, Летниковская улица, 2 с1

Удобная локация здания:
- Автомобиль: близость транспортных магистралей, таких как Садовое Кольцо и других.
- Возможность аренды парковочных мест.
- Ближайшее метро: от метро "Павелецкая" всего 9 мин пешком

Возможность заключения контракта в соответствии с 44ФЗ по госзакупкам.

Что еще можно узнать о предложении:

1. Мы отправим Вам подробную презентацию с планировкой и фотографиями в течение 10 минут после звонка, чтобы Вы могли поделиться информацией с руководством или с коллегами.
2. Мы готовы ответить на любые Ваши вопросы о помещении и коммерческих условиях аренды.
3. Оперативно организуем просмотр помещения, договоримся на любое удобное время, подготовим виртуальный тур.

Звоните нам в любое время. По будням мы сможем ответить на Ваши вопросы до 19:00. В выходные или вечернее время мы передадим Ваш контакт нашему менеджеру по аренде.

Коммерческие условия

Арендная плата 2 616 900 ₽
Ставка арендной платы 237 900 ₽ м²/год
Эксплуатационные расходы Включены в ставку
Налоги С учётом НДС
Тип договора Субаренда
Срок договора Долгосрочный
Размер платежей 1 месяц
Обеспечительный платеж 2 месяц
Статус Сдан

О бизнес-центре

Класс А
Этажность 11
Лифты Есть
Общая площадь 100 609 м²
Год постройки 2009
Паркинг Подземный
Вентиляция приточно-вытяжная
Кондиционирование центральное
Телекоммуникации Интернет/Телефония

Расположение

Подробная презентацию по предложению

Собираете информацию? Получите подробную презентацию в удобном формате, чтобы обсудить вариант с коллегами или переслать руководству!

Отнеситесь рационально к процессу поиска нового офиса!

Просто ответьте на 3 вопроса, и наши специалисты сами предложат оптимальные варианты под ваш бюджет

.