8.2
Смотреть все фото
БЕЗ КОМИССИИ ID: 1307706 Рейтинг7.3 КлассB
Бизнес-центр «Влакра»

Аренда офиса 434 м²

Москва, Малая Калужская улица, 15

Шаболовская → 1.36 км
~ 14 мин
Арендная плата в месяц 659 600 ₽ 18 200 ₽/м² в год С учётом НДС

Презентация по предложению

Собираете информацию? Получите подробную презентацию в удобном формате!

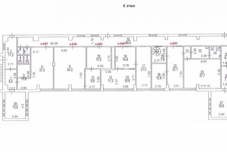
Площадь 434 м²
Состояние Готово к въезду
Планировка Смешанная
Этаж 2

Описание

Преимущества
  • Класс B
  • Пешком от метро
  • Кондиционирование и вентиляция
  • Свой паркинг
Предлагается в долгосрочную аренду помещение под офис класса B площадью 434 кв.м в историческом бизнес-центре "Влакра".

Москва, ЮАО, Малая Калужская улица, 15

Удобная локация здания:
- Автомобиль: близость транспортных магистралей, таких как Ленинский проспект и других.
- Возможность аренды парковочных мест.
- Ближайшее метро: от метро "Шаболовская" всего 11 мин пешком

Офис класса B:
- Помещение с отделкой, готово к въезду
- Вентиляция: Приточно-вытяжная вентиляция
- Кондиционирование: центральное


Что еще можно узнать о предложении:

1. Мы отправим Вам подробную презентацию с планировкой и фотографиями в течение 10 минут после звонка, чтобы Вы могли поделиться информацией с руководством или с коллегами.
2. Задайте любые вопросы менеджеру по телефону, готовы обсуждать любые предложения по финансовым условиям договора аренды.
3. Оперативно организуем просмотр помещения, договоримся на любое удобное время, подготовим виртуальный тур.

Звоните нам в любое время. По будням мы сможем ответить на Ваши вопросы до 19:00. В выходные или вечернее время мы передадим Ваш контакт нашему менеджеру по аренде.

Коммерческие условия

Арендная плата 628 250 ₽
Ставка арендной платы 18 200 ₽ м²/год
Эксплуатационные расходы Включены в ставку
Налоги С учётом НДС
Тип договора Прямая аренда
Срок договора от 11 месяцев
Размер платежей 1 месяц
Обеспечительный платеж 1 месяц
Статус Сдан

О бизнес-центре

Класс B
Этажность 4
Лифты Есть
Общая площадь 106 104 м²
Год постройки 1917
Паркинг Наземный
Вентиляция приточно-вытяжная
Кондиционирование центральное
Телекоммуникации Интернет/Телефония

Расположение

Подробная презентацию по предложению

Собираете информацию? Получите подробную презентацию в удобном формате, чтобы обсудить вариант с коллегами или переслать руководству!

Похожие предложения в других зданиях

БЕЗ КОМИССИИ ID: 365774 Рейтинг5.8 КлассB

Москва, Ленинский проспект, 29

Ленинский проспект → 788 м
~ 8 мин
Арендная плата в месяц 560 000 ₽ 16 800 ₽/м² в год С учётом НДС
Характеристики 400 м² этаж Готово к въезду
Преимущества
  • Класс B
  • Пешком от метро
  • Кондиционирование и вентиляция
  • Свой паркинг

Сдаем в долгосрочную аренду офисное помещение класса B площадью 400 квадратных метров в бизнес-центре... подробнее

Презентация по предложению

Собираете информацию? Получите подробную презентацию в удобном формате!

БЕЗ КОМИССИИ ID: 8293 Рейтинг6.5 КлассB+

Москва, улица Шаболовка, 67

Шаболовская → 809 м
~ 8 мин
Арендная плата в месяц 875 000 ₽ 21 000 ₽/м² в год С учётом НДС
Характеристики 500 м² 3 этаж Готово к въезду
Преимущества
  • Класс B+
  • Пешком от метро
  • Кондиционирование и вентиляция
  • Свой паркинг
  • Несколько провайдеров связи

Предлагается в долгосрочную прямую аренду офисный блок класса B+ общей площадью 500 квадр. метров в недавно отреконструированном бизнес-центре... подробнее

Презентация по предложению

Собираете информацию? Получите подробную презентацию в удобном формате!

БЕЗ КОМИССИИ ID: 81758 Рейтинг6.6 КлассB+

Москва, Хавская улица, 18 к2

Шаболовская → 648 м
~ 6 мин
Арендная плата в месяц 589 500 ₽ 18 000 ₽/м² в год С учётом НДС
Характеристики 393 м² 5 этаж Готово к въезду
Преимущества
  • Класс B+
  • Пешком от метро
  • Кондиционирование и вентиляция
  • Свой паркинг

Собственник сдает в прямую аренду офисное помещение класса B+ площадью 393 квадр. метров в историческом недавно отреконструированном бизнес-центре... подробнее

Презентация по предложению

Собираете информацию? Получите подробную презентацию в удобном формате!

БЕЗ КОМИССИИ ID: 410896 Рейтинг6.1 КлассB

Москва, улица Орджоникидзе, 10

Ленинский проспект → 476 м
~ 6 мин
Арендная плата в месяц 600 000 ₽ 18 000 ₽/м² в год С учётом НДС
Характеристики 400 м² 4 этаж Готово к въезду
Преимущества
  • Класс B
  • Пешком от метро
  • Кондиционирование и вентиляция
  • Свой паркинг
  • Развитая инфраструктура

Предлагаем в прямую аренду помещение под офис класса B общей площадью 400 кв.м в историческом бизнес-центре... подробнее

Презентация по предложению

Собираете информацию? Получите подробную презентацию в удобном формате!

БЕЗ КОМИССИИ ID: 273784 Рейтинг4.7 КлассB

Москва, Хавская улица, 11

Шаболовская → 794 м
~ 8 мин
Арендная плата в месяц 616 667 ₽ 18 500 ₽/м² в год С учётом НДС
Характеристики 400 м² этаж Готово к въезду
Преимущества
  • Класс B
  • Пешком от метро
  • Кондиционирование и вентиляция

Сдаем в прямую аренду офис класса B общей площадью 400 кв. метров в историческом бизнес-центре... подробнее

Презентация по предложению

Собираете информацию? Получите подробную презентацию в удобном формате!

Посмотреть все похожие предложения
Отнеситесь рационально к процессу поиска нового офиса!

Просто ответьте на 3 вопроса, и наши специалисты сами предложат оптимальные варианты под ваш бюджет

.