8.2
Смотреть все фото
БЕЗ КОМИССИИ ID: 1305219 Рейтинг7.6 КлассB

Москва, Волгоградский проспект, 4А

Пролетарская → 364 м
~ 4 мин
Арендная плата в месяц 924 000 ₽ 27 700 ₽/м² в год С учётом НДС

Презентация по предложению

Собираете информацию? Получите подробную презентацию в удобном формате!

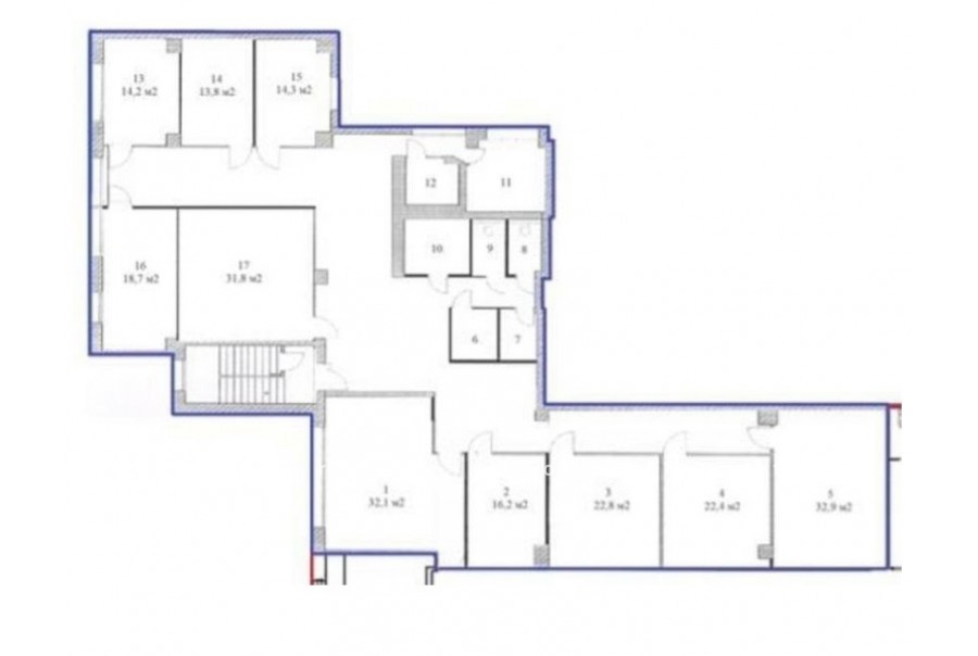
Площадь 400 м²
Планировка Кабинетная
Этаж 2

Описание

Преимущества
  • Класс B
  • Пешком от метро
  • Кондиционирование и вентиляция
  • Развитая инфраструктура

Коммерческие условия

Арендная плата 880 000 ₽
Ставка арендной платы 27 700 ₽ м²/год
Эксплуатационные расходы Включены в ставку
Налоги С учётом НДС
Тип договора Субаренда
Срок договора от 11 месяцев
Размер платежей 1 месяц
Обеспечительный платеж 1 месяц
Статус Сдан

О бизнес-центре

Класс B
Этажность 3
Лифты Нет
Общая площадь 0 м²
Год постройки 1993
Паркинг Стихийный
Вентиляция приточно-вытяжная
Кондиционирование сплит-системы
Телекоммуникации Интернет/Телефония

Расположение

Подробная презентацию по предложению

Собираете информацию? Получите подробную презентацию в удобном формате, чтобы обсудить вариант с коллегами или переслать руководству!

Похожие предложения в других зданиях

БЕЗ КОМИССИИ ID: 301434 Рейтинг5.8 КлассB

Москва, Воронцовская улица, 35Б к1

Крестьянская застава → 284 м
~ 3 мин
Арендная плата в месяц 825 000 ₽ 25 000 ₽/м² в год С учётом НДС
Характеристики 396 м² 4 этаж Готово к въезду
Преимущества
  • Класс B
  • Пешком от метро
  • Развитая инфраструктура

Сдается в долгосрочную прямую аренду офис класса B общей площадью 396 квадратных метров в бизнес-центре... подробнее

Презентация по предложению

Собираете информацию? Получите подробную презентацию в удобном формате!

БЕЗ КОМИССИИ ID: 1374091 Рейтинг8.6 КлассА

Москва, Таганская улица, 17-23

Марксистская → 503 м
~ 5 мин
Арендная плата в месяц 1 913 265 ₽ 50 000 ₽/м² в год С учётом НДС
Характеристики 459 м² 5 этаж Готово к въезду
Преимущества
  • Класс А
  • Пешком от метро
  • Кондиционирование и вентиляция
  • Свой паркинг

Предлагаем в долгосрочную прямую аренду офис класса А общей площадью 459 квадратных метров в бизнес-центре "Мосэнка Парк Тауэрс"... подробнее

Презентация по предложению

Собираете информацию? Получите подробную презентацию в удобном формате!

ВОЗМОЖНО ОСВОБОЖДЕНИЕ ID: 1102253 Рейтинг8.0 КлассB

Москва, Шарикоподшипниковская улица, 13 с62

Волгоградский проспект → 899 м
~ 9 мин
Арендная плата в месяц 861 000 ₽ 25 200 ₽/м² в год С учётом НДС
Характеристики 410 м² 4 этаж Готово к въезду
Преимущества
  • Класс B
  • Пешком от метро
  • Кондиционирование и вентиляция
  • Свой паркинг
  • Несколько провайдеров связи

Предлагаем в долгосрочную прямую аренду офисное помещение класса B площадью 410 кв. метров в недавно отреконструированном бизнес-центре "Шарикоподшипниковский"... подробнее

>

Виртуальный тур

Презентация по предложению

Собираете информацию? Получите подробную презентацию в удобном формате!

БЕЗ КОМИССИИ ID: 173324 Рейтинг6.4 КлассB

Москва, Воронцовская улица, 13/14 с9

Марксистская → 234 м
~ 3 мин
Арендная плата в месяц 880 000 ₽ 24 000 ₽/м² в год С учётом НДС
Характеристики 440 м² 1 этаж Готово к въезду
Преимущества
  • Класс B
  • Пешком от метро
  • Кондиционирование и вентиляция
  • Свой паркинг

Предлагаем в долгосрочную прямую аренду офисное помещение класса B общей площадью 440 квадр. метров в историческом бизнес-центре... подробнее

Презентация по предложению

Собираете информацию? Получите подробную презентацию в удобном формате!

БЕЗ КОМИССИИ ID: 343469 Рейтинг7.2 КлассB

Москва, Таганская улица, 9

Марксистская → 264 м
~ 3 мин
Арендная плата в месяц 1 059 525 ₽ 27 700 ₽/м² в год С учётом НДС
Характеристики 459 м² 2 этаж Готово к въезду
Преимущества
  • Класс B
  • Пешком от метро

Предлагаем в долгосрочную прямую аренду помещение под офис класса B площадью 459 кв. метров в бизнес-центре... подробнее

Презентация по предложению

Собираете информацию? Получите подробную презентацию в удобном формате!

Посмотреть все похожие предложения
Отнеситесь рационально к процессу поиска нового офиса!

Просто ответьте на 3 вопроса, и наши специалисты сами предложат оптимальные варианты под ваш бюджет

.