8.2
Смотреть все фото
БЕЗ КОМИССИИ ID: 925130 Рейтинг6.8 КлассB

Москва, Волочаевская улица, 40

Римская → 1.13 км
~ 11 мин
Арендная плата в месяц 754 300 ₽ 24 800 ₽/м² в год С учётом НДС

Презентация по предложению

Собираете информацию? Получите подробную презентацию в удобном формате!

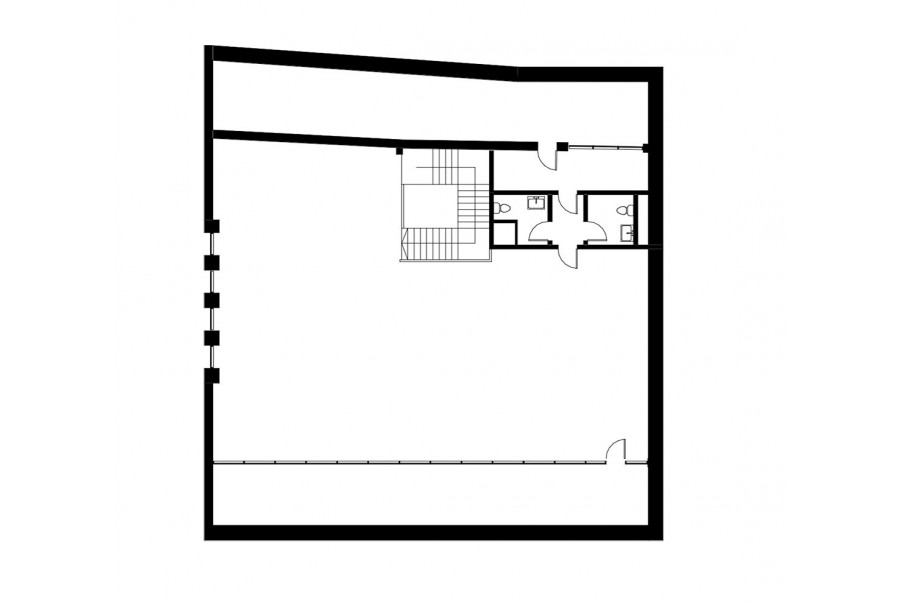
Площадь 365 м²
Состояние Готово к въезду
Планировка Смешанная
Этаж 1 - 2

Описание

Преимущества
  • Класс B
  • Пешком от метро
Предлагается в долгосрочную прямую аренду офис класса B общей площадью 365 кв. метров в бизнес-центре.

Москва, ЮВАО, Волочаевская улица, 40

Удобная локация здания:
- Автомобиль: близость транспортных магистралей, таких как Шоссе Энтузиастов и других.
- Ближайшее метро: от метро "Площадь Ильича" всего 11 мин пешком

Офис класса B:
- Офис с отделкой, полностью готов к аренде


Если предложение предварительно Вам подходит:

1. Мы отправим Вам подробную презентацию с планировкой и фотографиями в течение 10 минут после звонка, чтобы Вы могли поделиться информацией с руководством или с коллегами.
2. Ответим на любые Ваши вопросы, готовы обсуждать любые предложения по коммерческим условиям аренды помещения.
3. Покажем помещение в удобное для Вас время с менеджером в здании, при необходимости подготовим виртуальный тур.

Звоните нам в любое время. По будням мы сможем ответить на Ваши вопросы до 19:00. В выходные или вечернее время мы передадим Ваш контакт нашему менеджеру по аренде.

Коммерческие условия

Арендная плата 879 160 ₽
Ставка арендной платы 24 800 ₽ м²/год
Эксплуатационные расходы Включены в ставку
Налоги С учётом НДС
Тип договора Прямая аренда
Срок договора от 11 месяцев
Размер платежей 1 месяц
Обеспечительный платеж 1 месяц
Статус Сдан

О бизнес-центре

Класс B
Этажность 3
Лифты Нет
Общая площадь 603 м²
Паркинг Наземный
Вентиляция приточно-вытяжная
Кондиционирование сплит-системы
Телекоммуникации Интернет/Телефония

Расположение

Подробная презентацию по предложению

Собираете информацию? Получите подробную презентацию в удобном формате, чтобы обсудить вариант с коллегами или переслать руководству!

Похожие предложения в других зданиях

БЕЗ КОМИССИИ ID: 260593 Рейтинг8.1 КлассB+

Москва, улица Сергия Радонежского, 13 с1

Римская → 542 м
~ 5 мин
Арендная плата в месяц 700 000 ₽ 25 000 ₽/м² в год С учётом НДС
Характеристики 336 м² 1 - 3 этаж Готово к въезду
Преимущества
  • Класс B+
  • Пешком от метро
  • Кондиционирование и вентиляция
  • Свой паркинг

Сдается в аренду офисное помещение класса B+ общей площадью 336 квадратных метров в бизнес-центре... подробнее

Презентация по предложению

Собираете информацию? Получите подробную презентацию в удобном формате!

БЕЗ КОМИССИИ ID: 226827 Рейтинг8.6 КлассB

Москва, улица Сергия Радонежского, 7

Римская → 322 м
~ 3 мин
Арендная плата в месяц 818 750 ₽ 26 200 ₽/м² в год С учётом НДС
Характеристики 375 м² 1 - 2 этаж Готово к въезду
Преимущества
  • Класс B
  • Пешком от метро
  • Кондиционирование и вентиляция
  • Свой паркинг

Предлагается в долгосрочную аренду офисное помещение класса B площадью 375 кв. метров в историческом бизнес-центре... подробнее

Презентация по предложению

Собираете информацию? Получите подробную презентацию в удобном формате!

БЕЗ КОМИССИИ ID: 1328678 Рейтинг6.1 КлассB

Москва, улица Золоторожский Вал, 34 с6

Площадь Ильича → 252 м
~ 3 мин
Арендная плата в месяц 783 100 ₽ 24 600 ₽/м² в год Упрощённая система налогообложения
Характеристики 382 м² 1 этаж Готово к въезду
Преимущества
  • Класс B
  • Пешком от метро
  • Кондиционирование и вентиляция
  • Свой паркинг

Предлагается в прямую аренду офисный блок класса B общей площадью 382 кв. метров в бизнес-центре... подробнее

Презентация по предложению

Собираете информацию? Получите подробную презентацию в удобном формате!

ВОЗМОЖНО ОСВОБОЖДЕНИЕ ID: 1249065 Рейтинг7.1 КлассB

Москва, Самокатная улица, 1 с1

Площадь Ильича → 1.75 км
~ 17 мин
Арендная плата в месяц 877 500 ₽ 26 000 ₽/м² в год С учётом НДС
Характеристики 405 м² 3 этаж Готово к въезду
Преимущества
  • Класс B
  • Кондиционирование и вентиляция
  • Свой паркинг
  • Несколько провайдеров связи

Предлагается в прямую аренду офисный блок класса B площадью 405 квадратных метров в бизнес-центре... подробнее

Презентация по предложению

Собираете информацию? Получите подробную презентацию в удобном формате!

БЕЗ КОМИССИИ ID: 1328305 Рейтинг5.7 КлассB

Москва, 3-й Сыромятнический переулок, 3/9 с1

Курская → 558 м
~ 6 мин
Арендная плата в месяц 900 000 ₽ 27 000 ₽/м² в год Упрощённая система налогообложения
Характеристики 400 м² 3 этаж Готово к въезду
Преимущества
  • Класс B
  • Пешком от метро
  • Кондиционирование и вентиляция
  • Свой паркинг

Сдается в долгосрочную прямую аренду офисное помещение класса B общей площадью 400 кв. метров в бизнес-центре... подробнее

Презентация по предложению

Собираете информацию? Получите подробную презентацию в удобном формате!

Посмотреть все похожие предложения
Отнеситесь рационально к процессу поиска нового офиса!

Просто ответьте на 3 вопроса, и наши специалисты сами предложат оптимальные варианты под ваш бюджет