8.2

Виртуальный тур

Смотреть все фото
БЕЗ КОМИССИИ ID: 1379346 Рейтинг7.6 КлассB+
Бизнес-центр «Воробьёвский»

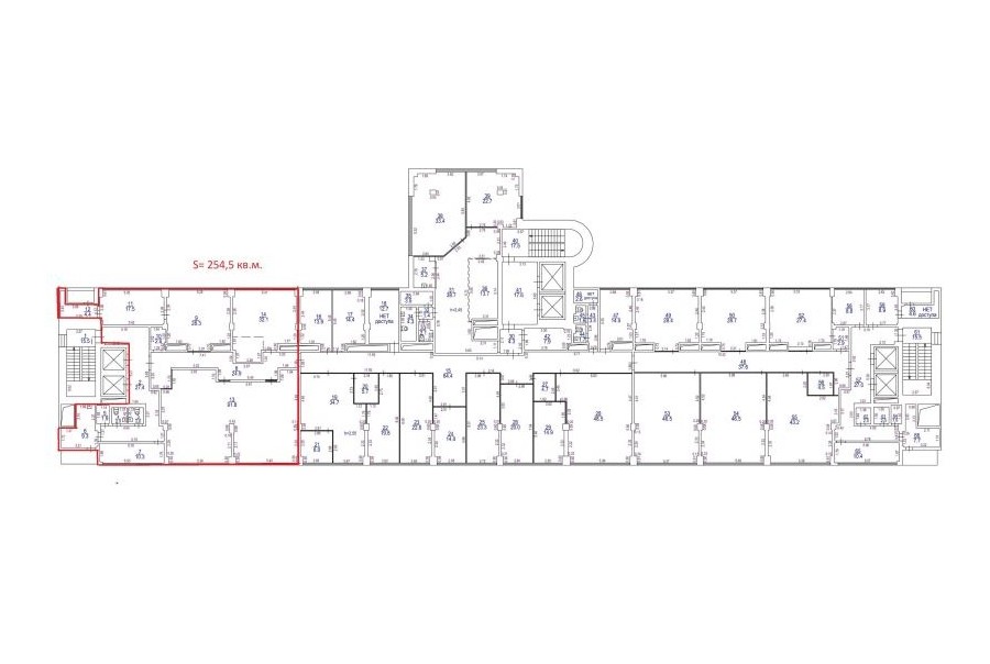
Аренда офиса 255 м²

Москва, Университетский проспект, 12

Ломоносовский проспект → 1.43 км
~ 14 мин
Арендная плата в месяц 1 190 000 ₽ 56 000 ₽/м² в год С учётом НДС

Презентация по предложению

Собираете информацию? Получите подробную презентацию в удобном формате!

Площадь 255 м²
Состояние Готово к въезду
Планировка Смешанная
Этаж 7

Описание

Преимущества
  • Класс B+
  • Пешком от метро
  • Кондиционирование и вентиляция
  • Свой паркинг
  • Развитая инфраструктура
Предлагаем в прямую аренду офис класса B+ площадью 255 кв.м в недавно отреконструированном бизнес-центре "Воробьёвский".

Москва, ЗАО, Университетский проспект, 12

Удобная локация здания:
- Автомобиль: близость транспортных магистралей, таких как Мичуринский проспект и других.
- Возможность аренды парковочных мест.
- Ближайшее метро: от метро "Ломоносовский проспект" всего 14 мин пешком

Офис класса B+:
- Помещение с отделкой, готово к въезду
- Вентиляция: Приточно-вытяжная вентиляция
- Кондиционирование: центральное
- Презентабельный центральный ресепшн
- Круглосуточная охрана и видеонаблюдение
- Развитая инфраструктура внутри здания

Возможность заключения контракта в соответствии с 44ФЗ по госзакупкам.

Если предложение предварительно Вам подходит:

1. Мы подготовили презентацию с информацией о помещении, фотографиями и планировкой, чтобы Вы могли поделиться ей с коллегами или руководством. Попросите об этом нашего менеджера по телефону в объявлении.
2. Ответим на любые Ваши вопросы, готовы обсуждать любые предложения по коммерческим условиям аренды помещения.
3.

Вы можете позвонить нам в любое время. Мы ответим на Ваши вопросы по будням до 19:00, а поздно вечером или в выходные зафиксируем Ваш контакт и перезвоним в рабочее время.

Коммерческие условия

Арендная плата 1 190 000 ₽
Ставка арендной платы 56 000 ₽ м²/год
Эксплуатационные расходы Включены в ставку
Налоги С учётом НДС
Тип договора Прямая аренда
Срок договора Долгосрочный
Размер платежей 3 месяц
Обеспечительный платеж 3 месяц
Статус Свободен

О бизнес-центре

Класс B+
Этажность 12
Лифты Есть
Общая площадь 16 000 м²
Год постройки 1970
Паркинг Наземный
Вентиляция приточно-вытяжная
Кондиционирование центральное
Телекоммуникации Интернет/Телефония

Расположение

Подробная презентацию по предложению

Собираете информацию? Получите подробную презентацию в удобном формате, чтобы обсудить вариант с коллегами или переслать руководству!

Похожие предложения в других зданиях

БЕЗ КОМИССИИ ID: 1381574 Рейтинг8.5 КлассB+

Москва, улица Барклая, 6 с5

Багратионовская → 912 м
~ 9 мин
Арендная плата в месяц 1 200 002 ₽ 52 200 ₽/м² в год Упрощённая система налогообложения
Характеристики 276 м² 2 - 6 этаж Готово к въезду
Преимущества
  • Класс B+
  • Пешком от метро
  • Кондиционирование и вентиляция
  • Свой паркинг
  • Несколько провайдеров связи
  • Развитая инфраструктура

Сдается в долгосрочную аренду помещение под офис класса B+ площадью 276 квадр. метров в бизнес-центре "Барклай Плаза II"... подробнее

Презентация по предложению

Собираете информацию? Получите подробную презентацию в удобном формате!

БЕЗ КОМИССИИ ID: 923524 Рейтинг8.5 КлассB+

Москва, улица Барклая, 6 с5

Багратионовская → 912 м
~ 9 мин
Арендная плата в месяц 946 875 ₽ 50 500 ₽/м² в год С учётом НДС
Характеристики 225 м² 6 этаж Готово к въезду
Преимущества
  • Класс B+
  • Пешком от метро
  • Кондиционирование и вентиляция
  • Свой паркинг
  • Несколько провайдеров связи
  • Развитая инфраструктура

Предлагаем в долгосрочную прямую аренду офисный блок класса B+ площадью 225 квадр. метров в бизнес-центре "Барклай Плаза II"... подробнее

>

Виртуальный тур

Презентация по предложению

Собираете информацию? Получите подробную презентацию в удобном формате!

ВОЗМОЖНО ОСВОБОЖДЕНИЕ ID: 881428 Рейтинг7.5 КлассА

Москва, улица Дмитрия Ульянова, 7А

Академическая → 844 м
~ 8 мин
Арендная плата в месяц 1 150 000 ₽ 60 000 ₽/м² в год С учётом НДС
Характеристики 230 м² 1 этаж Готово к въезду
Преимущества
  • Класс А
  • Пешком от метро
  • Кондиционирование и вентиляция
  • Свой паркинг

Предлагаем в долгосрочную аренду офисное помещение класса А площадью 230 квадр. метров в бизнес-центре "Май"... подробнее

Презентация по предложению

Собираете информацию? Получите подробную презентацию в удобном формате!

БЕЗ КОМИССИИ ID: 56371 Рейтинг8.2 КлассА

Москва, проспект 60-летия Октября, 10А

Академическая → 471 м
~ 5 мин
Арендная плата в месяц 1 120 000 ₽ 48 000 ₽/м² в год С учётом НДС
Характеристики 280 м² 11 этаж Готово к въезду
Преимущества
  • Класс А
  • Пешком от метро
  • Кондиционирование и вентиляция
  • Свой паркинг
  • Развитая инфраструктура

Предлагаем в долгосрочную аренду офис класса А площадью 280 квадратных метров в бизнес-центре "Principal Plaza"... подробнее

Презентация по предложению

Собираете информацию? Получите подробную презентацию в удобном формате!

БЕЗ КОМИССИИ ID: 1379525 Рейтинг7.6 КлассB+

Москва, Университетский проспект, 12

Ломоносовский проспект → 1.43 км
~ 14 мин
Арендная плата в месяц 1 350 000 ₽ 60 000 ₽/м² в год С учётом НДС
Характеристики 270 м² 10 этаж Готово к въезду
Преимущества
  • Класс B+
  • Пешком от метро
  • Кондиционирование и вентиляция
  • Свой паркинг
  • Развитая инфраструктура

Предлагается в долгосрочную прямую аренду офисный блок класса B+ общей площадью 270 квадратных метров в недавно отреконструированном бизнес-центре "Воробьёвский"... подробнее

>

Виртуальный тур

Презентация по предложению

Собираете информацию? Получите подробную презентацию в удобном формате!

Посмотреть все похожие предложения
Отнеситесь рационально к процессу поиска нового офиса!

Просто ответьте на 3 вопроса, и наши специалисты сами предложат оптимальные варианты под ваш бюджет

.