8.2

Виртуальный тур

Смотреть все фото
ВОЗМОЖНО ОСВОБОЖДЕНИЕ ID: 1285092 Рейтинг7.6 КлассB+
Бизнес-центр «Воробьёвский»

Аренда офиса 345 м²

Москва, Университетский проспект, 12

Ломоносовский проспект → 1.43 км
~ 14 мин
Арендная плата в месяц по запросу потенциального арендатора Срок освобождение в течение 3 месяцев

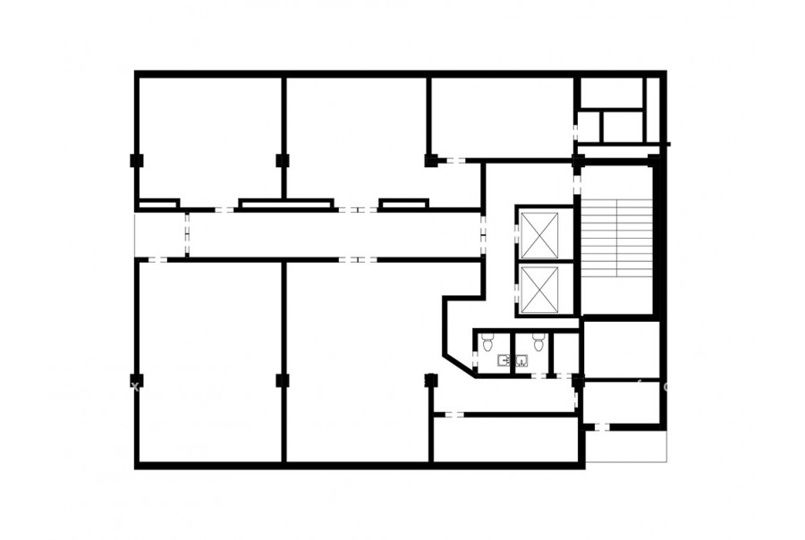
Информация по помещению

Ознакомьтесь с дополнительной информацией по помещению и коммерческим условиям!

Площадь 345 м²
Планировка Смешанная
Этаж 8

Описание

Преимущества
  • Класс B+
  • Пешком от метро
  • Кондиционирование и вентиляция
  • Свой паркинг
  • Развитая инфраструктура

Коммерческие условия

Арендная плата по запросу
Ставка арендной платы по запросу
Эксплуатационные расходы Включены в ставку
Налоги С учётом НДС
Тип договора Прямая аренда
Срок договора от 11 месяцев
Размер платежей 2 месяц
Обеспечительный платеж 1 месяц
Статус Сдан

О бизнес-центре

Класс B+
Этажность 12
Лифты Есть
Общая площадь 16 000 м²
Год постройки 1970
Паркинг Наземный
Вентиляция приточно-вытяжная
Кондиционирование центральное
Телекоммуникации Интернет/Телефония

Расположение

Информация по помещению

Получите дополнительную информацию по помещению и коммерческом условиям!

Похожие предложения в других зданиях

БЕЗ КОМИССИИ ID: 1327027 Рейтинг6.5 КлассB

Москва, улица Дружбы, 10А

Ломоносовский проспект → 541 м
~ 5 мин
Арендная плата в месяц 1 052 917 ₽ 35 000 ₽/м² в год С учётом НДС
Характеристики 361 м² 2 этаж Готово к въезду
Преимущества
  • Класс B
  • Пешком от метро

Сдается в прямую аренду офисный блок класса B площадью 361 квадратных метров в бизнес-центре... подробнее

Презентация по предложению

Собираете информацию? Получите подробную презентацию в удобном формате!

БЕЗ КОМИССИИ ID: 911524 Рейтинг8.2 КлассB

Москва, Усачёва улица, 35 с1

Спортивная → 267 м
~ 3 мин
Арендная плата в месяц 705 667 ₽ 29 000 ₽/м² в год С учётом НДС
Характеристики 292 м² 1 этаж Готово к въезду
Преимущества
  • Класс B
  • Пешком от метро
  • Кондиционирование и вентиляция
  • Свой паркинг
  • Несколько провайдеров связи

Предлагается в прямую аренду офис класса B площадью 292 кв. метров в бизнес-центре... подробнее

Презентация по предложению

Собираете информацию? Получите подробную презентацию в удобном формате!

БЕЗ КОМИССИИ ID: 1329466 Рейтинг4.9 КлассB

Москва, улица 10-летия Октября, 11

Спортивная → 210 м
~ 3 мин
Арендная плата в месяц 1 190 000 ₽ 35 700 ₽/м² в год С учётом НДС
Характеристики 400 м² 3 этаж Готово к въезду
Преимущества
  • Класс B
  • Пешком от метро
  • Развитая инфраструктура

Предлагаем в прямую аренду офисное помещение класса B площадью 400 квадратных метров в бизнес-центре "ГОСТИНИЦА АРЕНА"... подробнее

Презентация по предложению

Собираете информацию? Получите подробную презентацию в удобном формате!

БЕЗ КОМИССИИ ID: 1254418 Рейтинг8.5 КлассB

Москва, Большой Саввинский переулок, 12 с16

Спортивная → 1.2 км
~ 12 мин
Арендная плата в месяц 1 079 167 ₽ 35 000 ₽/м² в год С учётом НДС
Характеристики 370 м² 6 этаж Готово к въезду
Преимущества
  • Класс B
  • Пешком от метро
  • Кондиционирование и вентиляция

Собственник сдает в долгосрочную аренду помещение под офис класса B площадью 370 кв. метров в бизнес-центре... подробнее

>

Виртуальный тур

Презентация по предложению

Собираете информацию? Получите подробную презентацию в удобном формате!

БЕЗ КОМИССИИ ID: 1296349 Рейтинг7.8 КлассB+

Москва, 3-я Фрунзенская улица, 19 с1

Спортивная → 453 м
~ 6 мин
Арендная плата в месяц 1 006 133 ₽ 35 200 ₽/м² в год С учётом НДС
Характеристики 343 м² 3 этаж Готово к въезду
Преимущества
  • Класс B+
  • Пешком от метро
  • Кондиционирование и вентиляция

Предлагается в долгосрочную прямую аренду офисное помещение класса B+ площадью 343 квадратных метров в бизнес-центре... подробнее

>

Виртуальный тур

Презентация по предложению

Собираете информацию? Получите подробную презентацию в удобном формате!

Посмотреть все похожие предложения
Отнеситесь рационально к процессу поиска нового офиса!

Просто ответьте на 3 вопроса, и наши специалисты сами предложат оптимальные варианты под ваш бюджет

.