8.2
Смотреть все фото
БЕЗ КОМИССИИ ID: 287835 Рейтинг7.9 КлассB+

Москва, улица Воронцово Поле, 12 с3

Курская → 564 м
~ 6 мин
Арендная плата в месяц 1 575 000 ₽ 14 000 ₽/м² в год С учётом НДС

Презентация по предложению

Собираете информацию? Получите подробную презентацию в удобном формате!

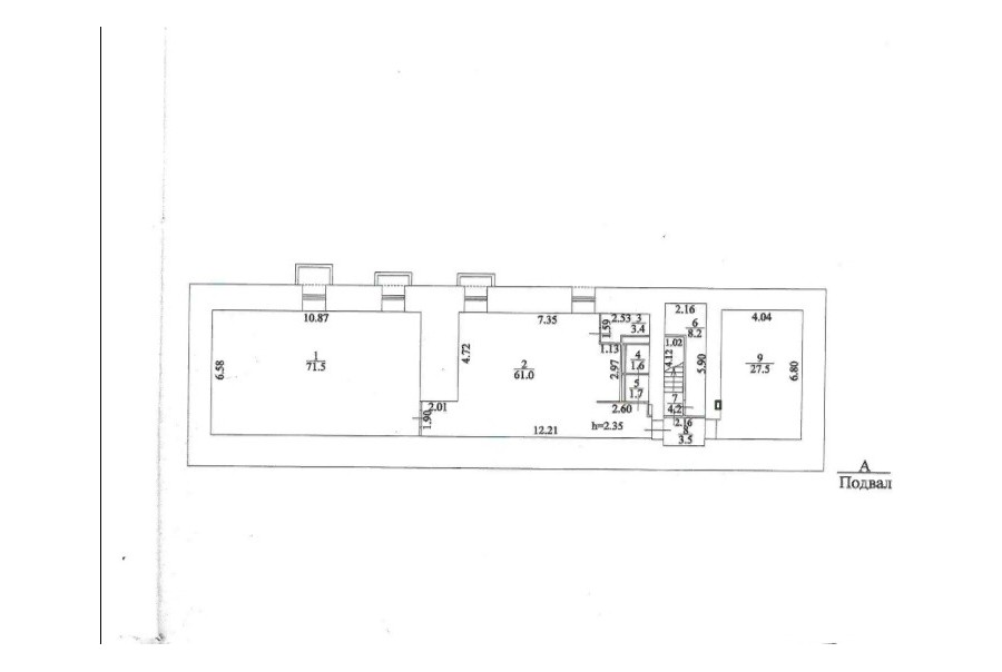
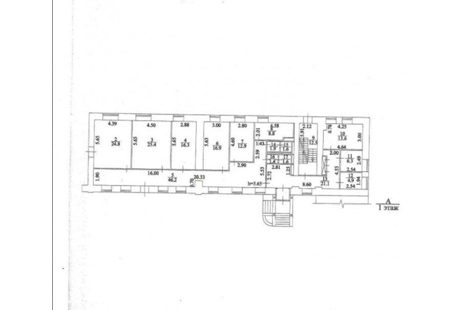
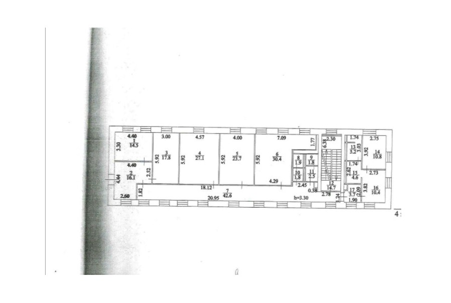
Площадь 1 350 м²
Состояние Готово к въезду
Планировка Кабинетная
Этаж -1 - 5

Описание

Преимущества
  • Класс B+
  • Пешком от метро
  • Кондиционирование и вентиляция
  • Свой паркинг
Предлагаем в прямую аренду помещение под офис класса B+ площадью 1350 кв.м в бизнес-центре "Воронцово Поле".

Москва, ЦАО, улица Воронцово Поле, 12 с3

Удобное расположение в пределах Садового кольца:
- Возможность аренды парковочных мест.
- Ближайшее метро: от метро "Курская" всего 8 мин пешком

Офис класса B+:
- Помещение готово к въезду
- Вентиляция: Приточно-вытяжная вентиляция
- Кондиционирование: центральное


Если данное предложение подходит Вашему запросу:

1. Мы отправим Вам подробную презентацию с планировкой и фотографиями в течение 10 минут после звонка, чтобы Вы могли поделиться информацией с руководством или с коллегами.
2. Задайте любые вопросы менеджеру по телефону, готовы обсуждать любые предложения по финансовым условиям договора аренды.
3. Оперативно организуем просмотр помещения с менеджерами на объекте или подготовим виртуальный тур.

Звоните нам в любое время. По будням мы сможем ответить на Ваши вопросы до 19:00. В выходные или вечернее время мы передадим Ваш контакт нашему менеджеру по аренде.

Коммерческие условия

Арендная плата 1 575 000 ₽
Ставка арендной платы 14 000 ₽ м²/год
Эксплуатационные расходы Включены в ставку
Налоги С учётом НДС
Тип договора Прямая аренда
Срок договора от 11 месяцев
Размер платежей 1 месяц
Обеспечительный платеж 1 месяц
Статус Сдан

О бизнес-центре

Класс B+
Этажность 5
Лифты Нет
Общая площадь 1 350 м²
Год постройки 1880
Паркинг Наземный
Вентиляция приточно-вытяжная
Кондиционирование центральное
Телекоммуникации Интернет/Телефония

Расположение

Подробная презентацию по предложению

Собираете информацию? Получите подробную презентацию в удобном формате, чтобы обсудить вариант с коллегами или переслать руководству!

Похожие предложения в других зданиях

БЕЗ КОМИССИИ ID: 178284 Рейтинг5.7 КлассB

Москва, Яузская улица, 1/15 с1

Китай-город → 713 м
~ 7 мин
Арендная плата в месяц 1 462 500 ₽ 15 000 ₽/м² в год С учётом НДС
Характеристики 1 170 м² 0 - 2 этаж Готово к въезду
Преимущества
  • Класс B
  • Пешком от метро
  • Кондиционирование и вентиляция
  • Свой паркинг

Сдается в прямую аренду помещение под офис класса B общей площадью 1170 квадратных метров в бизнес-центре... подробнее

Презентация по предложению

Собираете информацию? Получите подробную презентацию в удобном формате!

БЕЗ КОМИССИИ ID: 123773 Рейтинг6.0 КлассB

Москва, Нижняя Сыромятническая улица, 11 с68

Чкаловская → 952 м
~ 11 мин
Арендная плата в месяц 1 750 000 ₽ 14 000 ₽/м² в год С учётом НДС
Характеристики 1 500 м² 1 этаж Готово к въезду
Преимущества
  • Класс B
  • Пешком от метро
  • Кондиционирование и вентиляция

Предлагаем в долгосрочную аренду офисное помещение класса B общей площадью 1500 кв.м в бизнес-центре "Плутон"... подробнее

Презентация по предложению

Собираете информацию? Получите подробную презентацию в удобном формате!

БЕЗ КОМИССИИ ID: 128182 Рейтинг5.6 КлассB

Москва, улица Александра Солженицына, 27

Марксистская → 920 м
~ 9 мин
Арендная плата в месяц 1 733 333 ₽ 16 000 ₽/м² в год С учётом НДС
Характеристики 1 300 м² 4 - 5 этаж Готово к въезду
Преимущества
  • Класс B
  • Пешком от метро
  • Кондиционирование и вентиляция
  • Свой паркинг
  • Развитая инфраструктура

Сдается в прямую аренду помещение под офис класса B общей площадью 1300 квадр. метров в бизнес-центре... подробнее

Презентация по предложению

Собираете информацию? Получите подробную презентацию в удобном формате!

БЕЗ КОМИССИИ ID: 15742 Рейтинг6.1 КлассB

Москва, Старая Басманная улица, 21/4 с1

Бауманская → 1.25 км
~ 12 мин
Арендная плата в месяц 1 781 250 ₽ 15 000 ₽/м² в год С учётом НДС
Характеристики 1 425 м² 2 этаж Готово к въезду
Преимущества
  • Класс B
  • Пешком от метро
  • Кондиционирование и вентиляция
  • Свой паркинг

в долгосрочную аренду помещение под офис класса B общей площадью 1425 квадр. метров в историческом недавно отреконструированном бизнес-центре " .. подробнее

Презентация по предложению

Собираете информацию? Получите подробную презентацию в удобном формате!

БЕЗ КОМИССИИ ID: 365789 Рейтинг7.1 КлассB

Москва, Самокатная улица, 1 с1

Римская → 1.75 км
~ 17 мин
Арендная плата в месяц 1 800 608 ₽ 14 300 ₽/м² в год С учётом НДС
Характеристики 1 511 м² 1 - 3 этаж Готово к въезду
Преимущества
  • Класс B
  • Пешком от метро
  • Кондиционирование и вентиляция
  • Свой паркинг
  • Несколько провайдеров связи

Сдается в долгосрочную прямую аренду офисное помещение класса B площадью 1511 квадратных метров в бизнес-центре... подробнее

Презентация по предложению

Собираете информацию? Получите подробную презентацию в удобном формате!

Посмотреть все похожие предложения
Отнеситесь рационально к процессу поиска нового офиса!

Просто ответьте на 3 вопроса, и наши специалисты сами предложат оптимальные варианты под ваш бюджет

.