8.2
Смотреть все фото
БЕЗ КОМИССИИ ID: 1316973 Рейтинг7.9 КлассB+
Бизнес-центр «Воронцово Поле»

Продажа офиса 1337 м²

Москва, улица Воронцово Поле, 12 с3

Курская → 564 м
~ 6 мин
Стоимость 508.06 млн ₽ 380 000 ₽/м²

Презентация по предложению

Собираете информацию? Получите подробную презентацию в удобном формате!

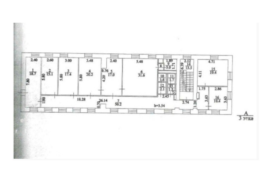
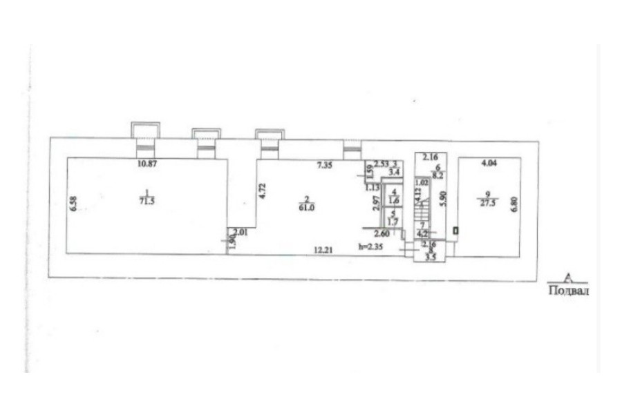
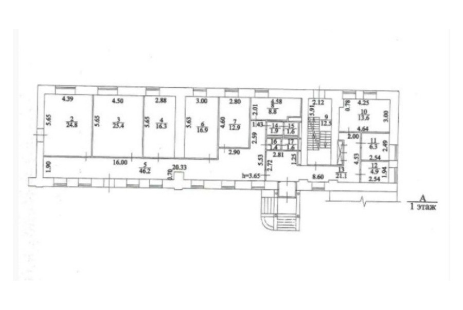
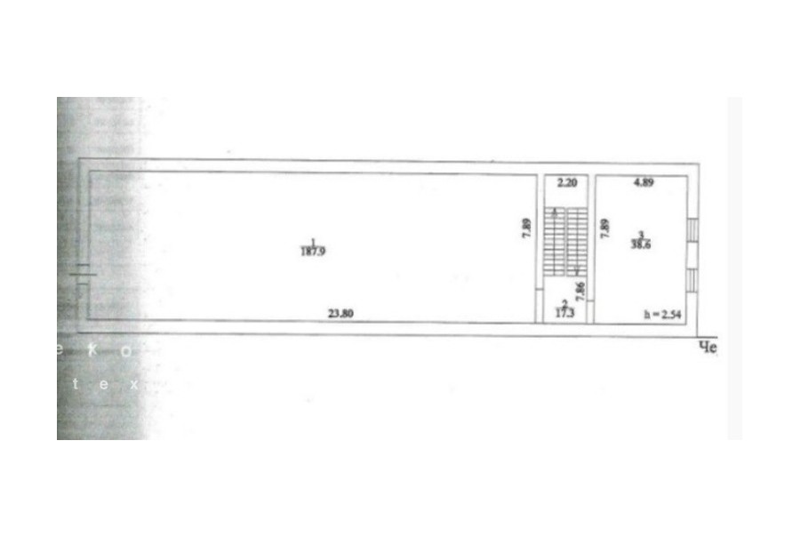
Площадь 1 337 м²
Состояние Под отделку
Планировка Открытая
Этаж -1 - 5

Описание

Преимущества
  • Класс B+
  • Пешком от метро
  • Кондиционирование и вентиляция
  • Свой паркинг
Предлагаем здание под офис класса B+ общей площадью 1337 кв.м.

Москва, ЦАО, улица Воронцово Поле, 12 с3

Удобное расположение в пределах Садового кольца:
- Возможность аренды парковочных мест.
- Ближайшее метро: от метро "Курская" всего 6 мин пешком

Офис класса B+:
- Офис без отделки
- Вентиляция: Приточно-вытяжная вентиляция
- Кондиционирование: центральное


Если предложение предварительно Вам подходит:

1. Получите презентацию в течение 10 минут в Whatsapp или на почту с фотографиями и планировкой, чтобы обсудить данный вариант с коллегами или переслать руководству. Для этого позвоните по телефону, указанному в объявлении.
2. Ответим на любые Ваши вопросы, готовы обсуждать любые предложения по коммерческим условиям аренды помещения.
3. Оперативно организуем просмотр помещения, договоримся на любое удобное время, подготовим виртуальный тур.

Вы можете позвонить нам в любое время. Мы ответим на Ваши вопросы по будням до 19:00, а поздно вечером или в выходные зафиксируем Ваш контакт и перезвоним в рабочее время.

О бизнес-центре

Класс B+
Этажность 5
Лифты Нет
Общая площадь 1 350 м²
Год постройки 1880
Паркинг Наземный
Вентиляция приточно-вытяжная
Кондиционирование центральное
Телекоммуникации Интернет/Телефония

Расположение

Подробная презентацию по предложению

Собираете информацию? Получите подробную презентацию в удобном формате, чтобы обсудить вариант с коллегами или переслать руководству!

Похожие предложения в других зданиях

БЕЗ КОМИССИИ ID: 1324611 Рейтинг7.6 КлассB

Москва, улица Земляной Вал, 39/1 с2

Чкаловская → 142 м
~ 1 мин
Стоимость 589 999 800 ₽ 453 800 ₽/м²
Характеристики 1 300 м² -1 - 2 этаж Готово к въезду
Преимущества
  • Класс B
  • Пешком от метро
  • Кондиционирование и вентиляция

В продаже офисное помещение площадью 1300 кв.м в недавно отреконструированном бизнес-центре. .. подробнее

Презентация по предложению

Собираете информацию? Получите подробную презентацию в удобном формате!

БЕЗ КОМИССИИ ID: 1320830 Рейтинг6.6 КлассB

Москва, Хохловский переулок, 13 с1

Китай-город → 801 м
~ 8 мин
Стоимость 1 360 450 000 ₽ 650 000 ₽/м²
Характеристики 2 093 м² -1 - 2 этаж Готово к въезду
Преимущества
  • Класс B
  • Пешком от метро
  • Кондиционирование и вентиляция

Продается офисный блок площадью 2093 кв. метров в недавно отреконструированном бизнес-центре "Нега". .. подробнее

Презентация по предложению

Собираете информацию? Получите подробную презентацию в удобном формате!

БЕЗ КОМИССИИ ID: 1320828 Рейтинг6.6 КлассB

Москва, Хохловский переулок, 13 с1

Китай-город → 801 м
~ 8 мин
Стоимость 945 750 000 ₽ 650 000 ₽/м²
Характеристики 1 455 м² 1 - 2 этаж Готово к въезду
Преимущества
  • Класс B
  • Пешком от метро
  • Кондиционирование и вентиляция

В продаже офисное помещение площадью 1455 квадратных метров в недавно отреконструированном бизнес-центре "Нега". .. подробнее

Презентация по предложению

Собираете информацию? Получите подробную презентацию в удобном формате!

БЕЗ КОМИССИИ ID: 1320829 Рейтинг6.6 КлассB

Москва, Хохловский переулок, 13 с1

Китай-город → 801 м
~ 8 мин
Стоимость 867 100 000 ₽ 650 000 ₽/м²
Характеристики 1 334 м² -1 - 1 этаж Готово к въезду
Преимущества
  • Класс B
  • Пешком от метро
  • Кондиционирование и вентиляция

Продается офисный блок общей площадью 1334 квадратных метров в недавно отреконструированном бизнес-центре "Нега". .. подробнее

Презентация по предложению

Собираете информацию? Получите подробную презентацию в удобном формате!

БЕЗ КОМИССИИ ID: 1320825 Рейтинг6.6 КлассB

Москва, Хохловский переулок, 13 с1

Китай-город → 801 м
~ 8 мин
Стоимость 493 350 000 ₽ 650 000 ₽/м²
Характеристики 759 м² 2 этаж Готово к въезду
Преимущества
  • Класс B
  • Пешком от метро
  • Кондиционирование и вентиляция

В продаже офисное помещение площадью 759 квадратных метров в недавно отреконструированном бизнес-центре "Нега". .. подробнее

Презентация по предложению

Собираете информацию? Получите подробную презентацию в удобном формате!

Посмотреть все похожие предложения
Отнеситесь рационально к процессу поиска нового офиса!

Просто ответьте на 3 вопроса, и наши специалисты сами предложат оптимальные варианты под ваш бюджет

.