8.2
Смотреть все фото
БЕЗ КОМИССИИ ID: 1378142 Рейтинг9.5 КлассА
Бизнес-центр «ВТБ Арена»

Аренда офиса 481 м²

Москва, Ленинградский проспект, 36 с11

Динамо → 451 м
~ 5 мин
Арендная плата в месяц 3 360 000 ₽ 83 800 ₽/м² в год С учётом НДС

Презентация по предложению

Собираете информацию? Получите подробную презентацию в удобном формате!

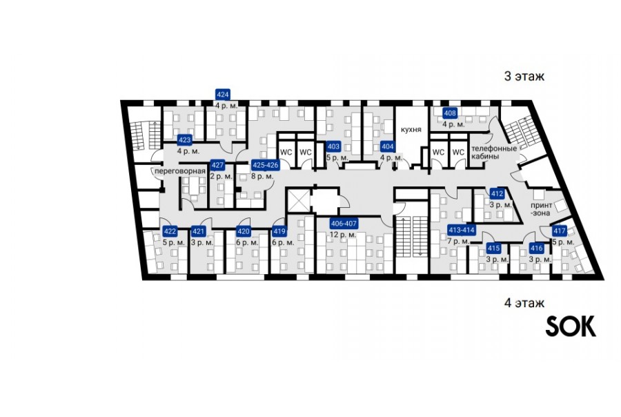
Площадь 481 м²
Состояние Готово к въезду
Планировка Смешанная
Этаж 4

Описание

Преимущества
  • Класс А
  • Пешком от метро
  • Кондиционирование и вентиляция
  • Свой паркинг
Предлагается в аренду высококачественный сервисный офис на 84 рабочих места в бизнес-центре "ВТБ Арена".

Сервисный офис - это современное офисное решение. Высококлассная дизайнерская отделка, полностью укомплектованные рабочие места, мягкие зоны отдыха, переговорные комнаты - это готовый к работе офис. Ежедневная уборка, обеспечение расходными материалами, включая кухни и санузлы, любая АХО-поддержка - это сервис, который уже включен в стоимость.

Услуги, включенные в арендную плату:
- Качественная мебель для комфортной работы
- Бронирование переговорных комнат
- Печать, IT-услуги и техническое обслуживание офиса
- Зоны отдыха, чай, кофе, вода
- Пополнение расходных материалов
- Ежедневная уборка офиса
- Высокоскоростной интернет

Офис класса А:
- Офис с отделкой, полностью готов к аренде
- Вентиляция: Приточно-вытяжная вентиляция
- Кондиционирование: центральное
- Презентабельный центральный ресепшн
- Круглосуточная охрана и видеонаблюдение

О бизнес-центре "ВТБ Арена" :
Москва, САО, Ленинградский проспект, 36 с11

Удобное расположение здания для всех видов транспорта:
- Автомобиль: близость транспортных магистралей, таких как Ленинградский проспект, Третье Транспортное Кольцо, Бутырская улица и других.
- Возможность аренды парковочных мест.
- Ближайшее метро: от метро "Динамо" всего 4 мин пешком

Возможность заключения контракта в соответствии с 44ФЗ по госзакупкам.

Если данное предложение подходит Вашему запросу:

1. Мы подготовили презентацию с информацией о помещении, фотографиями и планировкой, чтобы Вы могли поделиться ей с коллегами или руководством. Попросите об этом нашего менеджера по телефону в объявлении.
2. Мы готовы ответить на любые Ваши вопросы о помещении и коммерческих условиях аренды.
3. Оперативно организуем просмотр помещения с менеджерами на объекте или подготовим виртуальный тур.

Вы можете позвонить нам в любое время. Мы ответим на Ваши вопросы по будням до 19:00, а поздно вечером или в выходные зафиксируем Ваш контакт и перезвоним в рабочее время.

Коммерческие условия

Арендная плата 3 360 030 ₽
Ставка арендной платы 83 800 ₽ м²/год
Эксплуатационные расходы Включены в ставку
Налоги С учётом НДС
Тип договора Субаренда
Срок договора от 11 месяцев
Размер платежей 1 месяц
Обеспечительный платеж 2 месяц
Статус Свободен

О бизнес-центре

Класс А
Этажность 23
Лифты Есть
Общая площадь 275 000 м²
Год постройки 2016
Паркинг Подземный
Вентиляция приточно-вытяжная
Кондиционирование центральное
Телекоммуникации Интернет/Телефония

Расположение

Подробная презентацию по предложению

Собираете информацию? Получите подробную презентацию в удобном формате, чтобы обсудить вариант с коллегами или переслать руководству!

Похожие предложения в других зданиях

БЕЗ КОМИССИИ ID: 1305556 Рейтинг9.7 КлассА

Москва, Лесная улица, 5сБ

Белорусская → 88 м
~ 1 мин
Арендная плата в месяц 2 956 227 ₽ 76 000 ₽/м² в год С учётом НДС
Характеристики 467 м² 15 этаж Готово к въезду
Преимущества
  • Класс А
  • Пешком от метро
  • Кондиционирование и вентиляция
  • Свой паркинг
  • Несколько провайдеров связи
  • Развитая инфраструктура

Сдается в долгосрочную аренду помещение под офис класса А общей площадью 467 квадр. метров в бизнес-центре "Белая Площадь"... подробнее

Презентация по предложению

Собираете информацию? Получите подробную презентацию в удобном формате!

БЕЗ КОМИССИИ ID: 1302573 Рейтинг9.5 КлассА

Москва, Лесная улица, 7

Белорусская → 238 м
~ 2 мин
Арендная плата в месяц 3 047 499 ₽ 78 100 ₽/м² в год С учётом НДС
Характеристики 468 м² 2 этаж Готово к въезду
Преимущества
  • Класс А
  • Пешком от метро
  • Кондиционирование и вентиляция
  • Свой паркинг
  • Развитая инфраструктура

Предлагается в прямую аренду офисный блок класса А площадью 468 квадр. метров в бизнес-центре "Белые сады"... подробнее

>

Виртуальный тур

Презентация по предложению

Собираете информацию? Получите подробную презентацию в удобном формате!

БЕЗ КОМИССИИ ID: 1283170 Рейтинг9.5 КлассА

Москва, Лесная улица, 7

Белорусская → 238 м
~ 2 мин
Арендная плата в месяц 2 856 000 ₽ 75 800 ₽/м² в год С учётом НДС
Характеристики 452 м² 11 этаж Готово к въезду
Преимущества
  • Класс А
  • Пешком от метро
  • Кондиционирование и вентиляция
  • Свой паркинг
  • Развитая инфраструктура

Собственник сдает в долгосрочную прямую аренду офисный блок класса А общей площадью 452 квадр. метров в бизнес-центре "Белые сады"... подробнее

>

Виртуальный тур

Презентация по предложению

Собираете информацию? Получите подробную презентацию в удобном формате!

БЕЗ КОМИССИИ ID: 1286449 Рейтинг8.0 КлассB+

Москва, Новолесная улица, 2

Белорусская → 691 м
~ 7 мин
Арендная плата в месяц 2 884 181 ₽ 83 000 ₽/м² в год С учётом НДС
Характеристики 417 м² 3 этаж Готово к въезду
Преимущества
  • Класс B+
  • Пешком от метро
  • Кондиционирование и вентиляция
  • Свой паркинг
  • Несколько провайдеров связи
  • Развитая инфраструктура

Сдается в долгосрочную аренду высококачественный сервисный офис на 69 рабочих мест в бизнес-центре "Бригантина Холл"... подробнее

>

Виртуальный тур

Презентация по предложению

Собираете информацию? Получите подробную презентацию в удобном формате!

БЕЗ КОМИССИИ ID: 1317485 Рейтинг7.9 КлассB

Москва, Большая Грузинская улица, 12 с2

Баррикадная → 551 м
~ 6 мин
Арендная плата в месяц 3 885 015 ₽ 91 800 ₽/м² в год С учётом НДС
Характеристики 508 м² 5 этаж Готово к въезду
Преимущества
  • Класс B
  • Пешком от метро
  • Кондиционирование и вентиляция
  • Свой паркинг
  • Несколько провайдеров связи

Сдается в долгосрочную аренду высококачественный сервисный офис на 84 рабочих места в историческом недавно отреконструированном бизнес-центре "Николаевский"... подробнее

>

Виртуальный тур

Презентация по предложению

Собираете информацию? Получите подробную презентацию в удобном формате!

Посмотреть все похожие предложения
Отнеситесь рационально к процессу поиска нового офиса!

Просто ответьте на 3 вопроса, и наши специалисты сами предложат оптимальные варианты под ваш бюджет

.