8.2
Смотреть все фото
БЕЗ КОМИССИИ ID: 1328516 Рейтинг8.5 КлассB+
Бизнес-центр «W Plaza 2»

Продажа офиса 194 м²

Москва, Варшавское шоссе, 1 с6

Тульская → 832 м
~ 8 мин
Стоимость 48.5 млн ₽ 250 000 ₽/м²

Презентация по предложению

Собираете информацию? Получите подробную презентацию в удобном формате!

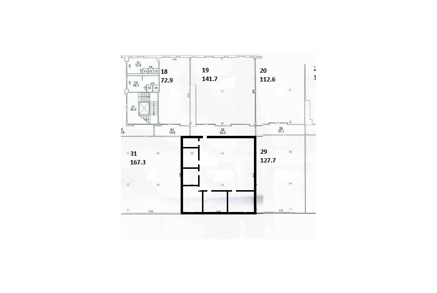
Площадь 194 м²
Состояние Готово к въезду
Планировка Смешанная
Этаж 2

Описание

Преимущества
  • Класс B+
  • Пешком от метро
  • Кондиционирование и вентиляция
  • Свой паркинг
  • Развитая инфраструктура
Продается офисный блок общей площадью 194 квадратных метров в бизнес-центре "W Plaza 2".

Помещение можно адаптировать под любой бизнес благодаря функциональной планировке - идеальный баланс комфорта и экономической выгоды. Оптимальное решение для стабильного бизнеса или выгодных инвестиций.

Офис класса B+:
- Офис с отделкой, полностью готов к въезду
- Вентиляция: Приточно-вытяжная вентиляция
- Кондиционирование: центральное

О офисном центре:
Москва, ЮАО, Варшавское шоссе, 1 с6

Удобная локация здания:
- Автомобиль: близость транспортных магистралей, таких как Варшавское шоссе, Третье Транспортное Кольцо, Севастопольский проспект и других.
- Возможность аренды парковочных мест.
- Ближайшее метро: от метро "Тульская" всего 8 мин пешком



Что еще можно узнать о предложении:

1. Мы подготовили презентацию с информацией о помещении, фотографиями и планировкой, чтобы Вы могли поделиться ей с коллегами или руководством. Попросите об этом нашего менеджера по телефону в объявлении.
2. Ответим на любые Ваши вопросы, готовы обсуждать любые предложения по коммерческим условиям продажи помещения.

Звоните нам в любое время. По будням мы сможем ответить на Ваши вопросы до 19:00. В выходные или вечернее время мы передадим Ваш контакт нашему менеджеру.

О бизнес-центре

Класс B+
Этажность 4
Лифты Есть
Общая площадь 23 000 м²
Год постройки 2013
Паркинг Наземный
Вентиляция приточно-вытяжная
Кондиционирование центральное
Телекоммуникации Интернет/Телефония

Расположение

Подробная презентацию по предложению

Собираете информацию? Получите подробную презентацию в удобном формате, чтобы обсудить вариант с коллегами или переслать руководству!

Похожие предложения в других зданиях

БЕЗ КОМИССИИ ID: 1376494 Рейтинг8.4 КлассB+

Москва, Варшавское шоссе, 1

Тульская → 763 м
~ 8 мин
Стоимость 1 365 763 000 ₽ 499 000 ₽/м²
Характеристики 2 737 м² 5 этаж Готово к въезду
Преимущества
  • Класс B+
  • Пешком от метро
  • Кондиционирование и вентиляция
  • Свой паркинг
  • Развитая инфраструктура

Продается офисное помещение общей площадью 2737 кв. метров в бизнес-центре "W Plaza". .. подробнее

Презентация по предложению

Собираете информацию? Получите подробную презентацию в удобном формате!

БЕЗ КОМИССИИ ID: 1376496 Рейтинг8.4 КлассB+

Москва, Варшавское шоссе, 1

Тульская → 763 м
~ 8 мин
Стоимость 748 500 000 ₽ 499 000 ₽/м²
Характеристики 1 500 м² 5 этаж Готово к въезду
Преимущества
  • Класс B+
  • Пешком от метро
  • Кондиционирование и вентиляция
  • Свой паркинг
  • Развитая инфраструктура

В продаже офисный блок площадью 1500 квадратных метров в бизнес-центре "W Plaza". .. подробнее

Презентация по предложению

Собираете информацию? Получите подробную презентацию в удобном формате!

БЕЗ КОМИССИИ ID: 1376495 Рейтинг8.4 КлассB+

Москва, Варшавское шоссе, 1

Тульская → 763 м
~ 8 мин
Стоимость 499 000 000 ₽ 499 000 ₽/м²
Характеристики 1 000 м² 5 этаж Готово к въезду
Преимущества
  • Класс B+
  • Пешком от метро
  • Кондиционирование и вентиляция
  • Свой паркинг
  • Развитая инфраструктура

В продаже офисное помещение общей площадью 1000 кв.м в бизнес-центре "W Plaza". .. подробнее

Презентация по предложению

Собираете информацию? Получите подробную презентацию в удобном формате!

БЕЗ КОМИССИИ ID: 1376641 Рейтинг8.4 КлассB+

Москва, Варшавское шоссе, 1

Тульская → 763 м
~ 8 мин
Стоимость 29 253 000 ₽ 199 000 ₽/м²
Характеристики 147 м² 7 этаж Готово к въезду
Преимущества
  • Класс B+
  • Пешком от метро
  • Кондиционирование и вентиляция
  • Свой паркинг
  • Развитая инфраструктура

В продаже офисный блок площадью 147 кв. метров в бизнес-центре "W Plaza". .. подробнее

Презентация по предложению

Собираете информацию? Получите подробную презентацию в удобном формате!

БЕЗ КОМИССИИ ID: 1317921 Рейтинг3.5 КлассB

Москва, Варшавское шоссе, 5 к1

Тульская → 1.01 км
~ 10 мин
Стоимость 400 000 207 ₽ 364 600 ₽/м²
Характеристики 1 097 м² -1 - 3 этаж Под отделку
Преимущества
  • Класс B
  • Пешком от метро
  • Кондиционирование и вентиляция
  • Свой паркинг
  • Несколько провайдеров связи

Продается офисный блок площадью 1097 кв. метров в бизнес-центре. .. подробнее

Презентация по предложению

Собираете информацию? Получите подробную презентацию в удобном формате!

Посмотреть все похожие предложения
Отнеситесь рационально к процессу поиска нового офиса!

Просто ответьте на 3 вопроса, и наши специалисты сами предложат оптимальные варианты под ваш бюджет

.