8.2
Смотреть все фото
БЕЗ КОМИССИИ ID: 248430 Рейтинг8.1 КлассB+
Бизнес-центр «West Park»

Аренда офиса 1017 м²

Москва, Очаковское шоссе, 34

Озёрная → 4.49 км
~ 15 мин
Арендная плата в месяц 1 398 400 ₽ 16 500 ₽/м² в год С учётом НДС

Презентация по предложению

Собираете информацию? Получите подробную презентацию в удобном формате!

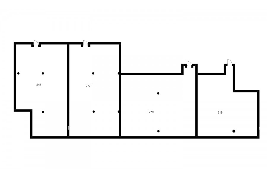
Площадь 1 017 м²
Состояние Под отделку
Планировка Открытая
Этаж 8

Описание

Преимущества
  • Класс B+
  • Кондиционирование и вентиляция
  • Свой паркинг
  • Несколько провайдеров связи
Сдаем в долгосрочную аренду офис класса B+ площадью 1017 кв.м в бизнес-центре "West Park".

Москва, ЗАО, Очаковское шоссе, 34

Характеристики местоположения:
- Автомобиль: близость транспортных магистралей, таких как МКАД, Мичуринский проспект и других.
- Возможность аренды парковочных мест.
- Ближайшее метро: метро "Озёрная", далее городской транспорт до здания

Офис класса B+:
- Офис без отделки
- Вентиляция: Приточно-вытяжная вентиляция
- Кондиционирование: центральное
- Презентабельный центральный рецепшн
- Круглосуточная охрана и видеонаблюдение

Возможность заключения контракта в соответствии с 44ФЗ по госзакупкам.

Что еще можно узнать о предложении:

1. Получите презентацию в течение 10 минут в Whatsapp или на почту с фотографиями и планировкой, чтобы обсудить данный вариант с коллегами или переслать руководству. Для этого позвоните по телефону, указанному в объявлении.
2. Задайте любые вопросы менеджеру по телефону, готовы обсуждать любые предложения по финансовым условиям договора аренды.
3. Покажем помещение в удобное для Вас время с менеджером в здании, при необходимости подготовим виртуальный тур.

Звоните нам в любое время. По будням мы сможем ответить на Ваши вопросы до 19:00. В выходные или вечернее время мы передадим Ваш контакт нашему менеджеру по аренде.

Коммерческие условия

Арендная плата 1 271 250 ₽
Ставка арендной платы 16 500 ₽ м²/год
Эксплуатационные расходы Включены в ставку
Налоги С учётом НДС
Тип договора Прямая аренда
Срок договора от 11 месяцев
Размер платежей 1 месяц
Обеспечительный платеж 1 месяц
Статус Сдан

О бизнес-центре

Класс B+
Этажность 8
Лифты Есть
Общая площадь 39 000 м²
Год постройки 2011
Паркинг Наземный
Вентиляция приточно-вытяжная
Кондиционирование центральное
Телекоммуникации Интернет/Телефония

Расположение

Подробная презентацию по предложению

Собираете информацию? Получите подробную презентацию в удобном формате, чтобы обсудить вариант с коллегами или переслать руководству!

Похожие предложения в других зданиях

БЕЗ КОМИССИИ ID: 1257453 Рейтинг6.4 КлассB

Москва, Очаковское шоссе, 10к2 с1

Аминьевская → 1.2 км
~ 12 мин
Арендная плата в месяц 1 558 333 ₽ 18 700 ₽/м² в год С учётом НДС
Характеристики 1 000 м² 4 этаж Готово к въезду
Преимущества
  • Класс B
  • Пешком от метро
  • Кондиционирование и вентиляция

Предлагаем в прямую аренду офис класса B площадью 1000 квадр. метров в бизнес-центре... подробнее

Презентация по предложению

Собираете информацию? Получите подробную презентацию в удобном формате!

БЕЗ КОМИССИИ ID: 1327458 Рейтинг8.0 КлассB+

Москва, Рябиновая улица, 26 с1

Давыдково → 5.09 км
~ 21 мин
Арендная плата в месяц 1 224 984 ₽ 17 000 ₽/м² в год С учётом НДС
Характеристики 865 м² 2 - 5 этаж Готово к въезду
Преимущества
  • Класс B+
  • Кондиционирование и вентиляция
  • Свой паркинг

Предлагаем в долгосрочную аренду офисное помещение класса B+ общей площадью 865 квадратных метров в бизнес-центре "West Plaza"... подробнее

Презентация по предложению

Собираете информацию? Получите подробную презентацию в удобном формате!

БЕЗ КОМИССИИ ID: 48750 Рейтинг7.1 КлассB

Москва, Озёрная улица, 42

Озёрная → 341 м
~ 3 мин
Арендная плата в месяц 1 350 000 ₽ 16 200 ₽/м² в год С учётом НДС
Характеристики 1 000 м² 3 этаж Готово к въезду
Преимущества
  • Класс B
  • Пешком от метро
  • Кондиционирование и вентиляция
  • Свой паркинг
  • Несколько провайдеров связи
  • Развитая инфраструктура

Собственник сдает в долгосрочную аренду офис класса B площадью 1000 квадр. метров в бизнес-центре... подробнее

Презентация по предложению

Собираете информацию? Получите подробную презентацию в удобном формате!

БЕЗ КОМИССИИ ID: 264814 Рейтинг7.1 КлассB

Москва, Озёрная улица, 42

Озёрная → 341 м
~ 3 мин
Арендная плата в месяц 1 215 000 ₽ 16 200 ₽/м² в год С учётом НДС
Характеристики 900 м² 4 этаж Готово к въезду
Преимущества
  • Класс B
  • Пешком от метро
  • Кондиционирование и вентиляция
  • Свой паркинг
  • Несколько провайдеров связи
  • Развитая инфраструктура

Сдается в долгосрочную прямую аренду офисное помещение класса B площадью 900 квадратных метров в бизнес-центре... подробнее

Презентация по предложению

Собираете информацию? Получите подробную презентацию в удобном формате!

БЕЗ КОМИССИИ ID: 201533 Рейтинг7.4 КлассА

улица Мичуринский Проспект, Олимпийская Деревня, 1к4

Мичуринский проспект → 1.51 км
~ 15 мин
Арендная плата в месяц 1 201 667 ₽ 14 000 ₽/м² в год С учётом НДС
Характеристики 1 030 м² 2 - 4 этаж Готово к въезду
Преимущества
  • Класс А
  • Пешком от метро
  • Кондиционирование и вентиляция
  • Свой паркинг
  • Развитая инфраструктура

Предлагается в долгосрочную аренду офис класса А общей площадью 1030 кв. метров в бизнес-центре "Чемпион-парк"... подробнее

Презентация по предложению

Собираете информацию? Получите подробную презентацию в удобном формате!

Посмотреть все похожие предложения
Отнеситесь рационально к процессу поиска нового офиса!

Просто ответьте на 3 вопроса, и наши специалисты сами предложат оптимальные варианты под ваш бюджет

.