8.2
Смотреть все фото
БЕЗ КОМИССИИ ID: 1377943 Рейтинг8.1 КлассB+
Бизнес-центр «West Park»

Продажа офиса 251 м²

Москва, Очаковское шоссе, 34

Озёрная → 4.49 км
~ 15 мин
Стоимость 45.18 млн ₽ 180 000 ₽/м²

Презентация по предложению

Собираете информацию? Получите подробную презентацию в удобном формате!

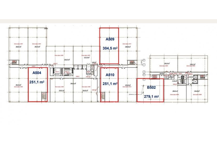
Площадь 251 м²
Состояние Готово к въезду
Планировка Открытая
Этаж 5

Описание

Преимущества
  • Класс B+
  • Кондиционирование и вентиляция
  • Свой паркинг
  • Несколько провайдеров связи
В продаже офис общей площадью 251 кв.м в бизнес-центре "West Park".

Помещение можно адаптировать под любой бизнес благодаря функциональной планировке - идеальный баланс комфорта и экономической выгоды. Оптимальное решение для стабильного бизнеса или выгодных инвестиций.

Офис класса B+:
- Помещение с отделкой, готово к въезду
- Вентиляция: Приточно-вытяжная вентиляция
- Кондиционирование: центральное

О офисном центре:
Москва, ЗАО, Очаковское шоссе, 34

Характеристики местоположения:
- Автомобиль: близость транспортных магистралей, таких как МКАД, Мичуринский проспект и других.
- Возможность аренды парковочных мест.
- Ближайшее метро: метро "Озёрная", далее городской транспорт до здания



Что еще можно узнать о предложении:

1. Мы отправим Вам подробную презентацию с планировкой и фотографиями в течение 10 минут после звонка, чтобы Вы могли поделиться информацией с руководством или с коллегами.
2. Мы готовы ответить на любые Ваши вопросы о помещении и коммерческих условиях продажи.

Вы можете позвонить нам в любое время. Мы ответим на Ваши вопросы по будням до 19:00, а поздно вечером или в выходные сможем передать Ваш контакт нашему менеджеру.

О бизнес-центре

Класс B+
Этажность 8
Лифты Есть
Общая площадь 39 000 м²
Год постройки 2011
Паркинг Наземный
Вентиляция приточно-вытяжная
Кондиционирование центральное
Телекоммуникации Интернет/Телефония

Расположение

Подробная презентацию по предложению

Собираете информацию? Получите подробную презентацию в удобном формате, чтобы обсудить вариант с коллегами или переслать руководству!

Похожие предложения в других зданиях

БЕЗ КОМИССИИ ID: 1327498 Рейтинг8.0 КлассА

Москва, Рябиновая улица, 44

Говорово → 2.71 км
~ 27 мин
Стоимость 453 415 000 ₽ 295 000 ₽/м²
Характеристики 1 537 м² 26 этаж Под отделку
Преимущества
  • Класс А
  • Пешком от метро
  • Новое строительство
  • Кондиционирование и вентиляция
  • Свой паркинг

В продаже офис общей площадью 1537 кв. метров в строящемся бизнес-центре "LINK". Год ввода в экслуатацию 2028. .. подробнее

Презентация по предложению

Собираете информацию? Получите подробную презентацию в удобном формате!

БЕЗ КОМИССИИ ID: 1320653 Рейтинг8.0 КлассА

Москва, Рябиновая улица, 44

Говорово → 2.71 км
~ 27 мин
Стоимость 445 730 000 ₽ 290 000 ₽/м²
Характеристики 1 537 м² 25 этаж Под отделку
Преимущества
  • Класс А
  • Пешком от метро
  • Новое строительство
  • Кондиционирование и вентиляция
  • Свой паркинг

Продается офис общей площадью 1537 кв. метров в строящемся бизнес-центре "LINK". Год ввода в экслуатацию 2028. .. подробнее

Презентация по предложению

Собираете информацию? Получите подробную презентацию в удобном формате!

БЕЗ КОМИССИИ ID: 1320652 Рейтинг8.0 КлассА

Москва, Рябиновая улица, 44

Говорово → 2.71 км
~ 27 мин
Стоимость 434 971 000 ₽ 283 000 ₽/м²
Характеристики 1 537 м² 24 этаж Под отделку
Преимущества
  • Класс А
  • Пешком от метро
  • Новое строительство
  • Кондиционирование и вентиляция
  • Свой паркинг

Продается офисное помещение общей площадью 1537 кв. метров в строящемся бизнес-центре "LINK". Год ввода в экслуатацию 2028. .. подробнее

Презентация по предложению

Собираете информацию? Получите подробную презентацию в удобном формате!

БЕЗ КОМИССИИ ID: 1320651 Рейтинг8.0 КлассА

Москва, Рябиновая улица, 44

Говорово → 2.71 км
~ 27 мин
Стоимость 430 360 000 ₽ 280 000 ₽/м²
Характеристики 1 537 м² 23 этаж Под отделку
Преимущества
  • Класс А
  • Пешком от метро
  • Новое строительство
  • Кондиционирование и вентиляция
  • Свой паркинг

В продаже офисное помещение площадью 1537 кв.м в строящемся бизнес-центре "LINK". Год ввода в экслуатацию 2028. .. подробнее

Презентация по предложению

Собираете информацию? Получите подробную презентацию в удобном формате!

БЕЗ КОМИССИИ ID: 1320650 Рейтинг8.0 КлассА

Москва, Рябиновая улица, 44

Говорово → 2.71 км
~ 27 мин
Стоимость 425 749 000 ₽ 277 000 ₽/м²
Характеристики 1 537 м² 22 этаж Под отделку
Преимущества
  • Класс А
  • Пешком от метро
  • Новое строительство
  • Кондиционирование и вентиляция
  • Свой паркинг

Продается офис площадью 1537 кв.м в строящемся бизнес-центре "LINK". Год ввода в экслуатацию 2028. .. подробнее

Презентация по предложению

Собираете информацию? Получите подробную презентацию в удобном формате!

Посмотреть все похожие предложения
Отнеситесь рационально к процессу поиска нового офиса!

Просто ответьте на 3 вопроса, и наши специалисты сами предложат оптимальные варианты под ваш бюджет

.