8.2
Смотреть все фото
БЕЗ КОМИССИИ ID: 1377934 Рейтинг8.1 КлассB+
Бизнес-центр «West Park»

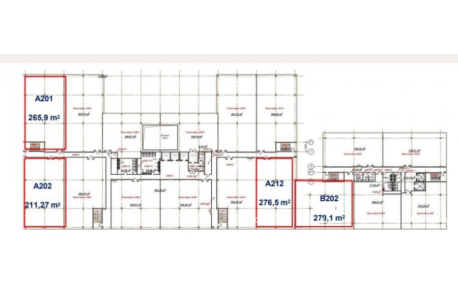
Продажа офиса 266 м²

Москва, Очаковское шоссе, 34

Озёрная → 4.49 км
~ 15 мин
Стоимость 47.88 млн ₽ 180 000 ₽/м²

Презентация по предложению

Собираете информацию? Получите подробную презентацию в удобном формате!

Площадь 266 м²
Состояние Готово к въезду
Планировка Открытая
Этаж 2

Описание

Преимущества
  • Класс B+
  • Кондиционирование и вентиляция
  • Свой паркинг
  • Несколько провайдеров связи
Продается офисный блок площадью 266 кв. метров в бизнес-центре "West Park".

Помещение можно адаптировать под любой бизнес благодаря функциональной планировке - идеальный баланс комфорта и экономической выгоды. Оптимальное решение для стабильного бизнеса или выгодных инвестиций.

Офис класса B+:
- Помещение готово к въезду
- Вентиляция: Приточно-вытяжная вентиляция
- Кондиционирование: центральное

О офисном центре:
Москва, ЗАО, Очаковское шоссе, 34

Характеристики местоположения:
- Автомобиль: близость транспортных магистралей, таких как Мичуринский проспект, МКАД и других.
- Возможность аренды парковочных мест.
- Ближайшее метро: метро "Озёрная", далее городской транспорт до здания



Если предложение предварительно Вам подходит:

1. Мы подготовили презентацию с информацией о помещении, фотографиями и планировкой, чтобы Вы могли поделиться ей с коллегами или руководством. Попросите об этом нашего менеджера по телефону в объявлении.
2. Ответим на любые Ваши вопросы, готовы обсуждать любые предложения по коммерческим условиям продажи помещения.

Звоните нам в любое время. По будням мы сможем ответить на Ваши вопросы до 19:00. В выходные или вечернее время мы передадим Ваш контакт нашему менеджеру.

О бизнес-центре

Класс B+
Этажность 8
Лифты Есть
Общая площадь 39 000 м²
Год постройки 2011
Паркинг Наземный
Вентиляция приточно-вытяжная
Кондиционирование центральное
Телекоммуникации Интернет/Телефония

Расположение

Подробная презентацию по предложению

Собираете информацию? Получите подробную презентацию в удобном формате, чтобы обсудить вариант с коллегами или переслать руководству!

Похожие предложения в других зданиях

БЕЗ КОМИССИИ ID: 1327498 Рейтинг8.0 КлассА

Москва, Рябиновая улица, 44

Говорово → 2.71 км
~ 27 мин
Стоимость 453 415 000 ₽ 295 000 ₽/м²
Характеристики 1 537 м² 26 этаж Под отделку
Преимущества
  • Класс А
  • Пешком от метро
  • Новое строительство
  • Кондиционирование и вентиляция
  • Свой паркинг

В продаже офис общей площадью 1537 кв. метров в строящемся бизнес-центре "LINK". Год ввода в экслуатацию 2028. .. подробнее

Презентация по предложению

Собираете информацию? Получите подробную презентацию в удобном формате!

БЕЗ КОМИССИИ ID: 1320653 Рейтинг8.0 КлассА

Москва, Рябиновая улица, 44

Говорово → 2.71 км
~ 27 мин
Стоимость 445 730 000 ₽ 290 000 ₽/м²
Характеристики 1 537 м² 25 этаж Под отделку
Преимущества
  • Класс А
  • Пешком от метро
  • Новое строительство
  • Кондиционирование и вентиляция
  • Свой паркинг

Продается офис общей площадью 1537 кв. метров в строящемся бизнес-центре "LINK". Год ввода в экслуатацию 2028. .. подробнее

Презентация по предложению

Собираете информацию? Получите подробную презентацию в удобном формате!

БЕЗ КОМИССИИ ID: 1320652 Рейтинг8.0 КлассА

Москва, Рябиновая улица, 44

Говорово → 2.71 км
~ 27 мин
Стоимость 434 971 000 ₽ 283 000 ₽/м²
Характеристики 1 537 м² 24 этаж Под отделку
Преимущества
  • Класс А
  • Пешком от метро
  • Новое строительство
  • Кондиционирование и вентиляция
  • Свой паркинг

Продается офисное помещение общей площадью 1537 кв. метров в строящемся бизнес-центре "LINK". Год ввода в экслуатацию 2028. .. подробнее

Презентация по предложению

Собираете информацию? Получите подробную презентацию в удобном формате!

БЕЗ КОМИССИИ ID: 1320651 Рейтинг8.0 КлассА

Москва, Рябиновая улица, 44

Говорово → 2.71 км
~ 27 мин
Стоимость 430 360 000 ₽ 280 000 ₽/м²
Характеристики 1 537 м² 23 этаж Под отделку
Преимущества
  • Класс А
  • Пешком от метро
  • Новое строительство
  • Кондиционирование и вентиляция
  • Свой паркинг

В продаже офисное помещение площадью 1537 кв.м в строящемся бизнес-центре "LINK". Год ввода в экслуатацию 2028. .. подробнее

Презентация по предложению

Собираете информацию? Получите подробную презентацию в удобном формате!

БЕЗ КОМИССИИ ID: 1320650 Рейтинг8.0 КлассА

Москва, Рябиновая улица, 44

Говорово → 2.71 км
~ 27 мин
Стоимость 425 749 000 ₽ 277 000 ₽/м²
Характеристики 1 537 м² 22 этаж Под отделку
Преимущества
  • Класс А
  • Пешком от метро
  • Новое строительство
  • Кондиционирование и вентиляция
  • Свой паркинг

Продается офис площадью 1537 кв.м в строящемся бизнес-центре "LINK". Год ввода в экслуатацию 2028. .. подробнее

Презентация по предложению

Собираете информацию? Получите подробную презентацию в удобном формате!

Посмотреть все похожие предложения
Отнеситесь рационально к процессу поиска нового офиса!

Просто ответьте на 3 вопроса, и наши специалисты сами предложат оптимальные варианты под ваш бюджет

.