8.2
Смотреть все фото
БЕЗ КОМИССИИ ID: 1379635 Рейтинг9.0 КлассА
Бизнес-центр «WEST PIER»

Продажа офиса 452 м²

Москва, Причальный проезд, 4 к2

Шелепиха → 659 м
~ 7 мин
Стоимость 203.4 млн ₽ 450 000 ₽/м²

Презентация по предложению

Собираете информацию? Получите подробную презентацию в удобном формате!

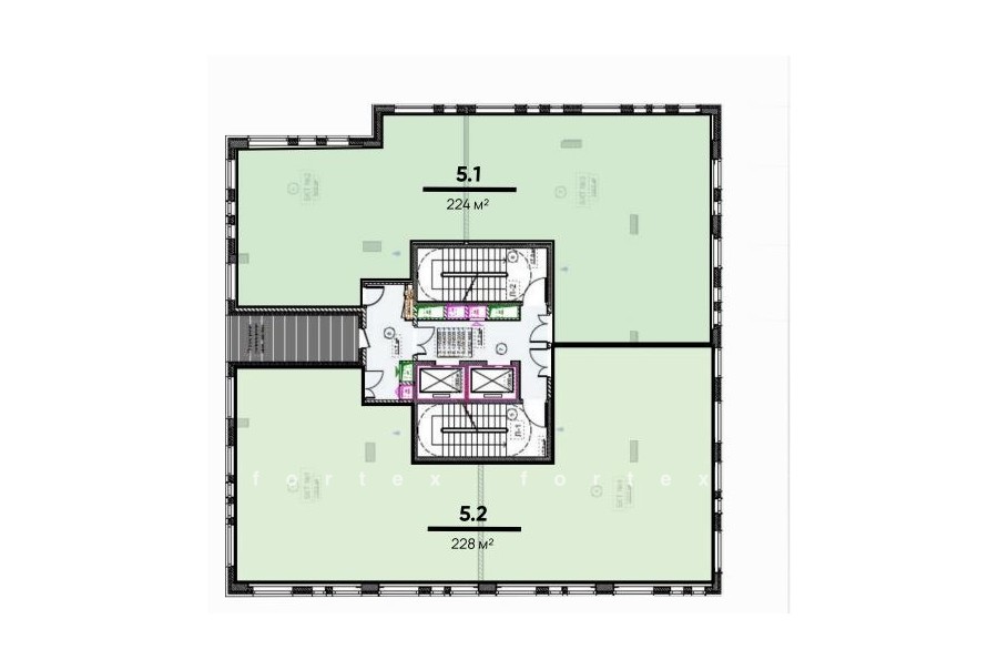
Площадь 452 м²
Состояние Под отделку
Планировка Открытая
Этаж 5

Описание

Преимущества
  • Класс А
  • Пешком от метро
  • Кондиционирование и вентиляция
  • Свой паркинг
Продается офис общей площадью 452 квадратных метров в бизнес-центре "WEST PIER".

Помещение можно адаптировать под любой бизнес благодаря функциональной планировке - идеальный баланс комфорта и экономической выгоды. Оптимальное решение для стабильного бизнеса или выгодных инвестиций.

Офис класса А:
- Офис в состоянии shell & core
- Вентиляция: Приточно-вытяжная вентиляция
- Кондиционирование: центральное

О офисном центре:
Москва, СЗАО, Причальный проезд, 4 к2

Удобная локация здания:
- Автомобиль: близость транспортных магистралей, таких как Звенигородское шоссе, Третье Транспортное Кольцо и других.
- Возможность аренды парковочных мест.
- Ближайшее метро: от метро "Шелепиха" всего 7 мин пешком



Если данное предложение подходит Вашему запросу:

1. Получите презентацию в течение 10 минут в Whatsapp или на почту с фотографиями и планировкой, чтобы обсудить данный вариант с коллегами или переслать руководству. Для этого позвоните по телефону, указанному в объявлении.
2. Мы готовы ответить на любые Ваши вопросы о помещении и коммерческих условиях продажи.

Вы можете позвонить нам в любое время. Мы ответим на Ваши вопросы по будням до 19:00, а поздно вечером или в выходные сможем передать Ваш контакт нашему менеджеру.

О бизнес-центре

Класс А
Этажность 12
Лифты Есть
Общая площадь 7 993 м²
Паркинг Подземный
Вентиляция приточно-вытяжная
Кондиционирование центральное
Телекоммуникации Интернет/Телефония

Расположение

Подробная презентацию по предложению

Собираете информацию? Получите подробную презентацию в удобном формате, чтобы обсудить вариант с коллегами или переслать руководству!

Похожие предложения в других зданиях

БЕЗ КОМИССИИ ID: 300997 Рейтинг7.8 КлассB+

Москва, 1-й Магистральный тупик, 11 с1

Хорошёвская → 1.75 км
~ 17 мин
Стоимость 57 000 000 ₽ 300 000 ₽/м²
Характеристики 190 м² 3 этаж Готово к въезду
Преимущества
  • Класс B+
  • Пешком от метро
  • Кондиционирование и вентиляция
  • Свой паркинг
  • Несколько провайдеров связи
  • Развитая инфраструктура

В продаже офисный блок общей площадью 190 кв.м в бизнес-центре "Ярд". .. подробнее

Презентация по предложению

Собираете информацию? Получите подробную презентацию в удобном формате!

БЕЗ КОМИССИИ ID: 1373856 Рейтинг8.5 КлассB+

Москва, 1-й Магистральный тупик, 5А

Беговая → 1.39 км
~ 14 мин
Стоимость 303 300 000 ₽ 300 000 ₽/м²
Характеристики 1 011 м² 4 этаж Готово к въезду
Преимущества
  • Класс B+
  • Пешком от метро
  • Кондиционирование и вентиляция

В продаже офисный блок общей площадью 1011 кв. метров в бизнес-центре "Магистраль Плаза". .. подробнее

Презентация по предложению

Собираете информацию? Получите подробную презентацию в удобном формате!

БЕЗ КОМИССИИ ID: 1372998 Рейтинг8.5 КлассB+

Москва, 1-й Магистральный тупик, 5А

Беговая → 1.39 км
~ 14 мин
Стоимость 186 999 696 ₽ 299 700 ₽/м²
Характеристики 624 м² 5 этаж Готово к въезду
Преимущества
  • Класс B+
  • Пешком от метро
  • Кондиционирование и вентиляция

Продается офисное помещение площадью 624 кв. метров в бизнес-центре "Магистраль Плаза". .. подробнее

Презентация по предложению

Собираете информацию? Получите подробную презентацию в удобном формате!

БЕЗ КОМИССИИ ID: 1380781 Рейтинг8.5 КлассB+

Москва, 1-й Магистральный тупик, 5А

Беговая → 1.39 км
~ 14 мин
Стоимость 138 000 000 ₽ 300 000 ₽/м²
Характеристики 460 м² 4 этаж Готово к въезду
Преимущества
  • Класс B+
  • Пешком от метро
  • Кондиционирование и вентиляция

В продаже офисное помещение площадью 460 кв. метров в бизнес-центре "Магистраль Плаза". .. подробнее

Презентация по предложению

Собираете информацию? Получите подробную презентацию в удобном формате!

БЕЗ КОМИССИИ ID: 1373855 Рейтинг8.5 КлассB+

Москва, 1-й Магистральный тупик, 5А

Беговая → 1.39 км
~ 14 мин
Стоимость 127 120 000 ₽ 280 000 ₽/м²
Характеристики 454 м² 8 этаж Готово к въезду
Преимущества
  • Класс B+
  • Пешком от метро
  • Кондиционирование и вентиляция

В продаже офис общей площадью 454 квадратных метров в бизнес-центре "Магистраль Плаза". .. подробнее

Презентация по предложению

Собираете информацию? Получите подробную презентацию в удобном формате!

Посмотреть все похожие предложения
Отнеситесь рационально к процессу поиска нового офиса!

Просто ответьте на 3 вопроса, и наши специалисты сами предложат оптимальные варианты под ваш бюджет

.