8.2
Смотреть все фото
БЕЗ КОМИССИИ ID: 1319313 Рейтинг8.0 КлассB+
Бизнес-центр «West Plaza»

Аренда офиса 529 м²

Москва, Рябиновая улица, 26 с1

Давыдково → 5.09 км
~ 21 мин
Арендная плата в месяц 1 322 500 ₽ 30 000 ₽/м² в год Упрощённая система налогообложения

Презентация по предложению

Собираете информацию? Получите подробную презентацию в удобном формате!

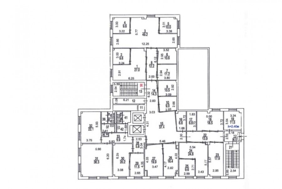
Площадь 529 м²
Состояние Готово к въезду
Планировка Кабинетная
Этаж 7

Описание

Преимущества
  • Класс B+
  • Кондиционирование и вентиляция
  • Свой паркинг
Предлагается в прямую аренду офисный блок класса B+ общей площадью 529 квадр. метров в бизнес-центре "West Plaza".

Москва, ЗАО, Рябиновая улица, 26 с1

Характеристики местоположения:
- Автомобиль: близость транспортных магистралей, таких как МКАД и других.
- Возможность аренды парковочных мест.
- Ближайшее метро: метро "Давыдково", далее городской транспорт до здания

Офис класса B+:
- Помещение готово к въезду
- Вентиляция: Приточно-вытяжная вентиляция
- Кондиционирование: центральное
- Презентабельный центральный ресепшн
- Круглосуточная охрана и видеонаблюдение

Возможность заключения контракта в соответствии с 44ФЗ по госзакупкам.

Если данное предложение подходит Вашему запросу:

1. Мы отправим Вам подробную презентацию с планировкой и фотографиями в течение 10 минут после звонка, чтобы Вы могли поделиться информацией с руководством или с коллегами.
2. Мы готовы ответить на любые Ваши вопросы о помещении и коммерческих условиях аренды.
3. Проводим показы ежедневно, договоримся на удобное для Вас время. Можем организовать виртуальный тур по офисному блоку.

Вы можете позвонить нам в любое время. Мы ответим на Ваши вопросы по будням до 19:00, а поздно вечером или в выходные зафиксируем Ваш контакт и перезвоним в рабочее время.

Коммерческие условия

Арендная плата 1 322 500 ₽
Ставка арендной платы 30 000 ₽ м²/год
Эксплуатационные расходы Включены в ставку
Налоги Упрощённая система налогообложения
Тип договора Прямая аренда
Срок договора от 11 месяцев
Размер платежей 1 месяц
Обеспечительный платеж 1 месяц
Статус Свободен

О бизнес-центре

Класс B+
Этажность 9
Лифты Есть
Общая площадь 44 119 м²
Год постройки 1989
Паркинг Наземный
Вентиляция приточно-вытяжная
Кондиционирование центральное
Телекоммуникации Интернет/Телефония

Расположение

Подробная презентацию по предложению

Собираете информацию? Получите подробную презентацию в удобном формате, чтобы обсудить вариант с коллегами или переслать руководству!

Похожие предложения в других зданиях

БЕЗ КОМИССИИ ID: 1329906 Рейтинг8.0 КлассB

Москва, Рябиновая улица, 41 к1

Давыдково → 5.79 км
~ 30 мин
Арендная плата в месяц 1 369 958 ₽ 30 500 ₽/м² в год С учётом НДС
Характеристики 539 м² 5 этаж Готово к въезду
Преимущества
  • Класс B
  • Кондиционирование и вентиляция
  • Свой паркинг

Сдается в долгосрочную аренду офисный блок класса B общей площадью 539 кв.м в бизнес-центре... подробнее

Презентация по предложению

Собираете информацию? Получите подробную презентацию в удобном формате!

БЕЗ КОМИССИИ ID: 1329907 Рейтинг8.0 КлассB

Москва, Рябиновая улица, 41 к1

Давыдково → 5.79 км
~ 30 мин
Арендная плата в месяц 1 336 917 ₽ 30 500 ₽/м² в год С учётом НДС
Характеристики 526 м² 6 этаж Готово к въезду
Преимущества
  • Класс B
  • Кондиционирование и вентиляция
  • Свой паркинг

Предлагаем в долгосрочную аренду офис класса B общей площадью 526 кв.м в бизнес-центре... подробнее

Презентация по предложению

Собираете информацию? Получите подробную презентацию в удобном формате!

БЕЗ КОМИССИИ ID: 1329905 Рейтинг8.0 КлассB

Москва, Рябиновая улица, 41 к1

Давыдково → 5.79 км
~ 30 мин
Арендная плата в месяц 1 329 292 ₽ 30 500 ₽/м² в год С учётом НДС
Характеристики 523 м² 4 этаж Готово к въезду
Преимущества
  • Класс B
  • Кондиционирование и вентиляция
  • Свой паркинг

Предлагаем в долгосрочную аренду офис класса B общей площадью 523 кв. метров в бизнес-центре... подробнее

Презентация по предложению

Собираете информацию? Получите подробную презентацию в удобном формате!

БЕЗ КОМИССИИ ID: 195261 Рейтинг5.4 КлассB

Москва, Сколковское шоссе, 25 с1

Кунцевская → 4.64 км
~ 28 мин
Арендная плата в месяц 1 471 500 ₽ 32 700 ₽/м² в год С учётом НДС
Характеристики 540 м² 3 этаж Готово к въезду
Преимущества
  • Класс B
  • Кондиционирование и вентиляция
  • Свой паркинг

Предлагаем в долгосрочную прямую аренду офисное помещение класса B площадью 540 кв. метров в бизнес-центре... подробнее

Презентация по предложению

Собираете информацию? Получите подробную презентацию в удобном формате!

БЕЗ КОМИССИИ ID: 1380715 Рейтинг5.4 КлассB

Москва, Сколковское шоссе, 25 с1

Кунцевская → 4.64 км
~ 28 мин
Арендная плата в месяц 1 250 000 ₽ 30 000 ₽/м² в год С учётом НДС
Характеристики 500 м² 3 этаж Готово к въезду
Преимущества
  • Класс B
  • Кондиционирование и вентиляция
  • Свой паркинг

Предлагается в долгосрочную прямую аренду офисный блок класса B площадью 500 кв.м в бизнес-центре... подробнее

Презентация по предложению

Собираете информацию? Получите подробную презентацию в удобном формате!

Посмотреть все похожие предложения
Отнеситесь рационально к процессу поиска нового офиса!

Просто ответьте на 3 вопроса, и наши специалисты сами предложат оптимальные варианты под ваш бюджет

.