8.2
Смотреть все фото
БЕЗ КОМИССИИ ID: 1163249 Рейтинг9.4 КлассА
Бизнес-центр «White Stone»

Аренда офиса 982 м²

Москва, 4-й Лесной переулок, 4

Белорусская → 215 м
~ 2 мин
Арендная плата в месяц 6 685 800 ₽ 81 700 ₽/м² в год С учётом НДС

Презентация по предложению

Собираете информацию? Получите подробную презентацию в удобном формате!

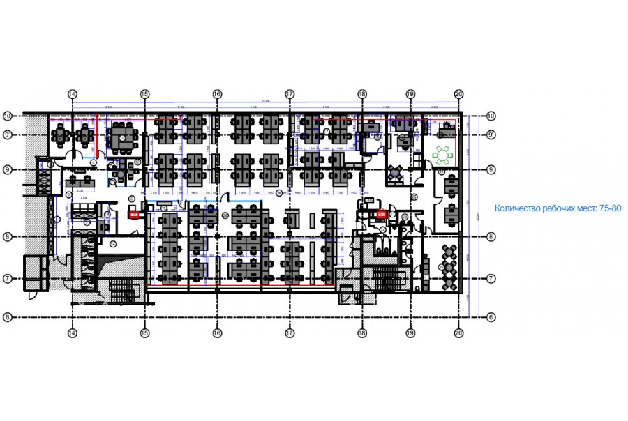
Площадь 982 м²
Состояние Готово к въезду
Планировка Смешанная
Этаж 2

Описание

Преимущества
  • Класс А
  • Пешком от метро
  • Кондиционирование и вентиляция
  • Свой паркинг
  • Развитая инфраструктура
Собственник сдает в прямую аренду помещение под офис класса А общей площадью 982 квадратных метров в бизнес-центре "White Stone".

Москва, ЦАО, 4-й Лесной переулок, 4

Удобное расположение здания для всех видов транспорта:
- Автомобиль: близость транспортных магистралей, таких как Ленинградский проспект и других.
- Возможность аренды парковочных мест.
- Ближайшее метро: буквально 2 мин пешком от метро "Белорусская"

Офис класса А:
- Офис с отделкой, полностью готов к аренде
- Вентиляция: Приточно-вытяжная вентиляция
- Кондиционирование: центральное
- Презентабельный центральный рецепшн
- Круглосуточная охрана и видеонаблюдение
- Развитая инфраструктура внутри здания

Возможность заключения контракта в соответствии с 44ФЗ по госзакупкам.

Если предложение предварительно Вам подходит:

1. Мы отправим Вам подробную презентацию с планировкой и фотографиями в течение 10 минут после звонка, чтобы Вы могли поделиться информацией с руководством или с коллегами.
2. Ответим на любые Ваши вопросы, готовы обсуждать любые предложения по коммерческим условиям аренды помещения.
3. Оперативно организуем просмотр помещения, договоримся на любое удобное время, подготовим виртуальный тур.

Звоните нам в любое время. По будням мы сможем ответить на Ваши вопросы до 19:00. В выходные или вечернее время мы передадим Ваш контакт нашему менеджеру по аренде.

Коммерческие условия

Арендная плата 3 464 330 ₽
Ставка арендной платы 81 700 ₽ м²/год
Эксплуатационные расходы Включены в ставку
Налоги С учётом НДС
Тип договора Прямая аренда
Срок договора Долгосрочный
Размер платежей 3 месяц
Обеспечительный платеж 3 месяц
Статус Сдан

О бизнес-центре

Класс А
Этажность 14
Лифты Есть
Общая площадь 39 692 м²
Год постройки 2005
Паркинг Подземный
Вентиляция приточно-вытяжная
Кондиционирование центральное
Телекоммуникации Интернет/Телефония

Расположение

Подробная презентацию по предложению

Собираете информацию? Получите подробную презентацию в удобном формате, чтобы обсудить вариант с коллегами или переслать руководству!

Похожие предложения в других зданиях

БЕЗ КОМИССИИ ID: 1287040 Рейтинг9.5 КлассА

Москва, Лесная улица, 7

Белорусская → 238 м
~ 2 мин
Арендная плата в месяц 5 323 578 ₽ 71 100 ₽/м² в год С учётом НДС
Характеристики 899 м² 2 - 6 этаж Готово к въезду
Преимущества
  • Класс А
  • Пешком от метро
  • Кондиционирование и вентиляция
  • Свой паркинг
  • Развитая инфраструктура

Предлагается в долгосрочную прямую аренду помещение под офис класса А общей площадью 899 квадратных метров в бизнес-центре "Белые сады"... подробнее

Презентация по предложению

Собираете информацию? Получите подробную презентацию в удобном формате!

БЕЗ КОМИССИИ ID: 1329127 Рейтинг9.3 КлассА

Москва, 1-я Тверская-Ямская улица, 21

Белорусская → 332 м
~ 4 мин
Арендная плата в месяц 6 763 578 ₽ 86 600 ₽/м² в год С учётом НДС
Характеристики 937 м² 9 этаж Готово к въезду
Преимущества
  • Класс А
  • Пешком от метро
  • Кондиционирование и вентиляция
  • Свой паркинг
  • Несколько провайдеров связи
  • Развитая инфраструктура

Сдается в долгосрочную аренду помещение под офис класса А площадью 937 кв. метров в бизнес-центре "Четыре Ветра"... подробнее

Презентация по предложению

Собираете информацию? Получите подробную презентацию в удобном формате!

БЕЗ КОМИССИИ ID: 1379015 Рейтинг9.0 КлассА

Москва, Бумажный проезд, 19

Савёловская → 638 м
~ 6 мин
Арендная плата в месяц 7 749 295 ₽ 87 300 ₽/м² в год Упрощённая система налогообложения
Характеристики 1 065 м² 10 - 12 этаж Готово к въезду
Преимущества
  • Класс А
  • Пешком от метро
  • Новое строительство
  • Кондиционирование и вентиляция

Предлагается в прямую аренду офис класса А общей площадью 1065 квадратных метров в современном бизнес-центре "STONE Towers"... подробнее

Презентация по предложению

Собираете информацию? Получите подробную презентацию в удобном формате!

БЕЗ КОМИССИИ ID: 118690 Рейтинг7.5 КлассА

Москва, Оружейный переулок, 41

Маяковская → 807 м
~ 8 мин
Арендная плата в месяц 6 772 900 ₽ 76 100 ₽/м² в год С учётом НДС
Характеристики 1 068 м² 13 этаж Готово к въезду
Преимущества
  • Класс А
  • Пешком от метро
  • Кондиционирование и вентиляция

Собственник сдает в долгосрочную прямую аренду помещение под офис класса А площадью 1068 квадратных метров в бизнес-центре... подробнее

Презентация по предложению

Собираете информацию? Получите подробную презентацию в удобном формате!

БЕЗ КОМИССИИ ID: 1327261 Рейтинг8.1 КлассА

Москва, Садовая-Кудринская улица, 32 с1

Маяковская → 581 м
~ 6 мин
Арендная плата в месяц 6 389 167 ₽ 85 000 ₽/м² в год С учётом НДС
Характеристики 902 м² 5 этаж Готово к въезду
Преимущества
  • Класс А
  • Пешком от метро
  • Кондиционирование и вентиляция
  • Свой паркинг
  • Развитая инфраструктура

Предлагаем в долгосрочную прямую аренду офис класса А общей площадью 902 кв.м в бизнес-центре "Бронная Плаза"... подробнее

Презентация по предложению

Собираете информацию? Получите подробную презентацию в удобном формате!

Посмотреть все похожие предложения
Отнеситесь рационально к процессу поиска нового офиса!

Просто ответьте на 3 вопроса, и наши специалисты сами предложат оптимальные варианты под ваш бюджет

.