8.2
Смотреть все фото
БЕЗ КОМИССИИ ID: 960203 Рейтинг6.4 КлассB
Бизнес-центр «Ямское поле»

Аренда офиса 1346 м²

Москва, 3-я улица Ямского Поля, 2 к1

Белорусская → 586 м
~ 7 мин
Арендная плата в месяц 2 355 500 ₽ 21 000 ₽/м² в год С учётом НДС

Презентация по предложению

Собираете информацию? Получите подробную презентацию в удобном формате!

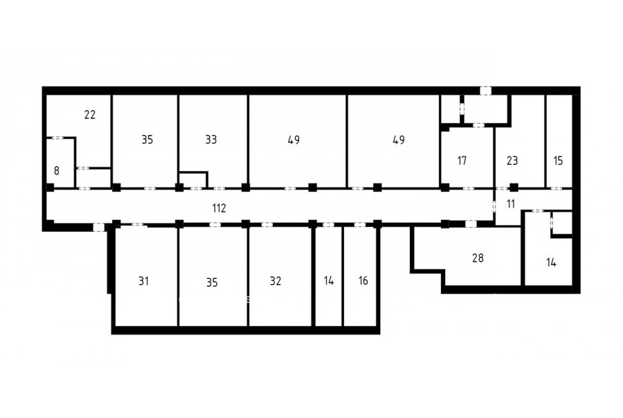
Площадь 1 346 м²
Состояние Готово к въезду
Планировка Кабинетная
Этаж 1 - 2

Описание

Преимущества
  • Класс B
  • Пешком от метро
  • Кондиционирование и вентиляция
  • Свой паркинг
  • Развитая инфраструктура
Предлагается в долгосрочную прямую аренду помещение под офис класса B общей площадью 1346 квадр. метров в бизнес-центре "ТП Наука".

Москва, САО, 3-я улица Ямского Поля, 2 к1

Удобное расположение здания для всех видов транспорта:
- Автомобиль: близость транспортных магистралей, таких как Ленинградский проспект, Третье Транспортное Кольцо и других.
- Возможность аренды парковочных мест.
- Ближайшее метро: от метро "Белорусская" всего 7 мин пешком

Офис класса B:
- Помещение с отделкой, готово к въезду


Если предложение предварительно Вам подходит:

1. Мы подготовили презентацию с информацией о помещении, фотографиями и планировкой, чтобы Вы могли поделиться ей с коллегами или руководством. Попросите об этом нашего менеджера по телефону в объявлении.
2. Задайте любые вопросы менеджеру по телефону, готовы обсуждать любые предложения по финансовым условиям договора аренды.
3. Оперативно организуем просмотр помещения с менеджерами на объекте или подготовим виртуальный тур.

Звоните нам в любое время. По будням мы сможем ответить на Ваши вопросы до 19:00. В выходные или вечернее время мы передадим Ваш контакт нашему менеджеру по аренде.

Коммерческие условия

Арендная плата 2 355 500 ₽
Ставка арендной платы 21 000 ₽ м²/год
Эксплуатационные расходы Включены в ставку
Налоги С учётом НДС
Тип договора Прямая аренда
Срок договора от 11 месяцев
Размер платежей 1 месяц
Обеспечительный платеж 1 месяц
Статус Сдан

О бизнес-центре

Класс B
Этажность 7
Лифты Есть
Общая площадь 0 м²
Паркинг Наземный
Вентиляция естественная
Кондиционирование возможность установки
Телекоммуникации Интернет/Телефония

Расположение

Подробная презентацию по предложению

Собираете информацию? Получите подробную презентацию в удобном формате, чтобы обсудить вариант с коллегами или переслать руководству!

Похожие предложения в других зданиях

БЕЗ КОМИССИИ ID: 273945 Рейтинг7.8 КлассB+

Москва, 3-я улица Ямского Поля, 20 с1

Белорусская → 914 м
~ 9 мин
Арендная плата в месяц 2 275 000 ₽ 21 000 ₽/м² в год С учётом НДС
Характеристики 1 300 м² 4 этаж Отделка под арендатора
Преимущества
  • Класс B+
  • Пешком от метро
  • Кондиционирование и вентиляция
  • Свой паркинг

Предлагаем в долгосрочную аренду офис класса B+ площадью 1300 квадр. метров в недавно отреконструированном бизнес-центре... подробнее

Презентация по предложению

Собираете информацию? Получите подробную презентацию в удобном формате!

БЕЗ КОМИССИИ ID: 48700 Рейтинг6.2 КлассB

Москва, 3-я улица Ямского Поля, 24

Белорусская → 859 м
~ 9 мин
Арендная плата в месяц 2 354 417 ₽ 19 000 ₽/м² в год С учётом НДС
Характеристики 1 487 м² 3 этаж Готово к въезду
Преимущества
  • Класс B
  • Пешком от метро
  • Кондиционирование и вентиляция
  • Свой паркинг
  • Несколько провайдеров связи
  • Развитая инфраструктура

Предлагаем в прямую аренду офис класса B общей площадью 1487 квадр. метров в историческом недавно отреконструированном бизнес-центре... подробнее

Презентация по предложению

Собираете информацию? Получите подробную презентацию в удобном формате!

БЕЗ КОМИССИИ ID: 6258 Рейтинг6.2 КлассB

Москва, 3-я улица Ямского Поля, 24

Белорусская → 859 м
~ 9 мин
Арендная плата в месяц 1 938 000 ₽ 19 000 ₽/м² в год С учётом НДС
Характеристики 1 224 м² 2 этаж Готово к въезду
Преимущества
  • Класс B
  • Пешком от метро
  • Кондиционирование и вентиляция
  • Свой паркинг
  • Несколько провайдеров связи
  • Развитая инфраструктура

Сдаем в долгосрочную прямую аренду офисное помещение класса B площадью 1224 квадратных метров в историческом недавно отреконструированном бизнес-центре... подробнее

Презентация по предложению

Собираете информацию? Получите подробную презентацию в удобном формате!

БЕЗ КОМИССИИ ID: 291138 Рейтинг5.2 КлассB

Москва, 1-я улица Ямского Поля, 17 к12

Белорусская → 909 м
~ 9 мин
Арендная плата в месяц 2 080 750 ₽ 21 000 ₽/м² в год С учётом НДС
Характеристики 1 189 м² 1 - 3 этаж Готово к въезду
Преимущества
  • Класс B
  • Пешком от метро

Сдаем в прямую аренду офисное помещение класса B площадью 1189 квадр. метров в бизнес-центре... подробнее

Презентация по предложению

Собираете информацию? Получите подробную презентацию в удобном формате!

БЕЗ КОМИССИИ ID: 325286 Рейтинг6.1 КлассB

Москва, улица Правды, 8 к27

Савёловская → 1.31 км
~ 13 мин
Арендная плата в месяц 2 000 000 ₽ 20 000 ₽/м² в год С учётом НДС
Характеристики 1 200 м² 3 этаж Готово к въезду
Преимущества
  • Класс B
  • Пешком от метро
  • Кондиционирование и вентиляция
  • Свой паркинг

Сдаем в долгосрочную аренду помещение под офис класса B общей площадью 1200 квадр. метров в историческом бизнес-центре... подробнее

Презентация по предложению

Собираете информацию? Получите подробную презентацию в удобном формате!

Посмотреть все похожие предложения
Отнеситесь рационально к процессу поиска нового офиса!

Просто ответьте на 3 вопроса, и наши специалисты сами предложат оптимальные варианты под ваш бюджет

.