8.2

Виртуальный тур

Виртуальный тур

Смотреть все фото
БЕЗ КОМИССИИ ID: 1251469 Рейтинг7.6 КлассB

Москва, Ярославская, 13б

ВДНХ → 361 м
~ 4 мин
Арендная плата в месяц 530 000 ₽ 20 000 ₽/м² в год С учётом НДС

Презентация по предложению

Собираете информацию? Получите подробную презентацию в удобном формате!

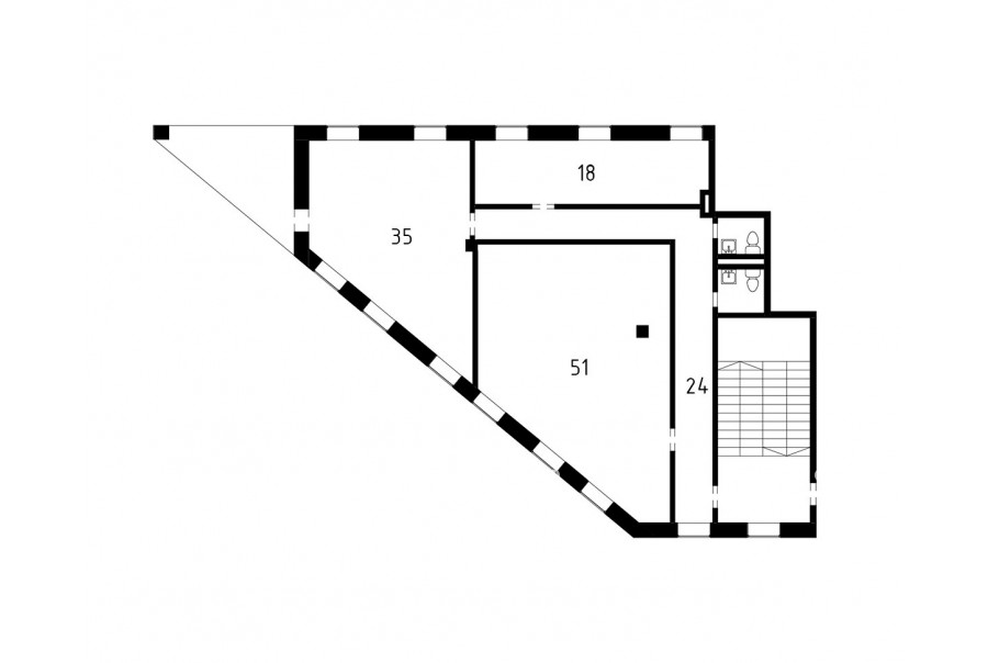
Площадь 318 м²
Состояние Готово к въезду
Планировка Смешанная
Этаж 2

Описание

Преимущества
  • Класс B
  • Пешком от метро
  • Кондиционирование и вентиляция
Предлагается в долгосрочную прямую аренду помещение под офис класса B площадью 318 квадр. метров в бизнес-центре "Ярославская 13Б".

Москва, СВАО, Ярославская, 13б

Удобное расположение здания для всех видов транспорта:
- Автомобиль: близость транспортных магистралей, таких как Проспект Мира и других.
- Ближайшее метро: от метро "ВДНХ" всего 5 мин пешком

Офис класса B:
- Офис с отделкой, полностью готов к аренде
- Вентиляция: Приточно-вытяжная вентиляция


Если данное предложение подходит Вашему запросу:

1. Мы подготовили презентацию с информацией о помещении, фотографиями и планировкой, чтобы Вы могли поделиться ей с коллегами или руководством. Попросите об этом нашего менеджера по телефону в объявлении.
2. Мы готовы ответить на любые Ваши вопросы о помещении и коммерческих условиях аренды.
3. Оперативно организуем просмотр помещения с менеджерами на объекте или подготовим виртуальный тур.

Звоните нам в любое время. По будням мы сможем ответить на Ваши вопросы до 19:00. В выходные или вечернее время мы передадим Ваш контакт нашему менеджеру по аренде.

Коммерческие условия

Арендная плата 530 000 ₽
Ставка арендной платы 20 000 ₽ м²/год
Эксплуатационные расходы Включены в ставку
Налоги С учётом НДС
Тип договора Прямая аренда
Срок договора Долгосрочный
Размер платежей 1 месяц
Обеспечительный платеж 1 месяц
Статус Сдан

О бизнес-центре

Класс B
Этажность 3
Лифты Нет
Общая площадь 950 м²
Год постройки 2006
Паркинг Наземный
Вентиляция приточно-вытяжная
Кондиционирование сплит-системы
Телекоммуникации Интернет/Телефония

Расположение

Подробная презентацию по предложению

Собираете информацию? Получите подробную презентацию в удобном формате, чтобы обсудить вариант с коллегами или переслать руководству!

Похожие предложения в других зданиях

БЕЗ КОМИССИИ ID: 1379056 Рейтинг8.3 КлассB+

Москва, Ракетный бульвар, 16

ВДНХ → 1.07 км
~ 11 мин
Арендная плата в месяц 710 955 ₽ 25 600 ₽/м² в год С учётом НДС
Характеристики 333 м² 9 этаж Готово к въезду
Преимущества
  • Класс B+
  • Пешком от метро
  • Кондиционирование и вентиляция
  • Свой паркинг
  • Развитая инфраструктура

Сдается в долгосрочную аренду помещение под офис класса B+ площадью 333 квадратных метров в бизнес-центре "Алексеевская Башня"... подробнее

Презентация по предложению

Собираете информацию? Получите подробную презентацию в удобном формате!

БЕЗ КОМИССИИ ID: 1299572 Рейтинг6.8 КлассB

Москва, Маломосковская улица, 10

Алексеевская → 877 м
~ 9 мин
Арендная плата в месяц 597 188 ₽ 20 500 ₽/м² в год С учётом НДС
Характеристики 350 м² 4 этаж Готово к въезду
Преимущества
  • Класс B
  • Пешком от метро
  • Кондиционирование и вентиляция

Предлагаем в долгосрочную аренду офисное помещение класса B площадью 350 кв.м в бизнес-центре... подробнее

>

Виртуальный тур

Презентация по предложению

Собираете информацию? Получите подробную презентацию в удобном формате!

БЕЗ КОМИССИИ ID: 1320345 Рейтинг7.1 КлассB

Москва, Староалексеевская улица, 5

Алексеевская → 649 м
~ 6 мин
Арендная плата в месяц 529 177 ₽ 22 700 ₽/м² в год С учётом НДС
Характеристики 280 м² 1 - 7 этаж Готово к въезду
Преимущества
  • Класс B
  • Пешком от метро
  • Кондиционирование и вентиляция

Сдается в прямую аренду офисный блок класса B общей площадью 280 квадр. метров в бизнес-центре... подробнее

Презентация по предложению

Собираете информацию? Получите подробную презентацию в удобном формате!

БЕЗ КОМИССИИ ID: 242969 Рейтинг7.2 КлассB

Москва, проспект Мира, 95 с1

Алексеевская → 180 м
~ 2 мин
Арендная плата в месяц 588 000 ₽ 21 000 ₽/м² в год С учётом НДС
Характеристики 336 м² 12 этаж Готово к въезду
Преимущества
  • Класс B
  • Пешком от метро
  • Кондиционирование и вентиляция
  • Развитая инфраструктура

Предлагаем в долгосрочную прямую аренду помещение под офис класса B общей площадью 336 кв.м в бизнес-центре... подробнее

Презентация по предложению

Собираете информацию? Получите подробную презентацию в удобном формате!

БЕЗ КОМИССИИ ID: 1376161 Рейтинг5.0 КлассB

Москва, 3-я Мытищинская улица, 16 с14

Алексеевская → 722 м
~ 7 мин
Арендная плата в месяц 483 525 ₽ 18 900 ₽/м² в год С учётом НДС
Характеристики 307 м² 2 этаж Готово к въезду
Преимущества
  • Класс B
  • Пешком от метро

Предлагается в аренду помещение под офис класса B общей площадью 307 кв. метров в бизнес-центре... подробнее

Презентация по предложению

Собираете информацию? Получите подробную презентацию в удобном формате!

Посмотреть все похожие предложения
Отнеситесь рационально к процессу поиска нового офиса!

Просто ответьте на 3 вопроса, и наши специалисты сами предложат оптимальные варианты под ваш бюджет

.