8.2
Смотреть все фото
БЕЗ КОМИССИИ ID: 1376060 Рейтинг5.9 КлассB
Бизнес-центр «Юннатов 18»

Аренда офиса 116 м²

Москва, улица Юннатов, 18

Петровский парк → 1.57 км
~ 16 мин
Арендная плата в месяц 198 200 ₽ 20 500 ₽/м² в год С учётом НДС

Презентация по предложению

Собираете информацию? Получите подробную презентацию в удобном формате!

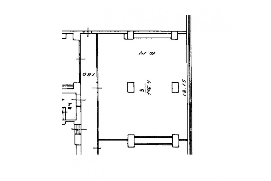
Площадь 116 м²
Состояние Готово к въезду
Планировка Открытая
Этаж 9

Описание

Преимущества
  • Класс B
  • Пешком от метро
  • Кондиционирование и вентиляция
  • Свой паркинг
  • Развитая инфраструктура
Предлагается в долгосрочную прямую аренду офисное помещение класса B площадью 116 квадр. метров в бизнес-центре.

Москва, САО, улица Юннатов, 18

Характеристики местоположения:
- Автомобиль: близость транспортных магистралей, таких как Дмитровское шоссе, Бутырская улица, Третье Транспортное Кольцо, Ленинградский проспект и других.
- Возможность аренды парковочных мест.
- Ближайшее метро: от метро "Петровский парк" можно добраться пешком или на городском транспорте

Офис класса B:
- Помещение готово к въезду
- Кондиционирование: сплит-системы


Если данное предложение подходит Вашему запросу:

1. Мы отправим Вам подробную презентацию с планировкой и фотографиями в течение 10 минут после звонка, чтобы Вы могли поделиться информацией с руководством или с коллегами.
2. Ответим на любые Ваши вопросы, готовы обсуждать любые предложения по коммерческим условиям аренды помещения.
3. Оперативно организуем просмотр помещения с менеджерами на объекте или подготовим виртуальный тур.

Звоните нам в любое время. По будням мы сможем ответить на Ваши вопросы до 19:00. В выходные или вечернее время мы передадим Ваш контакт нашему менеджеру по аренде.

Коммерческие условия

Арендная плата 198 170 ₽
Ставка арендной платы 20 500 ₽ м²/год
Эксплуатационные расходы Включены в ставку
Налоги С учётом НДС
Тип договора Прямая аренда
Срок договора от 11 месяцев
Размер платежей 1 месяц
Обеспечительный платеж 1 месяц
Статус Свободен

О бизнес-центре

Класс B
Этажность 9
Лифты Есть
Общая площадь 13 000 м²
Год постройки 1980
Паркинг Наземный
Вентиляция естественная
Кондиционирование сплит-системы
Телекоммуникации Интернет/Телефония

Расположение

Подробная презентацию по предложению

Собираете информацию? Получите подробную презентацию в удобном формате, чтобы обсудить вариант с коллегами или переслать руководству!

Похожие предложения в других зданиях

БЕЗ КОМИССИИ ID: 1379452 Рейтинг7.5 КлассB+

Москва, 2-я Хуторская улица, 38А

Дмитровская → 882 м
~ 9 мин
Арендная плата в месяц 192 500 ₽ 21 000 ₽/м² в год С учётом НДС
Характеристики 110 м² -1 этаж Готово к въезду
Преимущества
  • Класс B+
  • Пешком от метро
  • Кондиционирование и вентиляция
  • Свой паркинг
  • Несколько провайдеров связи
  • Развитая инфраструктура

Предлагается в долгосрочную аренду офисное помещение класса B+ площадью 110 кв. метров в бизнес-центре "МирЛанд"... подробнее

Презентация по предложению

Собираете информацию? Получите подробную презентацию в удобном формате!

БЕЗ КОМИССИИ ID: 1330462 Рейтинг6.6 КлассB

Москва, улица Руставели, 14 с6

Бутырская → 338 м
~ 4 мин
Арендная плата в месяц 198 000 ₽ 19 800 ₽/м² в год Упрощённая система налогообложения
Характеристики 120 м² 4 этаж Готово к въезду
Преимущества
  • Класс B
  • Пешком от метро
  • Кондиционирование и вентиляция
  • Свой паркинг
  • Несколько провайдеров связи
  • Развитая инфраструктура

Сдается в долгосрочную аренду помещение под офис класса B общей площадью 120 квадратных метров в бизнес-центре... подробнее

Презентация по предложению

Собираете информацию? Получите подробную презентацию в удобном формате!

БЕЗ КОМИССИИ ID: 1375192 Рейтинг6.6 КлассB

Москва, улица Руставели, 14 с6

Бутырская → 338 м
~ 4 мин
Арендная плата в месяц 173 250 ₽ 19 800 ₽/м² в год Упрощённая система налогообложения
Характеристики 105 м² 3 этаж Готово к въезду
Преимущества
  • Класс B
  • Пешком от метро
  • Кондиционирование и вентиляция
  • Свой паркинг
  • Несколько провайдеров связи
  • Развитая инфраструктура

Предлагаем в долгосрочную прямую аренду офис класса B общей площадью 105 квадр. метров в бизнес-центре... подробнее

Презентация по предложению

Собираете информацию? Получите подробную презентацию в удобном формате!

БЕЗ КОМИССИИ ID: 1328995 Рейтинг7.4 КлассB

Москва, Ленинградский проспект, 80 к21

Сокол → 481 м
~ 5 мин
Арендная плата в месяц 183 333 ₽ 22 000 ₽/м² в год С учётом НДС
Характеристики 100 м² 2 этаж Готово к въезду
Преимущества
  • Класс B
  • Пешком от метро
  • Кондиционирование и вентиляция
  • Свой паркинг

Сдается в прямую аренду помещение под офис класса B площадью 100 квадратных метров в бизнес-центре... подробнее

Презентация по предложению

Собираете информацию? Получите подробную презентацию в удобном формате!

Посмотреть все похожие предложения
Отнеситесь рационально к процессу поиска нового офиса!

Просто ответьте на 3 вопроса, и наши специалисты сами предложат оптимальные варианты под ваш бюджет

.