8.2
Смотреть все фото
БЕЗ КОМИССИИ ID: 1380145 Рейтинг7.9 КлассB+
Бизнес-центр «Южный Порт»

Аренда офиса 1788 м²

Москва, 2-й Южнопортовый проезд, 16 с1

Кожуховская → 611 м
~ 6 мин
Арендная плата в месяц 4 023 000 ₽ 27 000 ₽/м² в год С учётом НДС

Презентация по предложению

Собираете информацию? Получите подробную презентацию в удобном формате!

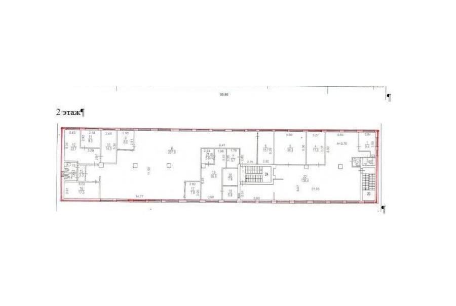
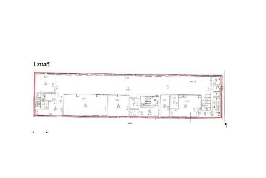
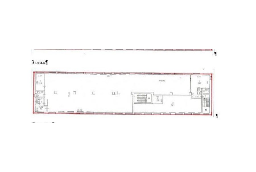
Площадь 1 788 м²
Состояние Готово к въезду
Планировка Смешанная
Этаж 1 - 3

Описание

Преимущества
  • Класс B+
  • Пешком от метро
  • Кондиционирование и вентиляция
  • Свой паркинг
  • Несколько провайдеров связи
Предлагаем в долгосрочную прямую аренду помещение под офис класса B+ общей площадью 1788 кв.м в бизнес-центре "Южный Порт".

Москва, ЮВАО, 2-й Южнопортовый проезд, 16 с1

Удобная локация здания:
- Автомобиль: близость транспортных магистралей, таких как Волгоградский проспект, Проспект Андропова, Третье Транспортное Кольцо и других.
- Возможность аренды парковочных мест.
- Ближайшее метро: от метро "Кожуховская" всего 6 мин пешком

Офис класса B+:
- Помещение с отделкой, готово к въезду
- Вентиляция: Приточно-вытяжная вентиляция
- Кондиционирование: сплит-системы
- Круглосуточная охрана и видеонаблюдение

Возможность заключения контракта в соответствии с 44ФЗ по госзакупкам.

Что еще можно узнать о предложении:

1. Получите презентацию в течение 10 минут в Whatsapp или на почту с фотографиями и планировкой, чтобы обсудить данный вариант с коллегами или переслать руководству. Для этого позвоните по телефону, указанному в объявлении.
2. Задайте любые вопросы менеджеру по телефону, готовы обсуждать любые предложения по финансовым условиям договора аренды.
3. Покажем помещение в удобное для Вас время с менеджером в здании, при необходимости подготовим виртуальный тур.

Вы можете позвонить нам в любое время. Мы ответим на Ваши вопросы по будням до 19:00, а поздно вечером или в выходные зафиксируем Ваш контакт и перезвоним в рабочее время.

Коммерческие условия

Арендная плата 4 023 000 ₽
Ставка арендной платы 27 000 ₽ м²/год
Эксплуатационные расходы Включены в ставку
Налоги С учётом НДС
Тип договора Прямая аренда
Срок договора от 11 месяцев
Размер платежей 1 месяц
Обеспечительный платеж 2 месяц
Статус Сдан

О бизнес-центре

Класс B+
Этажность 7
Лифты Есть
Общая площадь 9 700 м²
Год постройки 2011
Паркинг Наземный
Вентиляция приточно-вытяжная
Кондиционирование сплит-системы
Телекоммуникации Интернет/Телефония

Расположение

Подробная презентацию по предложению

Собираете информацию? Получите подробную презентацию в удобном формате, чтобы обсудить вариант с коллегами или переслать руководству!

Похожие предложения в других зданиях

БЕЗ КОМИССИИ ID: 1381811 Рейтинг8.7 КлассB

Москва, проспект Андропова, 8

Технопарк → 267 м
~ 3 мин
Арендная плата в месяц 4 758 000 ₽ 29 300 ₽/м² в год С учётом НДС
Характеристики 1 950 м² 5 этаж Готово к въезду
Преимущества
  • Класс B
  • Пешком от метро
  • Кондиционирование и вентиляция
  • Свой паркинг
  • Развитая инфраструктура

Предлагаем в долгосрочную прямую аренду офисное помещение класса B площадью 1950 квадр. метров в бизнес-центре "Мегаполис"... подробнее

Презентация по предложению

Собираете информацию? Получите подробную презентацию в удобном формате!

БЕЗ КОМИССИИ ID: 1381810 Рейтинг8.7 КлассB

Москва, проспект Андропова, 8

Технопарк → 267 м
~ 3 мин
Арендная плата в месяц 4 758 000 ₽ 29 300 ₽/м² в год С учётом НДС
Характеристики 1 950 м² 5 этаж Готово к въезду
Преимущества
  • Класс B
  • Пешком от метро
  • Кондиционирование и вентиляция
  • Свой паркинг
  • Развитая инфраструктура

Предлагаем в долгосрочную прямую аренду помещение под офис класса B площадью 1950 квадратных метров в бизнес-центре "Мегаполис"... подробнее

Презентация по предложению

Собираете информацию? Получите подробную презентацию в удобном формате!

ВОЗМОЖНО ОСВОБОЖДЕНИЕ ID: 61495 Рейтинг8.0 КлассB

Москва, Шарикоподшипниковская улица, 13 с62

Волгоградский проспект → 899 м
~ 9 мин
Арендная плата в месяц 4 554 667 ₽ 28 000 ₽/м² в год С учётом НДС
Характеристики 1 952 м² 2 - 3 этаж Готово к въезду
Преимущества
  • Класс B
  • Пешком от метро
  • Кондиционирование и вентиляция
  • Свой паркинг
  • Несколько провайдеров связи

Сдается в долгосрочную аренду офисный блок класса B площадью 1952 квадр. метров в недавно отреконструированном бизнес-центре "Шарикоподшипниковский"... подробнее

Презентация по предложению

Собираете информацию? Получите подробную презентацию в удобном формате!

БЕЗ КОМИССИИ ID: 1150525 Рейтинг8.0 КлассB

Москва, Шарикоподшипниковская улица, 13 с62

Волгоградский проспект → 899 м
~ 9 мин
Арендная плата в месяц 3 966 667 ₽ 28 000 ₽/м² в год С учётом НДС
Характеристики 1 700 м² 3 этаж Готово к въезду
Преимущества
  • Класс B
  • Пешком от метро
  • Кондиционирование и вентиляция
  • Свой паркинг
  • Несколько провайдеров связи

Предлагается в долгосрочную аренду помещение под офис класса B общей площадью 1700 квадр. метров в недавно отреконструированном бизнес-центре "Шарикоподшипниковский"... подробнее

Презентация по предложению

Собираете информацию? Получите подробную презентацию в удобном формате!

БЕЗ КОМИССИИ ID: 1262654 Рейтинг9.1 КлассА

Москва, проспект Андропова, 18 к5

Технопарк → 165 м
~ 2 мин
Арендная плата в месяц 4 024 167 ₽ 27 500 ₽/м² в год С учётом НДС
Характеристики 1 756 м² 12 этаж Готово к въезду
Преимущества
  • Класс А
  • Пешком от метро
  • Кондиционирование и вентиляция
  • Свой паркинг
  • Развитая инфраструктура

Предлагается в долгосрочную прямую аренду помещение под офис класса А общей площадью 1756 квадратных метров в бизнес-центре "Нагатино Айлэнд"... подробнее

Презентация по предложению

Собираете информацию? Получите подробную презентацию в удобном формате!

Посмотреть все похожие предложения
Отнеситесь рационально к процессу поиска нового офиса!

Просто ответьте на 3 вопроса, и наши специалисты сами предложат оптимальные варианты под ваш бюджет

.