8.2

Виртуальный тур

Смотреть все фото
БЕЗ КОМИССИИ ID: 1242903 Рейтинг8.1 КлассB+
Бизнес-центр «Z-Plaza»

Аренда офиса 1816 м²

Москва, Бутырская улица, 62

Дмитровская → 713 м
~ 7 мин
Арендная плата в месяц 4 086 000 ₽ 27 000 ₽/м² в год С учётом НДС

Презентация по предложению

Собираете информацию? Получите подробную презентацию в удобном формате!

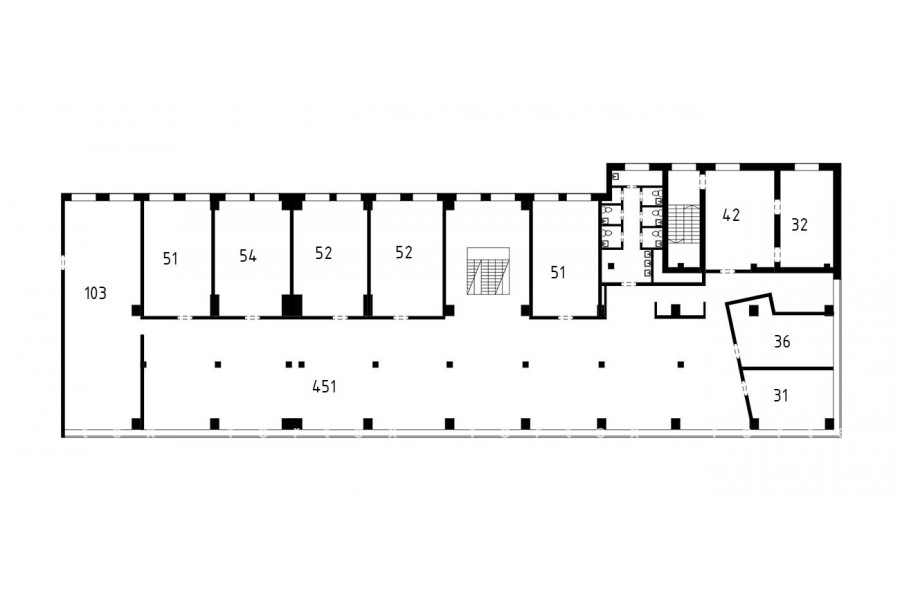
Площадь 1 816 м²
Состояние Готово к въезду
Планировка Смешанная
Этаж 7 - 8

Описание

Преимущества
  • Класс B+
  • Пешком от метро
  • Кондиционирование и вентиляция
  • Свой паркинг
  • Развитая инфраструктура
Сдается в долгосрочную прямую аренду офис класса B+ общей площадью 1816 квадр. метров в бизнес-центре "Z-Plaza".

Москва, СВАО, Бутырская улица, 62

Удобная локация здания:
- Автомобиль: близость транспортных магистралей, таких как Дмитровское шоссе, Третье Транспортное Кольцо, Бутырская улица и других.
- Возможность аренды парковочных мест.
- Ближайшее метро: от метро "Дмитровская" всего 6 мин пешком

Офис класса B+:
- Офис с отделкой, полностью готов к аренде
- Вентиляция: Приточно-вытяжная вентиляция
- Кондиционирование: центральное
- Круглосуточная охрана и видеонаблюдение
- Развитая инфраструктура внутри здания

Возможность заключения контракта в соответствии с 44ФЗ по госзакупкам.

Что еще можно узнать о предложении:

1. Мы отправим Вам подробную презентацию с планировкой и фотографиями в течение 10 минут после звонка, чтобы Вы могли поделиться информацией с руководством или с коллегами.
2. Задайте любые вопросы менеджеру по телефону, готовы обсуждать любые предложения по финансовым условиям договора аренды.
3.

Вы можете позвонить нам в любое время. Мы ответим на Ваши вопросы по будням до 19:00, а поздно вечером или в выходные сможем передать Ваш контакт нашему менеджеру.

Коммерческие условия

Арендная плата 3 200 100 ₽
Ставка арендной платы 27 000 ₽ м²/год
Эксплуатационные расходы Включены в ставку
Налоги С учётом НДС
Тип договора Прямая аренда
Срок договора от 11 месяцев
Размер платежей 1 месяц
Обеспечительный платеж 2 месяц
Статус Сдан

О бизнес-центре

Класс B+
Этажность 9
Лифты Есть
Общая площадь 9 000 м²
Год постройки 2006
Паркинг Наземный
Вентиляция приточно-вытяжная
Кондиционирование центральное
Телекоммуникации Интернет/Телефония

Расположение

Подробная презентацию по предложению

Собираете информацию? Получите подробную презентацию в удобном формате, чтобы обсудить вариант с коллегами или переслать руководству!

Похожие предложения в других зданиях

БЕЗ КОМИССИИ ID: 1296222 Рейтинг8.2 КлассB+

Москва, Новодмитровская улица, 2 к1

Дмитровская → 864 м
~ 9 мин
Арендная плата в месяц 4 207 500 ₽ 29 700 ₽/м² в год С учётом НДС
Характеристики 1 700 м² 18 этаж Готово к въезду
Преимущества
  • Класс B+
  • Пешком от метро
  • Кондиционирование и вентиляция
  • Развитая инфраструктура

Предлагаем в долгосрочную аренду офисный блок класса B+ площадью 1700 квадр. метров в бизнес-центре "Савеловский Сити"... подробнее

Презентация по предложению

Собираете информацию? Получите подробную презентацию в удобном формате!

БЕЗ КОМИССИИ ID: 1298454 Рейтинг8.6 КлассB+

Москва, Новодмитровская улица, 2Б

Дмитровская → 805 м
~ 8 мин
Арендная плата в месяц 4 134 375 ₽ 28 400 ₽/м² в год С учётом НДС
Характеристики 1 750 м² 4 этаж Готово к въезду
Преимущества
  • Класс B+
  • Пешком от метро
  • Кондиционирование и вентиляция
  • Свой паркинг

Сдается в долгосрочную прямую аренду офисный блок класса B+ общей площадью 1750 квадр. метров в бизнес-центре "Дмитровский"... подробнее

>

Виртуальный тур

Презентация по предложению

Собираете информацию? Получите подробную презентацию в удобном формате!

БЕЗ КОМИССИИ ID: 289761 Рейтинг8.5 КлассB+

Москва, Складочная улица, 3 с1

Дмитровская → 866 м
~ 9 мин
Арендная плата в месяц 4 833 333 ₽ 29 000 ₽/м² в год С учётом НДС
Характеристики 2 000 м² 2 - 3 этаж Готово к въезду
Преимущества
  • Класс B+
  • Пешком от метро
  • Кондиционирование и вентиляция
  • Свой паркинг

Сдается в прямую аренду офисный блок класса B+ площадью 2000 квадр. метров в недавно отреконструированном бизнес-центре "Горизонт"... подробнее

Презентация по предложению

Собираете информацию? Получите подробную презентацию в удобном формате!

БЕЗ КОМИССИИ ID: 296824 Рейтинг8.5 КлассB+

Москва, Складочная улица, 3 с1

Дмитровская → 866 м
~ 9 мин
Арендная плата в месяц 4 060 000 ₽ 29 000 ₽/м² в год С учётом НДС
Характеристики 1 680 м² 4 этаж Готово к въезду
Преимущества
  • Класс B+
  • Пешком от метро
  • Кондиционирование и вентиляция
  • Свой паркинг

Сдается в долгосрочную аренду офисное помещение класса B+ общей площадью 1680 кв. метров в недавно отреконструированном бизнес-центре "Горизонт"... подробнее

>

Виртуальный тур

Презентация по предложению

Собираете информацию? Получите подробную презентацию в удобном формате!

БЕЗ КОМИССИИ ID: 270467 Рейтинг7.0 КлассB+

Москва, Складочная улица, 1 с15

Савеловская → 678 м
~ 7 мин
Арендная плата в месяц 4 466 667 ₽ 26 800 ₽/м² в год С учётом НДС
Характеристики 2 000 м² 4 - 5 этаж Готово к въезду
Преимущества
  • Класс B+
  • Пешком от метро
  • Кондиционирование и вентиляция
  • Свой паркинг
  • Несколько провайдеров связи
  • Развитая инфраструктура

Сдается в долгосрочную прямую аренду офис класса B+ общей площадью 2000 квадр. метров в бизнес-центре "Савеловград"... подробнее

Презентация по предложению

Собираете информацию? Получите подробную презентацию в удобном формате!

Посмотреть все похожие предложения
Отнеситесь рационально к процессу поиска нового офиса!

Просто ответьте на 3 вопроса, и наши специалисты сами предложат оптимальные варианты под ваш бюджет

.