8.2
Смотреть все фото
БЕЗ КОМИССИИ ID: 216571 Рейтинг7.9 КлассB+
Бизнес-центр «Житная 4»

Аренда офиса 585 м²

Москва, Житная улица, 4

Добрынинская → 178 м
~ 2 мин
Арендная плата в месяц 2 101 100 ₽ 43 100 ₽/м² в год С учётом НДС

Презентация по предложению

Собираете информацию? Получите подробную презентацию в удобном формате!

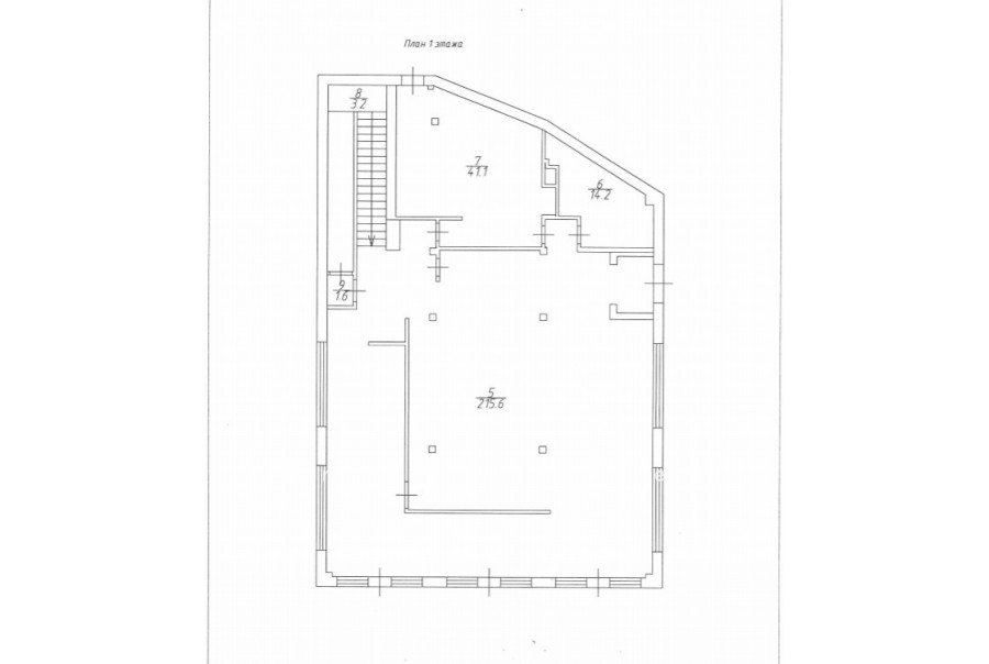
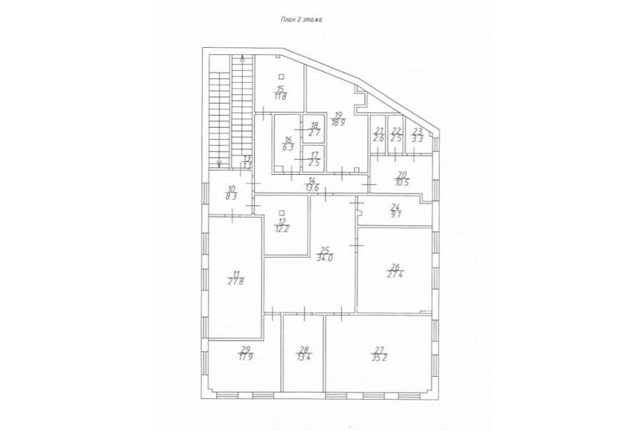
Площадь 585 м²
Состояние Готово к въезду
Планировка Открытая
Этаж 1 - 2

Описание

Преимущества
  • Класс B+
  • Пешком от метро
  • Кондиционирование и вентиляция
  • Свой паркинг
Сдается в долгосрочную аренду офисное помещение класса B+ площадью 585 кв.м в новом бизнес-центре.

Москва, ЦАО, Житная улица, 4

Удобное расположение в пределах Садового кольца:
- Возможность аренды парковочных мест.
- Ближайшее метро: буквально 2 мин пешком от метро "Добрынинская"

Офис класса B+:
- Помещение с отделкой, готово к въезду
- Вентиляция: Приточно-вытяжная вентиляция
- Кондиционирование: центральное


Что еще можно узнать о предложении:

1. Мы подготовили презентацию с информацией о помещении, фотографиями и планировкой, чтобы Вы могли поделиться ей с коллегами или руководством. Попросите об этом нашего менеджера по телефону в объявлении.
2. Задайте любые вопросы менеджеру по телефону, готовы обсуждать любые предложения по финансовым условиям договора аренды.
3. Оперативно организуем просмотр помещения, договоримся на любое удобное время, подготовим виртуальный тур.

Звоните нам в любое время. По будням мы сможем ответить на Ваши вопросы до 19:00. В выходные или вечернее время мы передадим Ваш контакт нашему менеджеру по аренде.

Коммерческие условия

Арендная плата 2 100 000 ₽
Ставка арендной платы 43 100 ₽ м²/год
Эксплуатационные расходы Включены в ставку
Налоги С учётом НДС
Тип договора Прямая аренда
Срок договора от 11 месяцев
Размер платежей 1 месяц
Обеспечительный платеж 1 месяц
Статус Сдан

О бизнес-центре

Класс B+
Этажность 2
Лифты Нет
Общая площадь 690 м²
Год постройки 2014
Паркинг Наземный
Вентиляция приточно-вытяжная
Кондиционирование центральное
Телекоммуникации Интернет/Телефония

Расположение

Подробная презентацию по предложению

Собираете информацию? Получите подробную презентацию в удобном формате, чтобы обсудить вариант с коллегами или переслать руководству!

Похожие предложения в других зданиях

БЕЗ КОМИССИИ ID: 294891 Рейтинг9.0 КлассB+

Москва, улица Большая Полянка, 63 с1

Добрынинская → 282 м
~ 3 мин
Арендная плата в месяц 1 801 333 ₽ 38 600 ₽/м² в год С учётом НДС
Характеристики 560 м² 1 - 3 этаж Готово к въезду
Преимущества
  • Класс B+
  • Пешком от метро
  • Кондиционирование и вентиляция
  • Свой паркинг

Предлагается в прямую аренду офисный блок класса B+ площадью 560 квадратных метров в бизнес-центре... подробнее

Презентация по предложению

Собираете информацию? Получите подробную презентацию в удобном формате!

БЕЗ КОМИССИИ ID: 75031 Рейтинг8.9 КлассB+

Москва, улица Пятницкая, 74

Добрынинская → 424 м
~ 4 мин
Арендная плата в месяц 1 662 500 ₽ 38 000 ₽/м² в год С учётом НДС
Характеристики 525 м² 1 этаж Готово к въезду
Преимущества
  • Класс B+
  • Пешком от метро
  • Кондиционирование и вентиляция
  • Свой паркинг

Предлагается в долгосрочную аренду офисный блок класса B+ общей площадью 525 кв. метров в бизнес-центре "Domino"... подробнее

Презентация по предложению

Собираете информацию? Получите подробную презентацию в удобном формате!

БЕЗ КОМИССИИ ID: 64446 Рейтинг6.6 КлассB+

Москва, Валовая улица, 21

Добрынинская → 541 м
~ 5 мин
Арендная плата в месяц 2 034 500 ₽ 39 000 ₽/м² в год С учётом НДС
Характеристики 626 м² 2 - 4 этаж Готово к въезду
Преимущества
  • Класс B+
  • Пешком от метро
  • Кондиционирование и вентиляция
  • Развитая инфраструктура

Предлагаем в прямую аренду офис класса B+ площадью 626 квадр. метров в бизнес-центре... подробнее

Презентация по предложению

Собираете информацию? Получите подробную презентацию в удобном формате!

БЕЗ КОМИССИИ ID: 1298084 Рейтинг7.5 КлассB

Москва, улица Щипок, 5

Серпуховская → 296 м
~ 3 мин
Арендная плата в месяц 1 613 792 ₽ 38 500 ₽/м² в год С учётом НДС
Характеристики 503 м² 1 этаж Готово к въезду
Преимущества
  • Класс B
  • Пешком от метро
  • Кондиционирование и вентиляция
  • Свой паркинг

Предлагаем в долгосрочную прямую аренду офисный блок класса B общей площадью 503 кв.м в бизнес-центре... подробнее

Презентация по предложению

Собираете информацию? Получите подробную презентацию в удобном формате!

БЕЗ КОМИССИИ ID: 1312990 Рейтинг7.8 КлассB

Москва, улица Большая Ордынка, 44 с1

Полянка → 515 м
~ 5 мин
Арендная плата в месяц 1 991 250 ₽ 45 000 ₽/м² в год Упрощённая система налогообложения
Характеристики 531 м² -1 - 3 этаж Готово к въезду
Преимущества
  • Класс B
  • Пешком от метро
  • Кондиционирование и вентиляция
  • Свой паркинг

Сдается в долгосрочную прямую аренду здание под офис класса B общей площадью 531 квадр. метров. .. подробнее

>

Виртуальный тур

Презентация по предложению

Собираете информацию? Получите подробную презентацию в удобном формате!

Посмотреть все похожие предложения
Отнеситесь рационально к процессу поиска нового офиса!

Просто ответьте на 3 вопроса, и наши специалисты сами предложат оптимальные варианты под ваш бюджет

.