8.2

Виртуальный тур

Смотреть все фото
БЕЗ КОМИССИИ ID: 1054260 Рейтинг7.8 КлассB+
Бизнес-центр «Золотой Век»

Аренда офиса 240 м²

Москва, 3-я улица Ямского Поля, 18

Белорусская → 882 м
~ 9 мин
Арендная плата в месяц 756 000 ₽ 37 800 ₽/м² в год С учётом НДС

Презентация по предложению

Собираете информацию? Получите подробную презентацию в удобном формате!

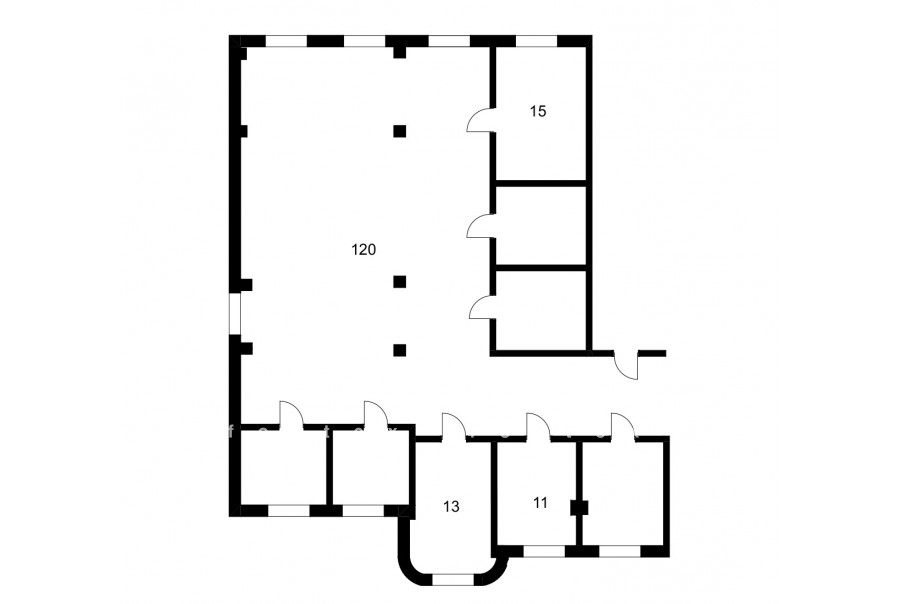
Площадь 240 м²
Состояние Готово к въезду
Планировка Смешанная
Этаж 3

Описание

Преимущества
  • Класс B+
  • Пешком от метро
  • Кондиционирование и вентиляция
  • Свой паркинг
  • Развитая инфраструктура
Предлагается в прямую аренду помещение под офис класса B+ площадью 240 квадр. метров в бизнес-центре "Золотой Век".

Москва, САО, 3-я улица Ямского Поля, 18

Удобная локация здания:
- Автомобиль: близость транспортных магистралей, таких как Третье Транспортное Кольцо, Ленинградский проспект и других.
- Возможность аренды парковочных мест.
- Ближайшее метро: от метро "Белорусская" всего 8 мин пешком

Офис класса B+:
- Офис с отделкой, полностью готов к аренде
- Вентиляция: Приточно-вытяжная вентиляция
- Кондиционирование: центральное
- Круглосуточная охрана и видеонаблюдение
- Развитая инфраструктура внутри здания


Если данное предложение подходит Вашему запросу:

1. Мы подготовили презентацию с информацией о помещении, фотографиями и планировкой, чтобы Вы могли поделиться ей с коллегами или руководством. Попросите об этом нашего менеджера по телефону в объявлении.
2. Мы готовы ответить на любые Ваши вопросы о помещении и коммерческих условиях аренды.
3.

Вы можете позвонить нам в любое время. Мы ответим на Ваши вопросы по будням до 19:00, а поздно вечером или в выходные зафиксируем Ваш контакт и перезвоним в рабочее время.

Коммерческие условия

Арендная плата 500 000 ₽
Ставка арендной платы 37 800 ₽ м²/год
Эксплуатационные расходы Включены в ставку
Налоги С учётом НДС
Тип договора Прямая аренда
Срок договора от 11 месяцев
Размер платежей 1 месяц
Обеспечительный платеж 1 месяц
Статус Сдан

О бизнес-центре

Класс B+
Этажность 9
Лифты Есть
Общая площадь 8 470 м²
Год постройки 2004
Паркинг Наземный
Вентиляция приточно-вытяжная
Кондиционирование центральное
Телекоммуникации Интернет/Телефония

Расположение

Подробная презентацию по предложению

Собираете информацию? Получите подробную презентацию в удобном формате, чтобы обсудить вариант с коллегами или переслать руководству!

Похожие предложения в других зданиях

БЕЗ КОМИССИИ ID: 971141 Рейтинг6.9 КлассB

Москва, 1-я Брестская улица, 62

Белорусская → 232 м
~ 2 мин
Арендная плата в месяц 700 000 ₽ 37 500 ₽/м² в год С учётом НДС
Характеристики 224 м² 1 этаж Под отделку
Преимущества
  • Класс B
  • Пешком от метро
  • Кондиционирование и вентиляция
  • Развитая инфраструктура

Собственник сдает в долгосрочную аренду помещение под офис класса B общей площадью 224 кв.м в бизнес-центре... подробнее

Презентация по предложению

Собираете информацию? Получите подробную презентацию в удобном формате!

БЕЗ КОМИССИИ ID: 1324804 Рейтинг8.4 КлассB+

Москва, улица Бутырский Вал, 68/70 с1

Савеловская → 704 м
~ 7 мин
Арендная плата в месяц 709 333 ₽ 38 000 ₽/м² в год С учётом НДС
Характеристики 224 м² 2 этаж Готово к въезду
Преимущества
  • Класс B+
  • Пешком от метро
  • Кондиционирование и вентиляция
  • Свой паркинг
  • Несколько провайдеров связи

Предлагаем в долгосрочную аренду офис класса B+ общей площадью 224 кв.м в бизнес-центре "Бейкер Плаза"... подробнее

>

Виртуальный тур

Презентация по предложению

Собираете информацию? Получите подробную презентацию в удобном формате!

БЕЗ КОМИССИИ ID: 1246837 Рейтинг8.4 КлассB+

Москва, 1-я Тверская-Ямская улица, 23 с1

Белорусская → 431 м
~ 4 мин
Арендная плата в месяц 871 530 ₽ 37 600 ₽/м² в год С учётом НДС
Характеристики 278 м² 9 этаж Готово к въезду
Преимущества
  • Класс B+
  • Пешком от метро
  • Кондиционирование и вентиляция
  • Свой паркинг
  • Несколько провайдеров связи
  • Развитая инфраструктура

Предлагается в долгосрочную прямую аренду помещение под офис класса B+ общей площадью 278 кв.м в бизнес-центре "Парус"... подробнее

>

Виртуальный тур

Презентация по предложению

Собираете информацию? Получите подробную презентацию в удобном формате!

БЕЗ КОМИССИИ ID: 1269807 Рейтинг8.4 КлассB+

Москва, 1-я Тверская-Ямская улица, 23 с1

Белорусская → 431 м
~ 4 мин
Арендная плата в месяц 736 725 ₽ 37 600 ₽/м² в год С учётом НДС
Характеристики 235 м² 4 этаж Готово к въезду
Преимущества
  • Класс B+
  • Пешком от метро
  • Кондиционирование и вентиляция
  • Свой паркинг
  • Несколько провайдеров связи
  • Развитая инфраструктура

Предлагается в долгосрочную аренду офисное помещение класса B+ общей площадью 235 кв. метров в бизнес-центре "Парус"... подробнее

>

Виртуальный тур

Презентация по предложению

Собираете информацию? Получите подробную презентацию в удобном формате!

БЕЗ КОМИССИИ ID: 942634 Рейтинг8.9 КлассА

Москва, Новослободская улица, 41

Менделеевская → 207 м
~ 2 мин
Арендная плата в месяц 676 368 ₽ 32 200 ₽/м² в год С учётом НДС
Характеристики 252 м² 4 этаж Готово к въезду
Преимущества
  • Класс А
  • Пешком от метро
  • Кондиционирование и вентиляция
  • Свой паркинг

Сдаем в долгосрочную аренду офис класса А площадью 252 кв.м в бизнес-центре "Чайка Плаза 7"... подробнее

Презентация по предложению

Собираете информацию? Получите подробную презентацию в удобном формате!

Посмотреть все похожие предложения
Отнеситесь рационально к процессу поиска нового офиса!

Просто ответьте на 3 вопроса, и наши специалисты сами предложат оптимальные варианты под ваш бюджет

.