8.2

Виртуальный тур

Смотреть все фото
БЕЗ КОМИССИИ ID: 307446 Рейтинг8.1 КлассB

Москва, Зубовский бульвар, 17 с1

Парк культуры → 220 м
~ 2 мин
Арендная плата в месяц 5 001 200 ₽ 81 100 ₽/м² в год С учётом НДС

Презентация по предложению

Собираете информацию? Получите подробную презентацию в удобном формате!

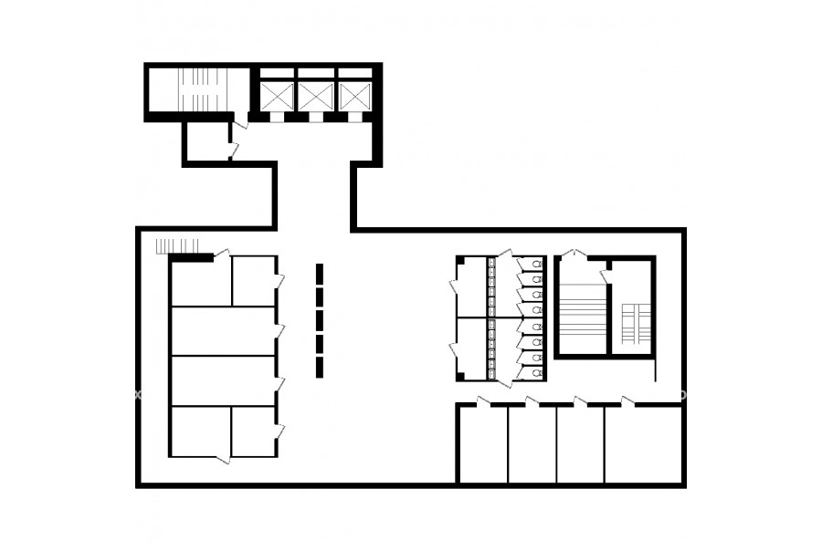
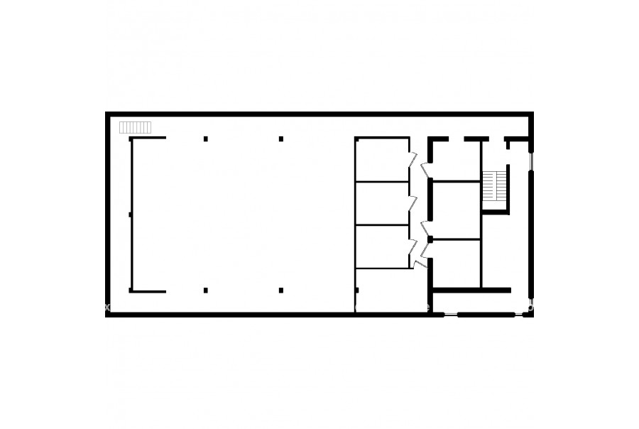
Площадь 740 м²
Состояние Готово к въезду
Планировка Смешанная
Этаж 8 - 9

Описание

Преимущества
  • Класс B
  • Пешком от метро
  • Кондиционирование и вентиляция
  • Свой паркинг
  • Развитая инфраструктура
Собственник сдает в долгосрочную прямую аренду офис класса B площадью 740 квадр. метров в бизнес-центре.

Москва, ЦАО, Зубовский бульвар, 17 с1

Удобное расположение здания для всех видов транспорта:
- Автомобиль: близость транспортных магистралей, таких как Садовое Кольцо, Комсомольский проспект и других.
- Возможность аренды парковочных мест.
- Ближайшее метро: буквально 3 мин пешком от метро "Парк культуры"

Офис класса B:
- Помещение с отделкой, готово к въезду


Если предложение предварительно Вам подходит:

1. Получите презентацию в течение 10 минут в Whatsapp или на почту с фотографиями и планировкой, чтобы обсудить данный вариант с коллегами или переслать руководству. Для этого позвоните по телефону, указанному в объявлении.
2. Задайте любые вопросы менеджеру по телефону, готовы обсуждать любые предложения по финансовым условиям договора аренды.
3.

Звоните нам в любое время. По будням мы сможем ответить на Ваши вопросы до 19:00. В выходные или вечернее время мы передадим Ваш контакт нашему менеджеру по аренде.

Коммерческие условия

Арендная плата 5 000 060 ₽
Ставка арендной платы 81 100 ₽ м²/год
Эксплуатационные расходы Включены в ставку
Налоги С учётом НДС
Тип договора Прямая аренда
Срок договора Долгосрочный
Размер платежей 1 месяц
Обеспечительный платеж 2 месяц
Статус Сдан

О бизнес-центре

Класс B
Этажность 9
Лифты Есть
Общая площадь 10 413 м²
Год постройки 1978
Паркинг Наземный
Вентиляция приточно-вытяжная
Кондиционирование центральное
Телекоммуникации Интернет/Телефония

Расположение

Подробная презентацию по предложению

Собираете информацию? Получите подробную презентацию в удобном формате, чтобы обсудить вариант с коллегами или переслать руководству!

Похожие предложения в других зданиях

БЕЗ КОМИССИИ ID: 222154 Рейтинг8.7 КлассА

Москва, Бутиковский переулок, 7

Парк культуры → 778 м
~ 8 мин
Арендная плата в месяц 4 610 392 ₽ 76 100 ₽/м² в год С учётом НДС
Характеристики 727 м² 5 этаж Готово к въезду
Преимущества
  • Класс А
  • Пешком от метро
  • Кондиционирование и вентиляция
  • Свой паркинг
  • Развитая инфраструктура

Сдаем в долгосрочную прямую аренду помещение под офис класса А общей площадью 727 квадратных метров в бизнес-центре "Бутик-Офис"... подробнее

Презентация по предложению

Собираете информацию? Получите подробную презентацию в удобном формате!

БЕЗ КОМИССИИ ID: 1232432 Рейтинг8.9 КлассА

Москва, Барыковский переулок, 2

Кропоткинская → 597 м
~ 6 мин
Арендная плата в месяц 5 159 850 ₽ 73 800 ₽/м² в год С учётом НДС
Характеристики 839 м² 5 - 6 этаж Готово к въезду
Преимущества
  • Класс А
  • Пешком от метро
  • Кондиционирование и вентиляция
  • Свой паркинг

Сдаем в долгосрочную прямую аренду офисный блок класса А площадью 839 кв. метров в бизнес-центре "Ост Хаус"... подробнее

Презентация по предложению

Собираете информацию? Получите подробную презентацию в удобном формате!

БЕЗ КОМИССИИ ID: 201515 Рейтинг8.9 КлассА

Москва, Барыковский переулок, 2

Кропоткинская → 597 м
~ 6 мин
Арендная плата в месяц 4 243 500 ₽ 73 800 ₽/м² в год С учётом НДС
Характеристики 690 м² 5 - 6 этаж Готово к въезду
Преимущества
  • Класс А
  • Пешком от метро
  • Кондиционирование и вентиляция
  • Свой паркинг

Сдаем в долгосрочную аренду помещение под офис класса А общей площадью 690 квадр. метров в бизнес-центре "Ост Хаус"... подробнее

Презентация по предложению

Собираете информацию? Получите подробную презентацию в удобном формате!

ВОЗМОЖНО ОСВОБОЖДЕНИЕ ID: 1292177 Рейтинг8.6 КлассА

Москва, улица Усачева, 2 с1

Фрунзенская → 575 м
~ 6 мин
Арендная плата в месяц 4 868 631 ₽ 78 600 ₽/м² в год С учётом НДС
Характеристики 743 м² 4 этаж Готово к въезду
Преимущества
  • Класс А
  • Пешком от метро
  • Кондиционирование и вентиляция
  • Свой паркинг
  • Несколько провайдеров связи
  • Развитая инфраструктура

Предлагаем в долгосрочную аренду офис класса А площадью 743 квадр. метров в бизнес-центре "Фьюжн Парк"... подробнее

Презентация по предложению

Собираете информацию? Получите подробную презентацию в удобном формате!

БЕЗ КОМИССИИ ID: 1183249 Рейтинг9.3 КлассА

Москва, Гоголевский бульвар, 11

Кропоткинская → 193 м
~ 3 мин
Арендная плата в месяц 4 199 100 ₽ 70 000 ₽/м² в год С учётом НДС
Характеристики 720 м² 3 этаж Готово к въезду
Преимущества
  • Класс А
  • Пешком от метро
  • Кондиционирование и вентиляция
  • Свой паркинг

Предлагаем в прямую аренду помещение под офис класса А общей площадью 720 кв.м в бизнес-центре "Гоголевский"... подробнее

>

Виртуальный тур

Презентация по предложению

Собираете информацию? Получите подробную презентацию в удобном формате!

Посмотреть все похожие предложения
Отнеситесь рационально к процессу поиска нового офиса!

Просто ответьте на 3 вопроса, и наши специалисты сами предложат оптимальные варианты под ваш бюджет

.