8.2
Смотреть все фото
БЕЗ КОМИССИИ ID: 1326880

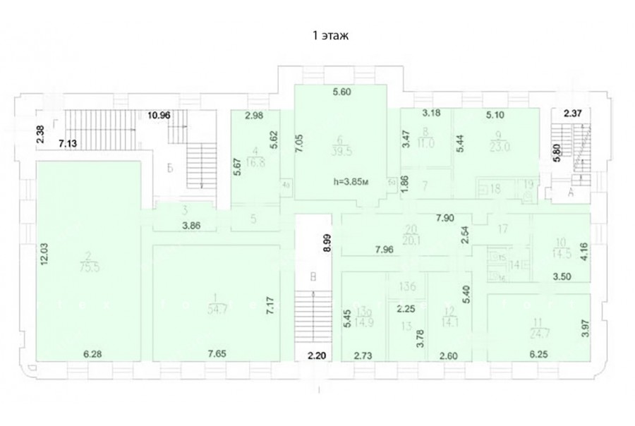
Помещение под офис 1814 кв.м

Москва, Большой Харитоньевский переулок, 10/1

Чистые пруды → 537 м
~ 5 мин
Стоимость 920 млн ₽ 507 200 ₽/м²

Презентация по предложению

Собираете информацию? Получите подробную презентацию в удобном формате!

Тип помещения Офисное
Состояние С отделкой
Тип здания
Этаж -1 - 3

Описание

На продажу предлагается помещение под офис площадью 1814 кв.м, смешанной планировки, расположенное в особняке.

Коммерческие условия

Стоимость 919 999 100 ₽
Цена 507 200 ₽ за кв.м
Схема сделки по запросу
Свидетельство собственности есть
Объем продажи помещение в здании

Окружение

Проживает поблизости
Работает поблизости
Близость к метро 537 м
Пассажиропоток метро ≈ 33700 чел

Расположение

Подробная презентацию по предложению

Собираете информацию? Получите подробную презентацию в удобном формате, чтобы обсудить вариант с коллегами или переслать руководству!

Отнеситесь рационально к процессу поиска нового офиса!

Просто ответьте на 3 вопроса, и наши специалисты сами предложат оптимальные варианты под ваш бюджет

.