Аренда офисов в бизнес-центре 1-й Красносельский 9А

БЕЗ КОМИССИИ ID: 159270 Рейтинг бизнес-центра8.5 КлассB
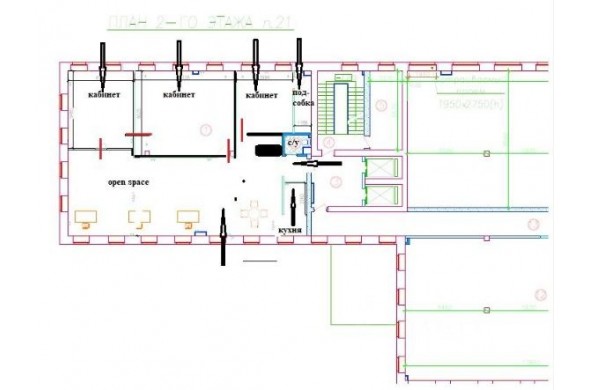
Площадь 540 м²
Арендная плата в месяц 630 000 ₽ 14 000 ₽/м² С учётом НДС
3 этаж
Готово к въезду
Открытая планировка
Для получения консультации позвоните по телефону +7 (926) 018-76-11

Презентация по предложению

Собираете информацию? Получите подробную презентацию в удобном формате!

О бизнес-центре
Класс B
Этажность 4
Общая площадь 6 000 м²
Год постройки 2015
Паркинг Наземный
Вентиляция приточно-вытяжная
Кондиционирование центральное
Коммерческие условия
Арендная плата 630 000 ₽
Ставка арендной платы 14 000 ₽ м²/год
Эксплуатационные расходы Включены в ставку
Налоги С учётом НДС
Тип договора Прямая аренда
Срок договора от 11 месяцев
Размер платежей 1 месяц
Обеспечительный платеж 2 месяц
БЕЗ КОМИССИИ ID: 159273 Рейтинг бизнес-центра8.5 КлассB
Площадь 810 м²
Арендная плата в месяц 945 000 ₽ 14 000 ₽/м² С учётом НДС
2 - 3 этаж
Готово к въезду
Открытая планировка
Для получения консультации позвоните по телефону +7 (925) 575-40-52

Презентация по предложению

Собираете информацию? Получите подробную презентацию в удобном формате!

О бизнес-центре
Класс B
Этажность 4
Общая площадь 6 000 м²
Год постройки 2015
Паркинг Наземный
Вентиляция приточно-вытяжная
Кондиционирование центральное
Коммерческие условия
Арендная плата 945 000 ₽
Ставка арендной платы 14 000 ₽ м²/год
Эксплуатационные расходы Включены в ставку
Налоги С учётом НДС
Тип договора Прямая аренда
Срок договора от 11 месяцев
Размер платежей 1 месяц
Обеспечительный платеж 2 месяц
Предложения в похожих зданиях в Москве:
Площадь Арендная плата Класс
Посмотрите все предложения в близи БЦ «1-й Красносельский 9А»:
Каталог обновлен 27 Мая 2026
Получите каталог помещений!

Подберем предложения по Вашим критериям и пришлем в течение 15 минут!

Контакты

Адрес
Москва, 1-й Красносельский переулок, 9А
Телефон для связи
Получите подробную презентацию

Подробная презентация по офисным помещениям в
бизнес-центре «1-й Красносельский 9А» уже готова!

.