8.2

Виртуальный тур

Смотреть все фото
БЕЗ КОМИССИИ ID: 1378383 Рейтинг7.6 КлассB
Бизнес-центр «1-й Рижский 2Г»

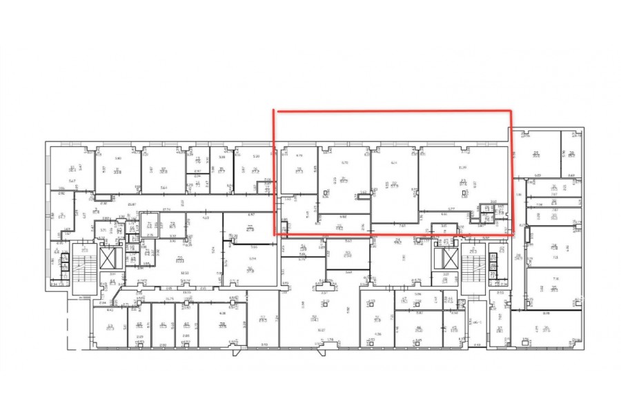
Аренда офиса 227 м²

Москва, 1-й Рижский переулок, 2Г

Алексеевская → 1.28 км
~ 13 мин
Арендная плата в месяц 507 700 ₽ 26 800 ₽/м² в год С учётом НДС

Презентация по предложению

Собираете информацию? Получите подробную презентацию в удобном формате!

Площадь 227 м²
Состояние Готово к въезду
Планировка Кабинетная
Этаж 2

Описание

Преимущества
  • Класс B
  • Пешком от метро
  • Кондиционирование и вентиляция
  • Свой паркинг
Предлагается в долгосрочную аренду офисное помещение класса B общей площадью 227 квадратных метров в историческом бизнес-центре.

Москва, СВАО, 1-й Рижский переулок, 2Г

Удобная локация здания:
- Автомобиль: близость транспортных магистралей, таких как Третье Транспортное Кольцо, Проспект Мира и других.
- Возможность аренды парковочных мест.
- Ближайшее метро: от метро "Алексеевская" всего 13 мин пешком

Офис класса B:
- Офис с отделкой, полностью готов к аренде
- Вентиляция: Приточно-вытяжная вентиляция
- Кондиционирование: центральное
- Круглосуточная охрана и видеонаблюдение


Если предложение предварительно Вам подходит:

1. Мы подготовили презентацию с информацией о помещении, фотографиями и планировкой, чтобы Вы могли поделиться ей с коллегами или руководством. Попросите об этом нашего менеджера по телефону в объявлении.
2. Ответим на любые Ваши вопросы, готовы обсуждать любые предложения по коммерческим условиям аренды помещения.
3.

Вы можете позвонить нам в любое время. Мы ответим на Ваши вопросы по будням до 19:00, а поздно вечером или в выходные зафиксируем Ваш контакт и перезвоним в рабочее время.

Коммерческие условия

Арендная плата 507 720 ₽
Ставка арендной платы 22 000 ₽ м²/год
Эксплуатационные расходы Включены в ставку
Налоги Без НДС
Тип договора Прямая аренда
Срок договора от 11 месяцев
Размер платежей 1 месяц
Обеспечительный платеж 1 месяц
Статус Свободен

О бизнес-центре

Класс B
Этажность 6
Лифты Есть
Общая площадь 7 200 м²
Год постройки 1964
Паркинг Наземный
Вентиляция приточно-вытяжная
Кондиционирование центральное
Телекоммуникации Интернет/Телефония

Расположение

Подробная презентацию по предложению

Собираете информацию? Получите подробную презентацию в удобном формате, чтобы обсудить вариант с коллегами или переслать руководству!

Похожие предложения в других зданиях

БЕЗ КОМИССИИ ID: 1376160 Рейтинг5.0 КлассB

Москва, 3-я Мытищинская улица, 16 с14

Алексеевская → 722 м
~ 7 мин
Арендная плата в месяц 371 700 ₽ 18 900 ₽/м² в год С учётом НДС
Характеристики 236 м² 2 этаж Готово к въезду
Преимущества
  • Класс B
  • Пешком от метро

Сдается в долгосрочную аренду помещение под офис класса B общей площадью 236 кв. метров в бизнес-центре... подробнее

Презентация по предложению

Собираете информацию? Получите подробную презентацию в удобном формате!

БЕЗ КОМИССИИ ID: 1376084 Рейтинг5.0 КлассB

Москва, 3-я Мытищинская улица, 16 с14

Алексеевская → 722 м
~ 7 мин
Арендная плата в месяц 315 000 ₽ 18 900 ₽/м² в год С учётом НДС
Характеристики 200 м² -1 этаж Готово к въезду
Преимущества
  • Класс B
  • Пешком от метро

Предлагаем в аренду офисное помещение класса B общей площадью 200 квадр. метров в бизнес-центре... подробнее

Презентация по предложению

Собираете информацию? Получите подробную презентацию в удобном формате!

БЕЗ КОМИССИИ ID: 289704 Рейтинг7.8 КлассB+

Москва, Зубарев переулок, 15 к1

Алексеевская → 644 м
~ 6 мин
Арендная плата в месяц 442 750 ₽ 21 000 ₽/м² в год С учётом НДС
Характеристики 253 м² 4 этаж Готово к въезду
Преимущества
  • Класс B+
  • Пешком от метро
  • Кондиционирование и вентиляция
  • Свой паркинг
  • Несколько провайдеров связи
  • Развитая инфраструктура

Сдается в долгосрочную аренду офисный блок класса B+ общей площадью 253 кв. метров в бизнес-центре "Чайка Плаза 1"... подробнее

Презентация по предложению

Собираете информацию? Получите подробную презентацию в удобном формате!

БЕЗ КОМИССИИ ID: 1372972 Рейтинг6.3 КлассB

Москва, проезд Ольминского, 3a c3

Алексеевская → 860 м
~ 9 мин
Арендная плата в месяц 383 167 ₽ 22 000 ₽/м² в год Упрощённая система налогообложения
Характеристики 209 м² 2 - 6 этаж Готово к въезду
Преимущества
  • Класс B
  • Пешком от метро
  • Кондиционирование и вентиляция
  • Свой паркинг

Сдается в долгосрочную аренду офис класса B общей площадью 209 квадр. метров в бизнес-центре... подробнее

Презентация по предложению

Собираете информацию? Получите подробную презентацию в удобном формате!

БЕЗ КОМИССИИ ID: 1373894 Рейтинг6.3 КлассB

Москва, проезд Ольминского, 3a c3

Алексеевская → 860 м
~ 9 мин
Арендная плата в месяц 379 500 ₽ 22 000 ₽/м² в год Упрощённая система налогообложения
Характеристики 207 м² 6 этаж Готово к въезду
Преимущества
  • Класс B
  • Пешком от метро
  • Кондиционирование и вентиляция
  • Свой паркинг

Сдается в долгосрочную аренду офисное помещение класса B площадью 207 кв. метров в бизнес-центре... подробнее

Презентация по предложению

Собираете информацию? Получите подробную презентацию в удобном формате!

Посмотреть все похожие предложения
Отнеситесь рационально к процессу поиска нового офиса!

Просто ответьте на 3 вопроса, и наши специалисты сами предложат оптимальные варианты под ваш бюджет

.