8.2
Смотреть все фото
БЕЗ КОМИССИИ ID: 261030 Рейтинг7.4 КлассB
Бизнес-центр «1-й Рижский 2Г»

Аренда офиса 936 м²

Москва, 1-й Рижский переулок, 2Г

Алексеевская → 1.28 км
~ 13 мин
Арендная плата в месяц 2 363 400 ₽ 30 300 ₽/м² в год С учётом НДС

Презентация по предложению

Собираете информацию? Получите подробную презентацию в удобном формате!

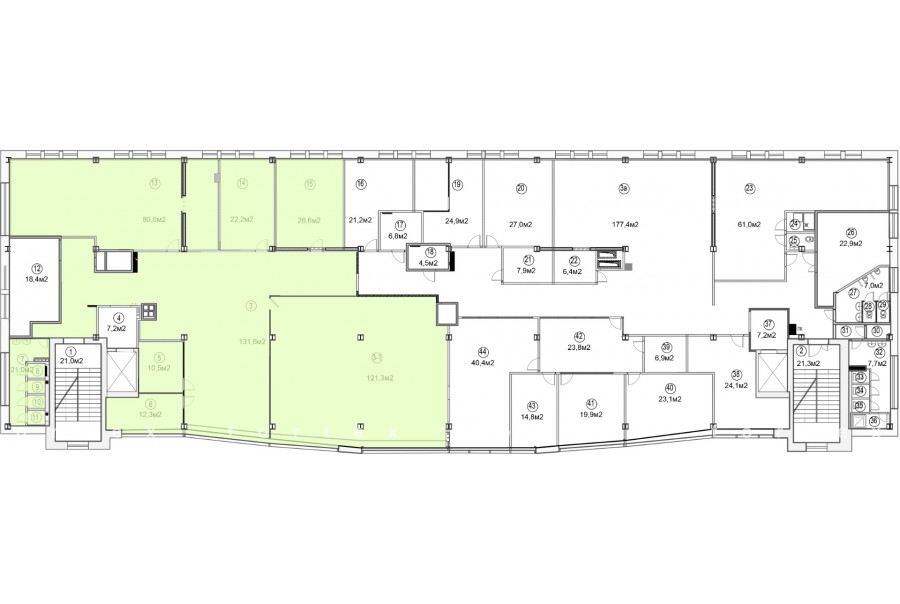
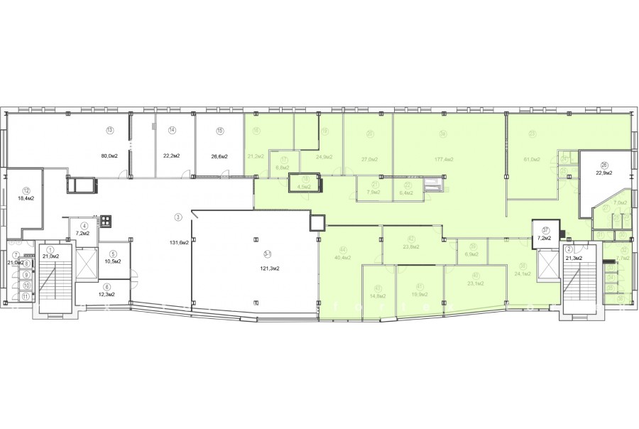
Площадь 936 м²
Состояние Готово к въезду
Планировка Смешанная
Этаж 5

Описание

Преимущества
  • Класс B
  • Пешком от метро
  • Кондиционирование и вентиляция
  • Свой паркинг
Предлагаем в долгосрочную прямую аренду помещение под офис класса B площадью 936 квадратных метров в историческом бизнес-центре.

Москва, СВАО, 1-й Рижский переулок, 2Г

Удобная локация здания:
- Автомобиль: близость транспортных магистралей, таких как Третье Транспортное Кольцо, Проспект Мира и других.
- Возможность аренды парковочных мест.
- Ближайшее метро: от метро "Алексеевская" всего 13 мин пешком

Офис класса B:
- Офис с отделкой, полностью готов к аренде
- Вентиляция: Приточно-вытяжная вентиляция
- Кондиционирование: центральное
- Круглосуточная охрана и видеонаблюдение

Возможность заключения контракта в соответствии с 44ФЗ по госзакупкам.

Что еще можно узнать о предложении:

1. Мы отправим Вам подробную презентацию с планировкой и фотографиями в течение 10 минут после звонка, чтобы Вы могли поделиться информацией с руководством или с коллегами.
2. Мы готовы ответить на любые Ваши вопросы о помещении и коммерческих условиях аренды.
3. Покажем помещение в удобное для Вас время с менеджером в здании, при необходимости подготовим виртуальный тур.

Вы можете позвонить нам в любое время. Мы ответим на Ваши вопросы по будням до 19:00, а поздно вечером или в выходные зафиксируем Ваш контакт и перезвоним в рабочее время.

Коммерческие условия

Арендная плата 1 638 000 ₽
Ставка арендной платы 30 300 ₽ м²/год
Эксплуатационные расходы Включены в ставку
Налоги С учётом НДС
Тип договора Прямая аренда
Срок договора от 11 месяцев
Размер платежей 1 месяц
Обеспечительный платеж 1 месяц
Статус Сдан

О бизнес-центре

Класс B
Этажность 6
Лифты Есть
Общая площадь 7 200 м²
Год постройки 1964
Паркинг Наземный
Вентиляция приточно-вытяжная
Кондиционирование центральное
Телекоммуникации Интернет/Телефония

Расположение

Подробная презентацию по предложению

Собираете информацию? Получите подробную презентацию в удобном формате, чтобы обсудить вариант с коллегами или переслать руководству!

Похожие предложения в других зданиях

БЕЗ КОМИССИИ ID: 1317176 Рейтинг7.3 КлассB

Москва, Графский переулок, 12А с1

Алексеевская → 941 м
~ 9 мин
Арендная плата в месяц 2 100 006 ₽ 25 900 ₽/м² в год С учётом НДС
Характеристики 972 м² 1 - 2 этаж Готово к въезду
Преимущества
  • Класс B
  • Пешком от метро
  • Кондиционирование и вентиляция
  • Свой паркинг
  • Несколько провайдеров связи

Предлагается в долгосрочную аренду офисное помещение класса B площадью 972 квадратных метров в бизнес-центре... подробнее

Презентация по предложению

Собираете информацию? Получите подробную презентацию в удобном формате!

БЕЗ КОМИССИИ ID: 209679 Рейтинг7.3 КлассB

Москва, Графский переулок, 12А с1

Алексеевская → 941 м
~ 9 мин
Арендная плата в месяц 1 877 083 ₽ 26 500 ₽/м² в год С учётом НДС
Характеристики 850 м² 3 этаж Готово к въезду
Преимущества
  • Класс B
  • Пешком от метро
  • Кондиционирование и вентиляция
  • Свой паркинг
  • Несколько провайдеров связи

Предлагаем в долгосрочную прямую аренду офисный блок класса B площадью 850 кв.м в бизнес-центре... подробнее

Презентация по предложению

Собираете информацию? Получите подробную презентацию в удобном формате!

БЕЗ КОМИССИИ ID: 1285076 Рейтинг8.3 КлассB+

Москва, Ракетный бульвар, 16

ВДНХ → 1.07 км
~ 11 мин
Арендная плата в месяц 2 131 800 ₽ 26 400 ₽/м² в год С учётом НДС
Характеристики 969 м² 11 - 12 этаж Готово к въезду
Преимущества
  • Класс B+
  • Пешком от метро
  • Кондиционирование и вентиляция
  • Свой паркинг
  • Развитая инфраструктура

Сдается в долгосрочную аренду офис класса B+ общей площадью 1297 кв. метров в бизнес-центре "Алексеевская Башня"... подробнее

Презентация по предложению

Собираете информацию? Получите подробную презентацию в удобном формате!

БЕЗ КОМИССИИ ID: 1291685 Рейтинг6.6 КлассB

Москва, проспект Мира, 105 с1

ВДНХ → 764 м
~ 11 мин
Арендная плата в месяц 2 264 167 ₽ 28 600 ₽/м² в год С учётом НДС
Характеристики 950 м² 4 этаж Готово к въезду
Преимущества
  • Класс B
  • Пешком от метро
  • Кондиционирование и вентиляция
  • Свой паркинг
  • Развитая инфраструктура

Собственник сдает в долгосрочную прямую аренду помещение под офис класса B общей площадью 950 кв. метров в историческом бизнес-центре "Московская типография №2"... подробнее

>

Виртуальный тур

Презентация по предложению

Собираете информацию? Получите подробную презентацию в удобном формате!

БЕЗ КОМИССИИ ID: 1200524 Рейтинг9.0 КлассА

Москва, улица Годовикова, 9 с17

Алексеевская → 681 м
~ 7 мин
Арендная плата в месяц 2 767 372 ₽ 31 500 ₽/м² в год С учётом НДС
Характеристики 1 053 м² 2 этаж Готово к въезду
Преимущества
  • Класс А
  • Пешком от метро
  • Новое строительство
  • Кондиционирование и вентиляция

Собственник сдает в долгосрочную аренду офисное помещение класса А площадью 1053 квадратных метров в современном бизнес-центре "Калибр-Парк"... подробнее

Презентация по предложению

Собираете информацию? Получите подробную презентацию в удобном формате!

Посмотреть все похожие предложения
Отнеситесь рационально к процессу поиска нового офиса!

Просто ответьте на 3 вопроса, и наши специалисты сами предложат оптимальные варианты под ваш бюджет

.