Продажа офисов в бизнес-центре 2-я Машиностроения 27 с6

БЕЗ КОМИССИИ ID: 1378810 Рейтинг бизнес-центра8.8 КлассB+
Площадь 112 м²
Стоимость 28.56 млн ₽ 255 000 ₽/м²
5 этаж
Готово к въезду
Открытая планировка
Для получения консультации позвоните по телефону +7 (495) 023-10-18

Презентация по предложению

Собираете информацию? Получите подробную презентацию в удобном формате!

О бизнес-центре
Класс B+
Этажность 6
Общая площадь 5 267 м²
Год постройки 1970
Паркинг Наземный
Вентиляция приточно-вытяжная
Кондиционирование центральное
БЕЗ КОМИССИИ ID: 1305783 Рейтинг бизнес-центра8.8 КлассB+
Площадь 112 м²
Стоимость 28.5 млн ₽ 254 500 ₽/м²
5 этаж
Готово к въезду
Смешанная планировка
Для получения консультации позвоните по телефону +7 (495) 023-10-18

Презентация по предложению

Собираете информацию? Получите подробную презентацию в удобном формате!

О бизнес-центре
Класс B+
Этажность 6
Общая площадь 5 267 м²
Год постройки 1970
Паркинг Наземный
Вентиляция приточно-вытяжная
Кондиционирование центральное
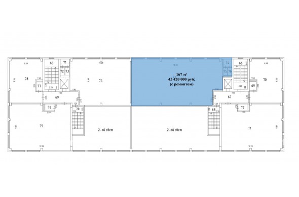
БЕЗ КОМИССИИ ID: 1308688 Рейтинг бизнес-центра8.8 КлассB+
Площадь 167 м²
Стоимость 42.6 млн ₽ 255 100 ₽/м²
6 этаж
Готово к въезду
Смешанная планировка
Для получения консультации позвоните по телефону +7 (495) 023-10-18

Презентация по предложению

Собираете информацию? Получите подробную презентацию в удобном формате!

О бизнес-центре
Класс B+
Этажность 6
Общая площадь 5 267 м²
Год постройки 1970
Паркинг Наземный
Вентиляция приточно-вытяжная
Кондиционирование центральное
Предложения в похожих зданиях в Москве:
Площадь Арендная плата Класс
Посмотрите все предложения в близи БЦ «2-я Машиностроения 27 с6»:
Каталог обновлен 15 Апреля 2026
Получите каталог помещений!

Подберем предложения по Вашим критериям и пришлем в течение 15 минут!

Контакты

Адрес
Москва, 2-я улица Машиностроения, 27 с6
Телефон для связи
Получите подробную презентацию

Подробная презентация по офисным помещениям в
бизнес-центре «2-я Машиностроения 27 с6» уже готова!

.