8.2
Смотреть все фото
БЕЗ КОМИССИИ ID: 1324697 Рейтинг7.2 КлассB

Москва, 5-я улица Ямского Поля, 7 к2

Белорусская → 1.07 км
~ 13 мин
Арендная плата в месяц 2 300 000 ₽ 30 100 ₽/м² в год С учётом НДС

Презентация по предложению

Собираете информацию? Получите подробную презентацию в удобном формате!

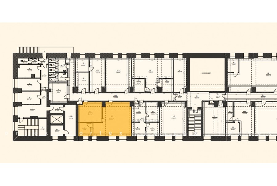
Площадь 918 м²
Состояние Готово к въезду
Планировка Смешанная
Этаж 3

Описание

Преимущества
  • Класс B
  • Пешком от метро
  • Кондиционирование и вентиляция
  • Свой паркинг
  • Несколько провайдеров связи
  • Развитая инфраструктура
Предлагаем в долгосрочную аренду офисный блок класса B площадью 918 квадратных метров в историческом недавно отреконструированном бизнес-центре.

Москва, САО, 5-я улица Ямского Поля, 7 к2

Удобная локация здания:
- Автомобиль: близость транспортных магистралей, таких как Третье Транспортное Кольцо, Ленинградский проспект, Бутырская улица и других.
- Возможность аренды парковочных мест.
- Ближайшее метро: от метро "Белорусская" всего 10 мин пешком

Офис класса B:
- Офис с отделкой, полностью готов к аренде
- Вентиляция: Приточно-вытяжная вентиляция
- Кондиционирование: сплит-системы
- Круглосуточная охрана и видеонаблюдение
- Развитая инфраструктура внутри здания

Возможность заключения контракта в соответствии с 44ФЗ по госзакупкам.

Что еще можно узнать о предложении:

1. Получите презентацию в течение 10 минут в Whatsapp или на почту с фотографиями и планировкой, чтобы обсудить данный вариант с коллегами или переслать руководству. Для этого позвоните по телефону, указанному в объявлении.
2. Мы готовы ответить на любые Ваши вопросы о помещении и коммерческих условиях аренды.
3. Покажем помещение в удобное для Вас время с менеджером в здании, при необходимости подготовим виртуальный тур.

Звоните нам в любое время. По будням мы сможем ответить на Ваши вопросы до 19:00. В выходные или вечернее время мы передадим Ваш контакт нашему менеджеру по аренде.

Коммерческие условия

Арендная плата 2 300 050 ₽
Ставка арендной платы 30 100 ₽ м²/год
Эксплуатационные расходы Включены в ставку
Налоги С учётом НДС
Тип договора Прямая аренда
Срок договора от 11 месяцев
Размер платежей 1 месяц
Обеспечительный платеж 2 месяц
Статус Сдан

О бизнес-центре

Класс B
Этажность 5
Лифты Есть
Общая площадь 5 000 м²
Год постройки 1962
Паркинг Наземный
Вентиляция приточно-вытяжная
Кондиционирование сплит-системы
Телекоммуникации Интернет/Телефония

Расположение

Подробная презентацию по предложению

Собираете информацию? Получите подробную презентацию в удобном формате, чтобы обсудить вариант с коллегами или переслать руководству!

Похожие предложения в других зданиях

БЕЗ КОМИССИИ ID: 910574 Рейтинг7.7 КлассB+

Москва, улица Правды, 8 к13

Савёловская → 1.44 км
~ 14 мин
Арендная плата в месяц 2 760 000 ₽ 32 000 ₽/м² в год С учётом НДС
Характеристики 1 035 м² 5 этаж Готово к въезду
Преимущества
  • Класс B+
  • Пешком от метро
  • Кондиционирование и вентиляция
  • Несколько провайдеров связи
  • Развитая инфраструктура

Предлагается в долгосрочную аренду офисное помещение класса B+ общей площадью 1035 кв. метров в недавно отреконструированном бизнес-центре "Дукс"... подробнее

>

Виртуальный тур

Презентация по предложению

Собираете информацию? Получите подробную презентацию в удобном формате!

БЕЗ КОМИССИИ ID: 219587 Рейтинг7.7 КлассB+

Москва, улица Правды, 8 к13

Савёловская → 1.44 км
~ 14 мин
Арендная плата в месяц 2 248 000 ₽ 32 000 ₽/м² в год С учётом НДС
Характеристики 843 м² 3 этаж Готово к въезду
Преимущества
  • Класс B+
  • Пешком от метро
  • Кондиционирование и вентиляция
  • Несколько провайдеров связи
  • Развитая инфраструктура

Предлагаем в аренду офисный блок класса B+ общей площадью 843 кв. метров в недавно отреконструированном бизнес-центре "Дукс"... подробнее

Презентация по предложению

Собираете информацию? Получите подробную презентацию в удобном формате!

БЕЗ КОМИССИИ ID: 169386 Рейтинг6.2 КлассB

Москва, 3-я улица Ямского Поля, 24

Белорусская → 859 м
~ 9 мин
Арендная плата в месяц 2 428 358 ₽ 31 300 ₽/м² в год С учётом НДС
Характеристики 931 м² 2 - 3 этаж Готово к въезду
Преимущества
  • Класс B
  • Пешком от метро
  • Кондиционирование и вентиляция
  • Свой паркинг
  • Несколько провайдеров связи
  • Развитая инфраструктура

Сдается в долгосрочную прямую аренду офисное помещение класса B общей площадью 931 кв.м в историческом недавно отреконструированном бизнес-центре... подробнее

Презентация по предложению

Собираете информацию? Получите подробную презентацию в удобном формате!

БЕЗ КОМИССИИ ID: 110596 Рейтинг6.2 КлассB

Москва, 3-я улица Ямского Поля, 24

Белорусская → 859 м
~ 9 мин
Арендная плата в месяц 2 177 958 ₽ 31 300 ₽/м² в год С учётом НДС
Характеристики 835 м² 9 этаж Готово к въезду
Преимущества
  • Класс B
  • Пешком от метро
  • Кондиционирование и вентиляция
  • Свой паркинг
  • Несколько провайдеров связи
  • Развитая инфраструктура

Предлагаем в долгосрочную аренду офис класса B площадью 835 кв.м в историческом недавно отреконструированном бизнес-центре... подробнее

Презентация по предложению

Собираете информацию? Получите подробную презентацию в удобном формате!

БЕЗ КОМИССИИ ID: 118529 Рейтинг8.0 КлассB+

Москва, Угловой переулок, 25

Савёловская → 847 м
~ 8 мин
Арендная плата в месяц 1 720 000 ₽ 25 800 ₽/м² в год С учётом НДС
Характеристики 800 м² 1 - 2 этаж Готово к въезду
Преимущества
  • Класс B+
  • Пешком от метро
  • Кондиционирование и вентиляция
  • Свой паркинг

Сдаем в долгосрочную аренду офисный блок класса B+ общей площадью 800 квадратных метров в бизнес-центре... подробнее

Презентация по предложению

Собираете информацию? Получите подробную презентацию в удобном формате!

Посмотреть все похожие предложения
Отнеситесь рационально к процессу поиска нового офиса!

Просто ответьте на 3 вопроса, и наши специалисты сами предложат оптимальные варианты под ваш бюджет

.